Een nieuwe huiselijke kantoorverdieping voor een modernistisch icoon (Studio Farris Architects)

  • image
  • image
  • image
  • image
  • image
  • image
  • image
  • image
  • image
  • image
  • image
  • image
  • image
  • image
  • image
  • image
  • image
  • image
  • image
  • image
  • image

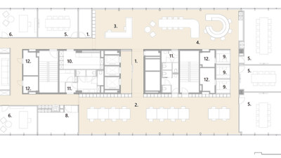
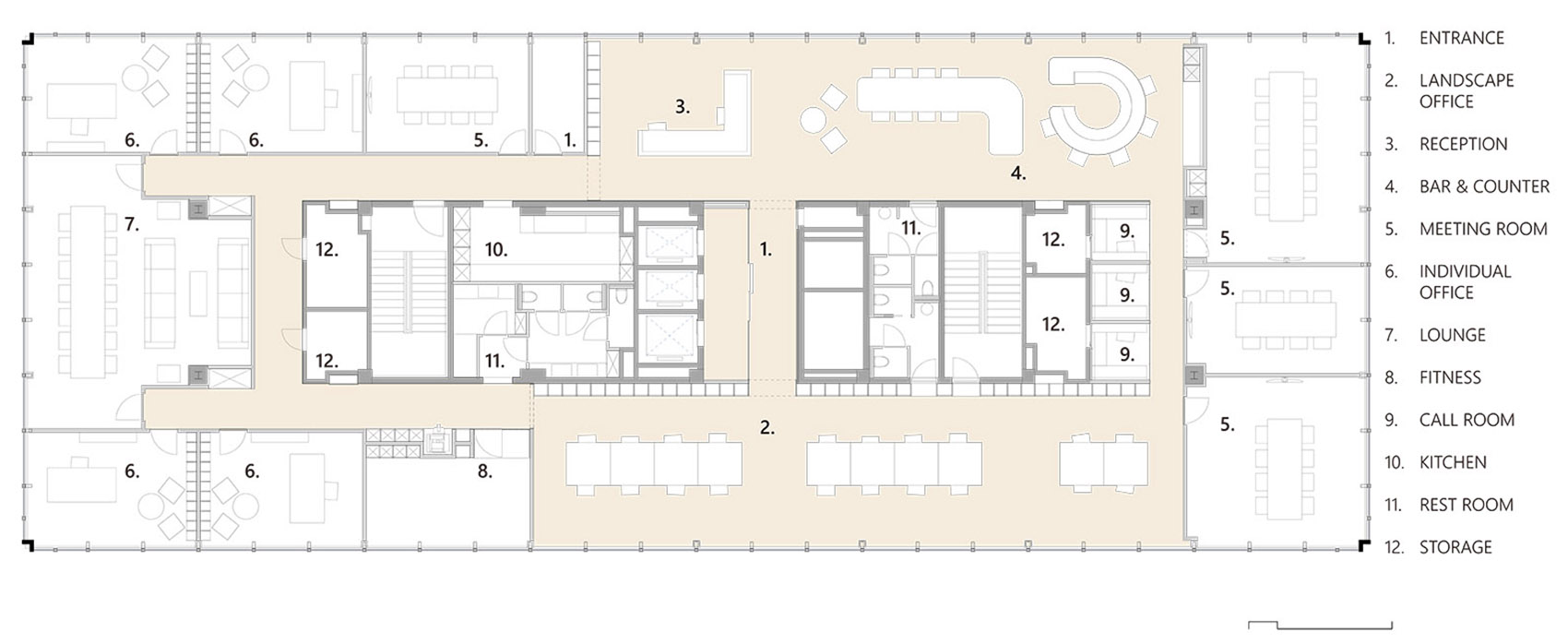
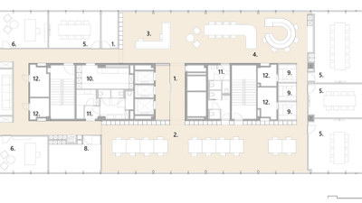
In 2018 kocht de financiële groep Buysse & Partners het Antwerpse BP-gebouw, een modernistisch icoon uit 1963 dat werd ontworpen door de Belgische architect Leon Stynen (1899-1990). Na de aankoop gaf de groep aan Studio Farris Architects de opdracht om er haar directiekantoren op de tweede verdieping te ontwerpen. Het bood architect Giuseppe Farris de kans om aan de slag te gaan met een technisch meesterwerk. De uitkragingen en het raster van de gevel worden immers ondersteund door stalen kabels die hangen aan negen dwarsbalken bovenaan het gebouw. Hierdoor baden alle verdiepingen in transparantie en is er een flexibele verdeling mogelijk.

Het project hield in dat de bestaande scheidingswanden op de kantoorverdieping werden afgebroken en er een werkruimte werd ontworpen met een huiselijke werksfeer. Het door Studio Farris Architects ontwikkelde concept voor de nieuwe kantoren leidde dan tot een maximale interactie met de uitbundige transparantie van het gebouw van Stynen. De nieuwe plattegrond benadrukt de verdeling die wordt bepaald door de plaatsing van kabels op de gevel. Tegelijkertijd geeft het een grotere openheid aan de werkruimtes en aan de verschillende loungeruimtes, wat resulteert in een sterke en continue interactie met de buitenwereld.

 

Structurele modulariteit

Een verlaagd plafond van zwart gelakte aluminium elementen, rechthoekig en uitgelijnd, baant zich een weg door de verschillende vertrekken. In de gemeenschappelijke ruimtes loopt het over de hele lengte van het gebouw, terwijl het in de gesloten ruimtes steeds in overeenstemming blijft met de modulatie van de ramen en dus met de structuur. Het verlichtingssysteem volgt de oriëntatie van het plafond. De hardhouten vloer in patroon van de open ruimtes en circulatieruimtes dient niet om een richting te bepalen, maar om de structurele modulariteit van het gebouw in beide richtingen te volgen.

De betegeling van de gesloten ruimtes varieert naargelang de functie: dambordtegels in de keuken, metrotegels in de badkamer, een tapijt in de vergaderruimten. Houten rekken, die ook volgens de plattegrond van Stynen zijn opgesteld, dienen als afscheiding in de werk- en ontspanningsruimtes. De receptie is een luchtige ruimte, die zich volledig naar buiten opent. Hier bevindt zich een loungehoek, die wordt aangevuld met een bar en toonbank waar men kan eten en informele bijeenkomsten kan houden.

 

Inhoud en materialiteit

Aan beide uiteinden van de plattegrond bevinden zich de vergaderzalen. Aan de ene kant is er de executive vergaderzaal met een extra ontspanningsruimte, waar vergaderingen met klanten en partners kunnen plaatsvinden. Aan de andere kant bevinden zich de andere vergaderzalen en drie kleine, geluidsdichte chatrooms.

Het thema huiselijkheid in de kantoorruimte komt tot uiting in enkele oplossingen die Giuseppe Farris heeft ontwikkeld om een rigoureuze ruimte inhoud en materialiteit te geven. Zo wordt de overgang van de ene naar de andere ruimte gemarkeerd door een dik zwart gepolijst houten frame dat, door nogmaals het structurele schema te accentueren, een gevoel geeft van comfort en elegantie.

Hetzelfde geldt voor de met gebluste kalk behandelde wanden, die de materialiteit van het cement in de centrale kern van het gebouw opnieuw interpreteren. En dat met een gevoeligheid die niet veraf staat van sommige werken van de Italiaanse architect Carlo Scarpa.

Bron Studio Farris Architects

  • Deel dit artikel

Onze partners