Een nieuwe toekomst voor het Telexgebouw: Vivaqua blaast modernistisch icoon nieuw leven in (Architectslab)

  • image
  • image
  • image
  • image
  • image
  • image
  • image
  • image
  • image
  • image
  • image
  • image
  • image
  • image
  • image
  • image
  • image
  • image
  • image
  • image

Hoe geef je een laatmodernistisch monument een tweede leven zonder zijn ziel te verliezen? In het hart van Brussel koos Vivaqua resoluut voor een duurzame herbestemming van het iconische Telexgebouw van Léon Stynen naar een ontwerp van Architectslab. Het resultaat: een ingetogen maar prestigieuze hoofdzetel die het verleden respecteert en klaar is voor de toekomst.

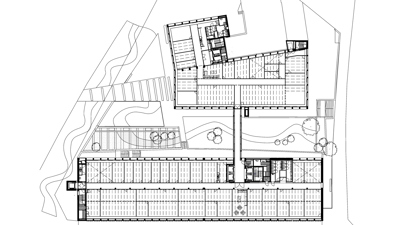
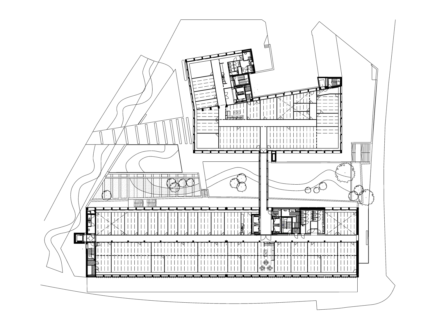
De Brusselse watermaatschappij Vivaqua besloot haar hoofdkantoor onder te brengen in een markant gebouw aan de Keizerinlaan, vlak bij het Centraal Station. Het voormalige Telexgebouw, een ontwerp van Léon Stynen en erkend als bouwkundig erfgoed, werd volledig gerenoveerd en heringericht. De ingreep besloeg meer dan 15.000 m² en omvatte de volledige binneninrichting, inclusief lobby, publieksfuncties, een auditorium, kantoren en vergaderzalen.

EEN LANGDURIGE VISIE ALS UITGANGSPUNT

De opdracht van Vivaqua was helder: een representatieve en duurzame inrichting met een langetermijnvisie. De keuze om eigenaar te worden van het gebouw in plaats van het te huren, onderstreept deze aanpak. De inrichting moest niet alleen functioneel zijn, maar ook het karakter van het 150 jaar oude bedrijf weerspiegelen.

In tegenstelling tot de hedendaagse trend van open kantoorlandschappen, vroeg Vivaqua om een klassieke, meer gesloten opzet met individuele kantoren. Die ‘old school’ inrichting werd gecompenseerd door het gebruik van hoogwaardige materialen en een verfijnd kleurenpalet, waardoor de sfeer tegelijk zakelijk en stijlvol blijft.

FUNCTIONELE INDELING EN MATERIALENKEUZE

De space-planning vertrekt vanuit een logische verdeling van de functies binnen het gebouw. Op het gelijkvloers bevinden zich alle publieke ruimtes, waaronder een transparante lobby, een auditorium en een tentoonstellingsruimte. Dankzij een dubbele gevelconstructie met vitrines is er visuele interactie met de stad, zonder in te boeten aan privacy.

Materialen zoals Carrara-marmer en notelaar vormen de rode draad doorheen het gebouw en versterken de identiteit van de nieuwe hoofdzetel. Ook binnen de kantoorruimtes is gekozen voor een sobere en coherente afwerking: witte scheidingswanden aan de kantoorzijde maximaliseren het daglicht, terwijl zwarte wanden aan de gangzijde zorgen voor een warme en luxueuze sfeer.

LICHT, LUCHT EN LEVENSKWALITEIT

Een belangrijk aandachtspunt was de werkomgeving van de medewerkers. De vroegere gesloten structuur van het gebouw bood verrassend veel mogelijkheden. Dankzij de royale plafondhoogtes van 3,3 meter, een overblijfsel van de oorspronkelijke functie als telefoniecentrale, konden moderne technieken eenvoudig geïntegreerd worden.

Bovenlichten tussen de gangen en kantoren zorgen voor natuurlijke lichtinval in de circulatieruimtes. Op elke verdieping zijn ruime keukens en loungehoeken ingericht, die informeel overleg en spontane ontmoetingen stimuleren.

DAKPAVILJOENS ALS VERGADERRUIMTES

Bijzonder is ook de herbestemming van de dakpaviljoens. Ooit ingericht als slaapruimtes voor nachtploegen van de RTT, zijn ze nu omgevormd tot vier vergaderzalen en twee lounges. Het dakterras zelf werd volledig aangelegd als buitenruimte en fungeert als extensie van de werkplek: een unieke plek voor overleg of ontspanning met zicht op de Brusselse skyline.

EEN TECHNISCH DOORDACHT PROJECT

De renovatie maakte gebruik van het ‘box-in-box’-principe: de nieuwe kantoorvolumes zijn binnen de bestaande gevels opgebouwd. De dubbele gevelconstructie biedt niet alleen esthetische voordelen, maar fungeert ook als klimaatzone voor luchttoevoer en thermisch comfort.

Deze ingreep zorgde bovendien voor meer flexibiliteit in de indeling van de werkvloeren. De oude en nieuwe gevels vormen zo een subtiel samenspel van erfgoed en hedendaagse techniek.

  • Deel dit artikel

Onze partners