Een residentie op maat van de straat en haar bewoners, en met groen als rode draad (POLYGOON)

  • image
  • image
  • image
  • image
  • image
  • image
  • image
  • image
  • image
  • image
  • image
  • image
  • image
  • image
  • image
  • image
  • image
  • image
  • image
  • image
  • image
  • image
  • image
  • image
  • image
  • image
  • image
  • image
  • image
  • image
  • image
  • image

POLYGOON Architectuur realiseerde aan de Schriek in Mariaburg (Ekeren) een nieuw woonproject met elf appartementen, in opdracht van Steen Vastgoed. Het ontwerpteam werkte hiervoor samen met Stabilos (stabiliteit), Living Comfortable (EPB en veiligheidscoördinatie) en hoofdaannemer DEGO. Het project toont zich bewust discreet: achter een ogenschijnlijk vertrouwd straatbeeld gaat een compact appartementsgebouw schuil dat inzet op woonkwaliteit, groen en een zorgvuldige inpassing in de bestaande context.

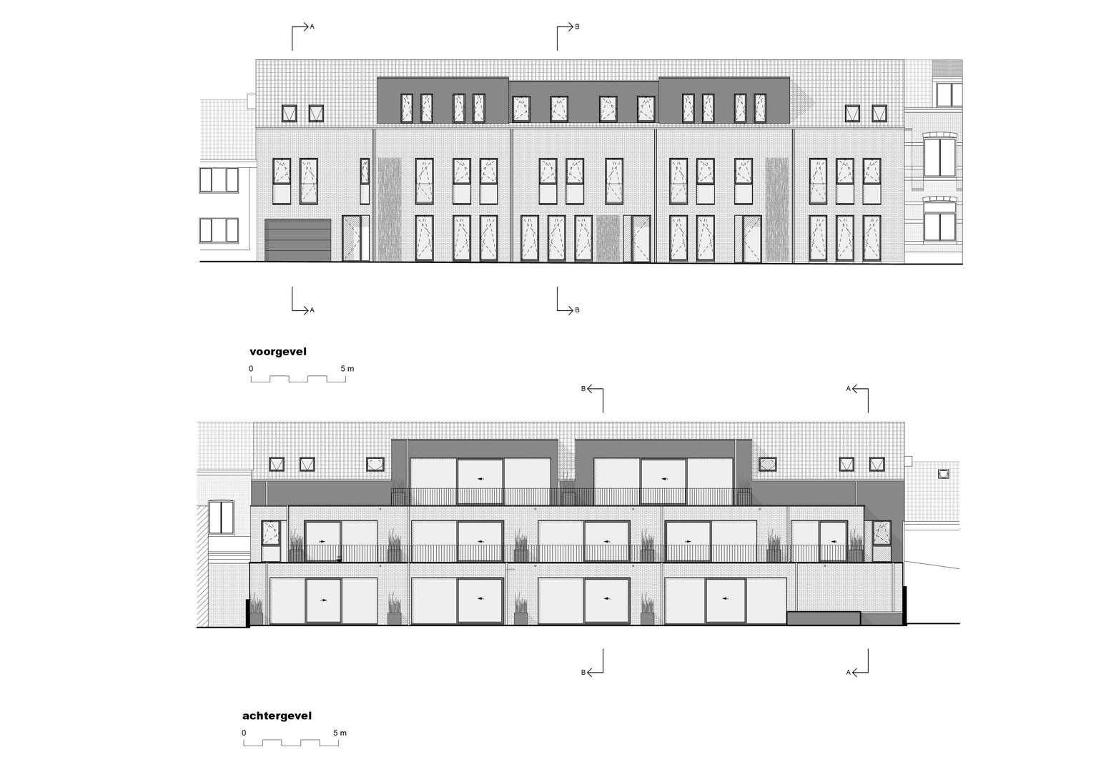
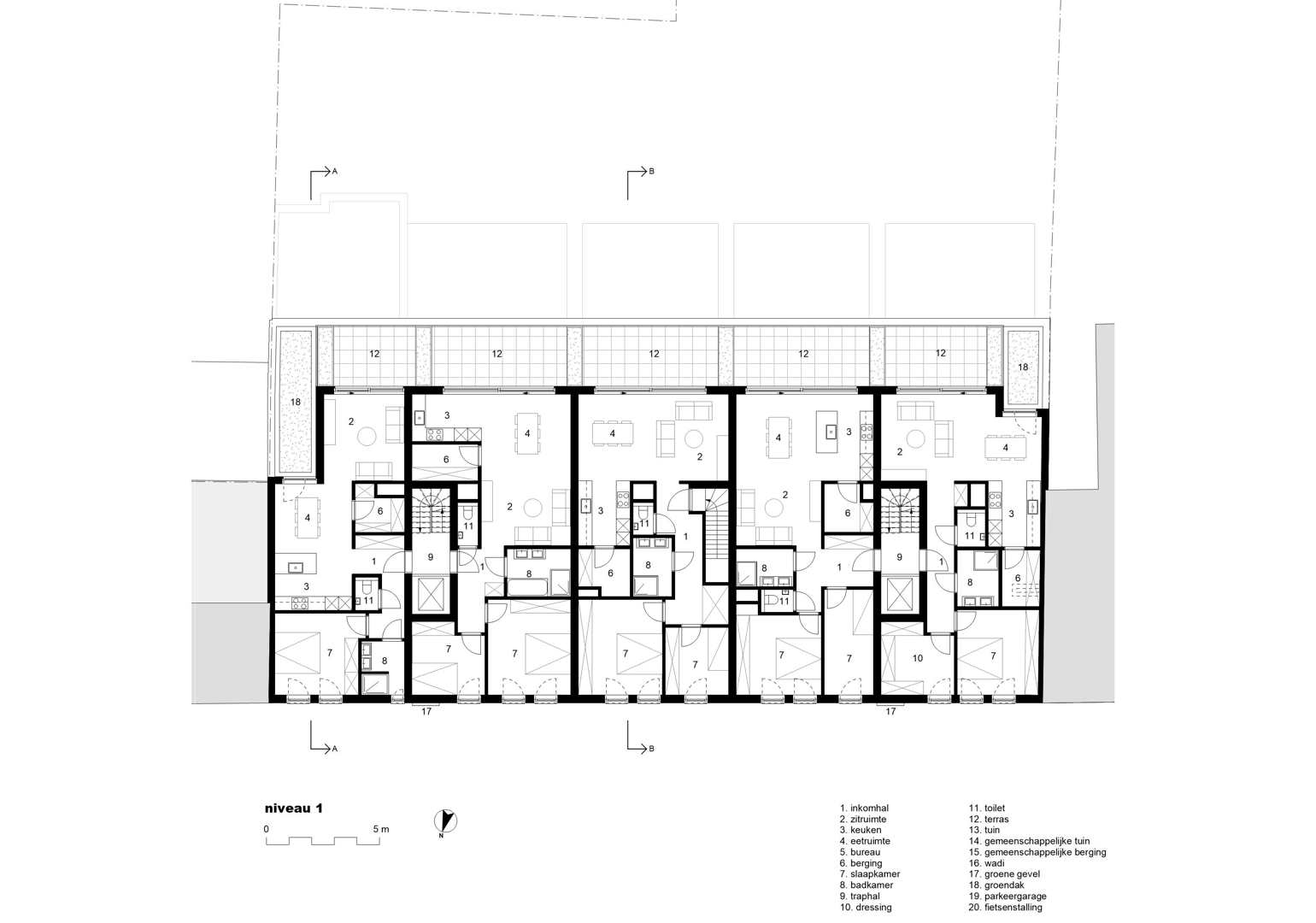
Aan de straatzijde presenteert het gebouw zich als een rij van vijf woningen, afgestemd op de korrelgrootte van de Schriek. De gevel is opgebouwd uit vijf traveeën van telkens zeven meter breed, met een doorlopende kroonlijst en hellend dak die links en rechts aansluiten op de aanpalende bebouwing. Drie centrale volumes springen subtiel hoger en dieper uit, wat het geheel nuanceert zonder de straatwand te verstoren. Terugliggende inkompartijen verraden dat het om appartementen gaat, terwijl de in een arrière-corps geplaatste regenpijpen het gevelritme versterken.

Gevel als bemiddelaar tussen straat en collectiviteit

De voorgevel is consequent opgebouwd met één raamtypologie, wat zorgt voor rust en samenhang. Op het gelijkvloers introduceert een claustra-metselverband meer privacy zonder licht weg te nemen, terwijl de kleinere ramen op de bovenste verdieping verwijzen naar de lokale bouwstijl van het begin van de twintigste eeuw. De dakkapellen zijn afgewerkt in zwart gebrand hout, gekozen omwille van duurzaamheid en beperkt onderhoud. Zo ontstaat een gevel die tegelijk hedendaags is en geworteld in haar omgeving.

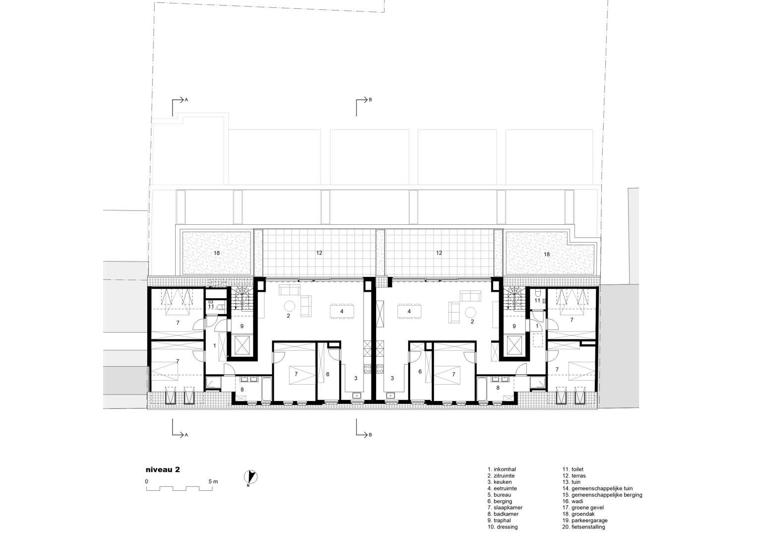
Groen vormt een expliciete rode draad doorheen het project. Aan de straatzijde zorgen muurtuinen voor een zachte vergroening van een verder volledig verharde context, met minimale irrigatie als uitgangspunt. Ook de zijgevel kreeg een groene bekleding, waardoor het volume zich losmaakt van zijn perceelsgrenzen. Aan de achterzijde fungeren geïntegreerde plantenbakken als natuurlijke scheidingen tussen de balkons, die bewoners zelf kunnen invullen en laten meegroeien met hun woongebruik.

Wonen rond een gedeelde tuin

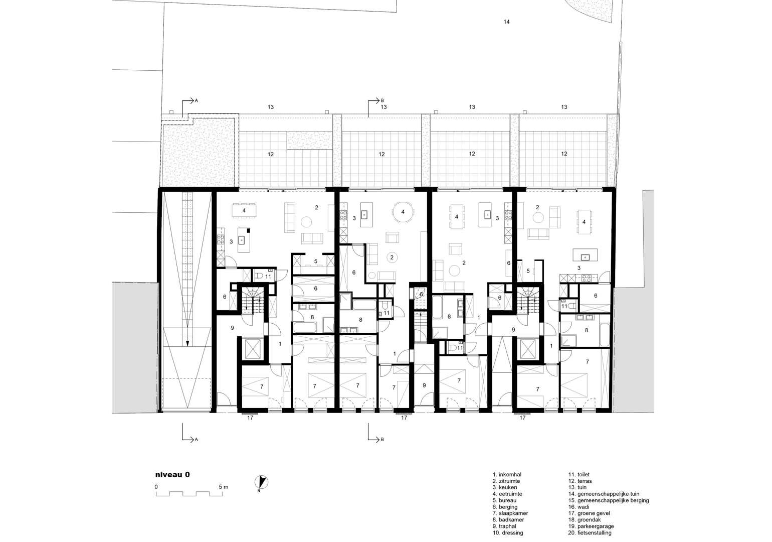
De achtertuin vormt het collectieve hart van het project en is ingericht met een wadi die water opvangt en vertraagd afvoert. De gelijkvloerse appartementen delen deze tuin rechtstreeks, terwijl de bovenliggende woningen uitkijken op het groen. Die opbouw versterkt de relatie tussen privé en collectief, zonder de privacy van de bewoners uit het oog te verliezen. De tuin fungeert tegelijk als ecologische buffer en als kwaliteitsvolle buitenruimte in een dense woonomgeving.

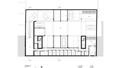
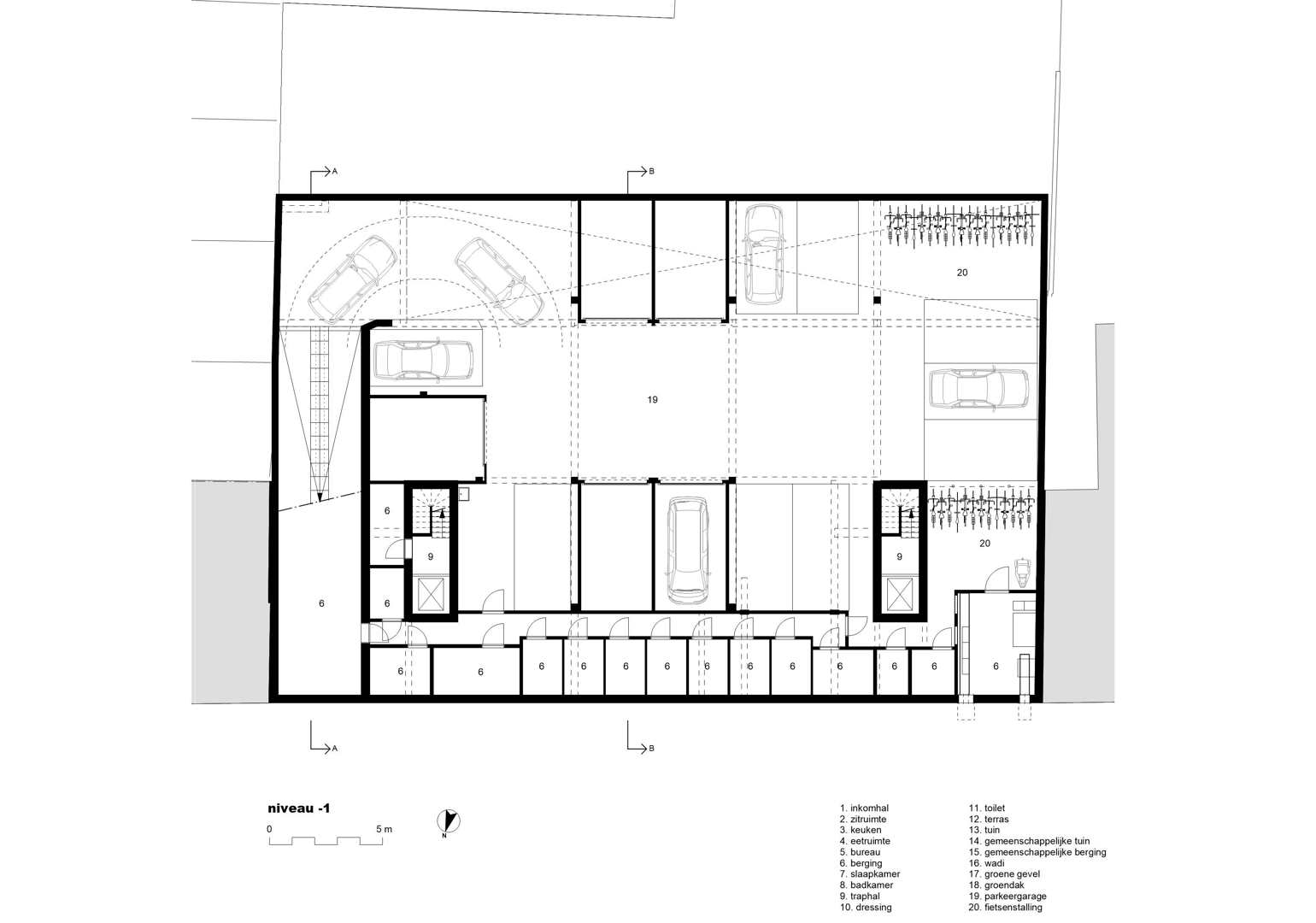
Binnenin vertrekt de organisatie van een vast grid van gemene muren, waarbinnen elk appartement een eigen indeling krijgt. In totaal zijn er negen één- en tweeslaapkamerappartementen op het gelijkvloers en de eerste verdieping, aangevuld met twee grotere woningen bovenaan met drie slaapkamers en ruime dakterrassen. Die bovenste appartementen vervangen functioneel de twee eengezinswoningen die op het perceel werden afgebroken. Onder het gebouw bevindt zich een ondergrondse parkeergarage met voldoende parkeer- en bergruimte.

Licht, rust en flexibiliteit als ontwerpkaders

De plattegronden zijn opgevat als flexibele schema’s die inzetten op bemeubelbaarheid en ruimtelijke helderheid. Slaapkamers liggen aan de straatzijde en zijn uitgerust met akoestische beglazing, zodat geluidshinder wordt beperkt. De leefruimtes openen zich naar de zuidgerichte tuin en profiteren maximaal van licht en uitzicht op het groen. Zo koppelt POLYGOON Architectuur een zorgvuldige stedelijke inpassing aan een woonconcept dat inzet op comfort, flexibiliteit en een duidelijke relatie met zijn omgeving.

Bron POLYGOON Architectuur

  • Deel dit artikel

Onze partners