Ezeldijk: het bouwblok heruitgevonden voor sociale woningen in de stad (czaar)

  • image
  • image
  • image
  • image
  • image
  • image
  • image
  • image

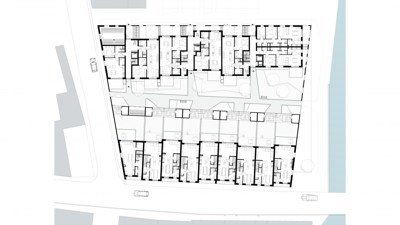
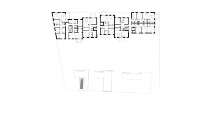
In Diest werd het woonproject Ezeldijk voorlopig opgeleverd. Dit project, ontworpen door architectenbureau czaar en gerealiseerd in opdracht van woonmaatschappij KANVAZ, omvat negen sociale huurwoningen en 28 sociale huurappartementen. De ontwikkeling maakt deel uit van het bredere stadsvernieuwingsproject in het centrum van Diest en zet in op een kwalitatieve woonomgeving met aandacht voor architectuur, mobiliteit en sociale interactie. De realisatie werd uitgevoerd door aannemer IBO NV.

De architectuur van de Ezeldijksite sluit naadloos aan bij de bestaande bebouwing. Met robuuste bakstenen gevels, zadeldaken en een geaccentueerde plint wordt de historische context versterkt, terwijl hedendaagse woonkwaliteit wordt gegarandeerd. Het project introduceert een doordachte circulatie met trage wegen voor voetgangers en fietsers, waardoor bewoners en bezoekers kunnen genieten van open zichtlijnen en een autoluwe, groene omgeving. De site bevindt zich op het voormalige industrieterrein ‘Shoe Post’, wat van het project een belangrijke herbestemming maakt binnen de stedelijke ontwikkeling van Diest.

Kwalitatieve verdichting

Een van de innovatieve aspecten van dit project is de herinterpretatie van het klassieke bouwblok voor verdichting met hoge woonkwaliteit. De rijwoningen langs de Schaffensestraat behouden een verticale percelering en zijn uitgerust met private tuinen. De gestapelde woningen op de Ezeldijksite zijn georganiseerd rond een semipubliek binnengebied, dat de sfeer van de nabijgelegen Demer doortrekt in de woonomgeving. Dit binnengebied functioneert als een gedeelde ontmoetingsruimte en draagt bij aan de sociale dynamiek binnen de wijk.

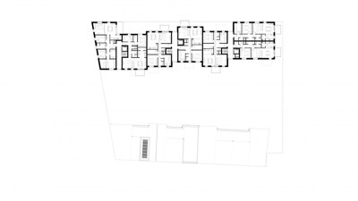
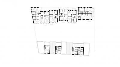
Doorwaadbaarheid

Bijzondere aandacht ging uit naar de organisatie van de woningen en appartementen. De klassieke voor- en achterkant werd herzien: de woningen zijn toegankelijk via zowel de voorgevel als een pergola met tuinberging aan het binnengebied. Ook de gemeenschappelijke delen van de appartementsgebouwen zijn langs twee zijden bereikbaar, wat de doorwaadbaarheid van de site bevordert. Dit ontwerpprincipe versterkt de connectie tussen privé en semipublieke ruimtes, en draagt bij aan een open en uitnodigende woonomgeving.

Privacy-scripting

De betonnen plint die het bouwblok omlijst, speelt een belangrijke rol in de overgang tussen het private en publieke domein. Deze plint manifesteert zich als gevelelementen met wisselende hoogtes en als vrijstaande tuinmuren. Door dit architecturale element slim te integreren, wordt de samenhang van het bouwblok gewaarborgd en draagt de plint bij tot de privacy-scripting op de overgang tussen privaat en publiek domein.

Bron czaar & KANVAZ

  • Deel dit artikel

Onze partners