Focus op Le Gué (Karbon’) – laureaat RENOLAB.B 2024

  • image
  • image
  • image
  • image
  • image
  • image
  • image
  • image
  • image
  • image
  • image
  • image
  • image
  • image
  • image
  • image
  • image
  • image

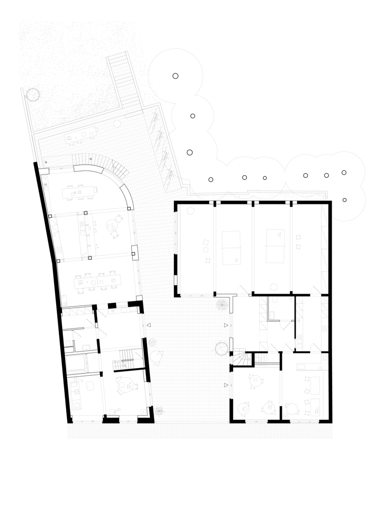
Le Gué, gelegen in Sint-Lambrechts-Woluwe, is een dag- en tewerkstellingscentrum dat al meer dan 50 jaar volwassenen met psychische aandoeningen opvangt. Om tegemoet te komen aan de nieuwe noden van de instelling en vanuit een logica van zuinig ruimte- en middelengebruik, bedachten de architecten van Karbon’ een renovatie en uitbreiding met de ambitie dat zorg ook via de kwaliteit van de plekken wordt gedragen. In het kader van de projectoproep RENOLAB.B konden zij rekenen op subsidies en technische begeleiding om de duurzame ambities van het project concreet te maken.

Vittorio Degli Innocenti en Zélie Davodeau, architecten bij Karbon’, lichten toe hoe de ondersteuning van het RENOLAB-programma heeft bijgedragen aan de kwaliteit van het project: “We werken al enkele jaren samen met RENOLAB. Van project tot project is er een vertrouwensrelatie gegroeid. Het is altijd interessant om met hen in dialoog te gaan over de technische aspecten van een project, en dat was zeker ook hier het geval, bij een ontwerp dat een groot aantal duurzame opties combineert.”

Circulair ontwerp met onder meer omkeerbare functies, verticale geothermie met tien boringen tot 110 meter diep in een beperkte ruimte, het gebruik van biogebaseerde materialen (waaronder strobalen en kalk-hennepbetonblokken voor de isolatie), hergebruik van ter plaatse gedemonteerde materialen, fotovoltaïsche panelen, regenwaterbeheer, … Het project verrast inderdaad door de diversiteit aan duurzame bouwtechnieken die op zo’n beperkte oppervlakte worden ingezet.

Het heterogene verenigen

Het bestaande gebouwencomplex dateert uit twee verschillende periodes, wat aangepaste renovatietechnieken vereiste voor de typische bouwsystemen van elke tijd. Het herenhuis uit 1924, met zijn grote volumes, werd langs de binnenzijde geïsoleerd met kalk-hennepblokken, terwijl het gebouw uit 1980 werd voorzien van een conventionele buitenisolatie.

De meest ingrijpende ingreep bestond uit de afbraak van een verouderd gebouw achteraan op het perceel. In de plaats kwam een nieuw, gebogen volume dat rekening houdt met de omliggende bouwhoogtes en de bezonning van de binnenkoer, beter aansluit bij de noden van de instelling en sterker verbonden is met de tuin. De houten draagstructuur, geïsoleerd met stro – een primeur voor de aannemer – zorgde voor enkele uitvoeringsproblemen, aangezien aannemers uit de regio zelden met dergelijke technieken te maken krijgen.

Het hergebruik van de oude bakstenen uit het gesloopte gebouw bleek onmogelijk vanwege hun te slechte kwaliteit. De ruimtes werden verduidelijkt en heringericht zodat ze polyvalent zijn en kunnen inspelen op de veranderende behoeften van de instelling.

Neveneffecten

Op het moment van schrijven is de werf goed gevorderd. De Fabulus, een onthaalcafé dat historisch op de site aanwezig is, blijft tijdens de werken open en fungeert als ontmoetingsplek voor buurtbewoners, gebruikers (die tijdelijk op 500 meter afstand zijn ondergebracht) én als locatie voor werfvergaderingen.

Een nabijgelegen stadstuin, beheerd door een lokale vereniging, recupereert bepaald werfmateriaal (planken, raamkozijnen) om er verhoogde plantenbakken en tuinbergingen van te maken. Deze sociale interacties vormen een belangrijk nevenvoordeel, bovenop de architecturale dimensie van het project.

Meerwaarde van RENOLAB

RENOLAB speelt een sleutelrol door het architectenbureau technisch te begeleiden tijdens de uitvoeringsfase, met regelmatige opvolging op de werf en met financiële ondersteuning die gekoppeld is aan het naleven van de gemaakte engagementen.

Vittorio Degli Innocenti en Zélie Davodeau voegen daaraan toe: “Die begeleiding maakt het ook mogelijk om het gebrek aan ervaring bij aannemers met deze innovatieve technieken op te vangen, door keuzes op de werf te helpen sturen en de coherentie van het project te bewaken. De samenwerking met RENOLAB verleent het architectenbureau geloofwaardigheid en legitimiteit, wat de onderhandelingen met aannemers vergemakkelijkt en helpt om de duurzame ambities overeind te houden. Dat is bijzonder waardevol binnen het kader van een overheidsopdracht, waar de eisen hoog zijn en de speelruimte beperkt.”

Samengevat is RENOLAB een essentiële hefboom om duurzame ambities om te zetten in concrete realisaties, met een strikte opvolging en aangepaste technische ondersteuning.

  • Deel dit artikel

Onze partners