Contactformulier

FVWW architecten

FVWW architecten transformeert voormalig politiekantoor tot licht- en luchtrijke dokterspraktijk

  • image
  • image
  • image
  • image
  • image
  • image
  • image
  • image
  • image
  • image
  • image
  • image

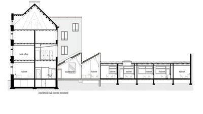
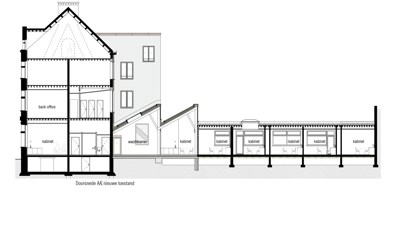
In het hart van Antwerpen, in de Paleisstraat, onderging een voormalig politiekantoor een grondige transformatie tot een moderne dokterspraktijk naar een ontwerp van FVWW architecten. De Wijkpraktijk, de bouwheer van het project, nam in 2016 het initiatief om de achterbouw om te vormen tot zeven volwaardige en volledig afgewerkte dokterskabinetten. Later, in 2020, werd ook de renovatie en restauratie van de beschermde voorgevel voltooid, waarmee het pand zijn historische uitstraling wist te behouden.

De groeiende zorgvraag in de buurt bracht De Wijkpraktijk ertoe haar werking verder uit te breiden. Naast de ondersteuning van huisartsen werd beslist om het interdisciplinaire team uit te breiden met aanvullende disciplines zoals een eerstelijnspsycholoog. Het doel was om de eerstelijnszorg te versterken zonder extra huisartsen aan te werven, en zo de toenemende zorgbehoefte in de wijk efficiënt op te vangen.

Waterophoudend groendak

De uitbreiding van de werking vereiste extra kabinetruimte op het gelijkvloers en de ingebruikname van de leegstaande bovenste verdiepingen. Bovendien was het verbeteren van de toegankelijkheid voor minder mobiele bezoekers een belangrijke prioriteit. Voor deze ingrijpende verbouwing werd een beroep gedaan op het bureau FVWW architecten, dat het ontwerpvraagstuk uitwerkte tot een doordacht voorontwerp.

In samenspraak met De Wijkpraktijk ging FVWW actief op zoek naar een ontwerp dat de beperkte onbebouwde ruimte compenseerde met een slimme en duurzame oplossing. De keuze viel op een biodivers en waterophoudend groendak, dat niet alleen ecologische voordelen biedt, maar ook bijdraagt aan een aangenaam binnenklimaat. Licht en lucht waren cruciale aandachtspunten in het ontwerp. Door strategisch geplaatste zijdelingse bovenlichten werd een aangename en gezonde werkomgeving gecreëerd, zowel voor de bezoekende patiënten als de werkende artsen.

Bron FVWW architecten

  • Deel dit artikel

Onze partners