Contactformulier

FVWW architecten

FVWW verenigt Herentalse kunstencampus, stadsarchief en politiecommissariaat in één levendige entiteit

  • image
  • image
  • image
  • image
  • image
  • image
  • image
  • image
  • image
  • image
  • image
  • image
  • image
  • image
  • image
  • image
  • image
  • image
  • image
  • image
  • image
  • image

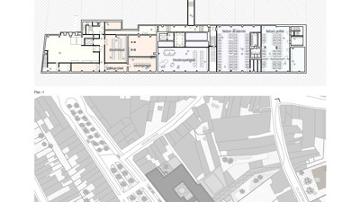
In 2015 ging de stad Herentals via een Open Oproep op zoek naar een ontwerp voor de reconversie van een oud Belgacom-gebouw tot politiecommissariaat en stadsarchief. FVWW architecten kwam als winnaar uit de bus om met deze complexe ontwerpoefening aan de slag te gaan. Acht jaar later is de stad een lichtbaken rijker dat zijn deuren opent voor alle Herentalsenaars. “Het is een heel democratisch gebouw geworden”, zegt Frederic Vandoninck, architect en partner bij FVWW: “Politieman, leerkracht of archiefmedewerker, alle gebruikers zijn gelijk.”

Volgens Pascal Van Nueten, schepen van ruimtelijke ordening van Stad Herentals toont FVWW hoe hedendaagse architectuur in een ouder stadsweefsel met succes kan verweven worden: “Het ontwerp zorgt voor een opwaardering van een ganse buurt en tilt de stad visueel en ontegensprekelijk naar een hoger niveau. De creatieve invulling van het gebouw beantwoordt dan ook aan de hedendaagse vormvereisten en uitdagingen.”

 

Van gesloten kolos naar lichte, transparante machine

Met zijn hoge verdiepingen en talrijke glaspartijen was het voormalige Belgacom-gebouw voor de architecten een geschenk. Maar het was ook een zware kolos met een façade uit beige natuursteen en een gesloten gelijkvloers dat amper connectie maakte met het leven op straat. Het was dus cruciaal om de voorgevel meer open en lichter te maken. De ritmering van de oorspronkelijke gevel trokken ze door om er vervolgens een nieuwe schil in aluminiumcomposiet en polycarbonaat over te trekken. De nieuwe gevel is energetisch zeer performant, voorzien van dikke isolatielagen, maar zeer licht in materialiteit.

Laurens Moubax, sectormanager stadsontwikkeling van de Stad Herentals, waardeert hoe het ontwerp van FVWW nauw aansluit bij de identiteit van de stad, het streven naar duurzaamheid en innovatie en de ambities voor stedelijke ontwikkeling: “De architecten hebben op een opmerkelijke manier vorm gegeven aan een programma dat verschillende functies samenbrengt. Ondanks de zeer diverse functies straalt het gebouw harmonie uit en moedigt het multidisciplinair werken aan.”

 

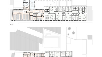
Een stad in een stad

FVWW realiseerde een verbinding met het stadsweefsel door een publieke doorsteek toe te voegen, dwars door het gebouw. Aan de rechterkant bevindt zich het onthaal van de politie, zeer zichtbaar en toegankelijk, aan de overkant heb je de kunstencampus. De twee dialogeren met elkaar via grote glaspartijen met diepe vensterbanken die als zitbank kunnen dienen. Niets in het ontwerp is dwingend, maar er is wel de suggestie van interactie via informele punten.

"Bedoeling van de binnenstraat is om het gebouw echt te verankeren in de stad."
- Wouter Willems, architect-zaakvoerder FVWW -

 

Weiterbauwen

Voor een groot stuk bouwt FVWW verder op wat er al was: de robuuste constructie, het gevelritme en de ruimtelijke organisatie. De architecten haalden alle valse plafonds weg waardoor de betonstructuur weer zichtbaar werd, inclusief de betonreparaties. De sporen van het verouderingsproces maken het geheel levend. Wouter Willems: “Het is geen nieuw gebouw en dat verdoezelen we ook niet. Je zou kunnen zeggen dat we enkel het strikt noodzakelijke hebben gedaan. Alles wat overbodig was, hebben we weggelaten.”

De interieurs hebben steeds een zachte achtergrond, ten dienste van het gebruik. Aan alles voel je dat de architectuur zich niet opdringt. Of het nu om een zware akoestische of een gewone deur gaat, om een lambrisering of een akoestisch paneel, alles is uitgevoerd in hetzelfde materiaal. Het uniforme meubilair is opgetrokken in licht constructiehout waardoor de volumes niet te zwaar aanwezig zijn.

"Voor veel ontwerpbeslissingen vertrekken we vanuit de kwaliteit van de bestaande structuur. We omarmen wat er al is en bouwen daarop verder."
- Wouter Willems, architect-zaakvoerder FVWW -

 

Regelmaatregel

De kunstintegratie ‘Regelmaatregel’ op de voorgevel door kunstenaar Gert Robijns is een samentrekking van regel, regelmaat, maat en maatregel die zinspeelt op de ongebruikelijke combinatie van de activiteiten in het gebouw. Robijns: “De kunstencampus kent weinig regels en de politie is net bezig met regelgeving. Die twee komen mooi samen in het woord Regelmaatregel. Het creëert een verbinding tussen de verschillende gebruikers.” Robijns wil met zijn ingreep bewustmaking creëren: “Het is geen artistiek statement, het maakt enkel zichtbaar wat onzichtbaar is.”

Bron FVWW

  • Deel dit artikel

Onze partners