Gentse cohousingprojecten: maximale betrokkenheid in vraaggestuurd bouwen
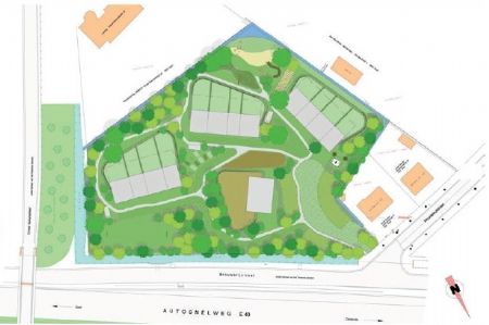
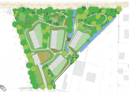
Energievriendelijk wonen met een sterke collectieve inbreng wint steeds meer aan populariteit. Cohousing Projects en bouwbedrijf Bostoen springen op die trein met de start van twee nieuwe cohousingprojecten in Drongen en Baarle, in de zuidwestelijke groene rand van Gent. Bij cohousing kunnen toekomstige bewoners hun eigen buurt uitdenken, plannen en ook daadwerkelijk bouwen. De projecten in Drongen en Baarle bieden plaats aan respectievelijk 16 en 12 eengezinswoningen.
De projecten combineren compacte gezinswoningen met gemeenschappelijke voorzieningen waaronder een centraal paviljoen. Elke woning krijgt een privétuintje met daarnaast veel gemeenschappelijk groen. Uiteraard is er aandacht voor energievriendelijke wooneenheden waarbij ook passiefhuizen tot de mogelijkheden behoren.


Cohousing Projects is een recent opgerichte coöperatieve vennootschap met de bedoeling om meer cohousing in Vlaanderen te realiseren. Bouwbedrijf Bostoen, dat inzet op energievriendelijk bouwen en verbouwen, stelt de sites in Drongen en Baarle beschikbaar voor cohousing. Juridisch kopen geïnteresseerden een woning in een vereniging van mede-eigenaars. Er is een instapprocedure die toelaat om geleidelijk kennis te maken met het project en de andere potentiële cohousers.
Bewoners binnenhalen
De twee partners geloven sterk in hun cohousingproject. Bestuurder van Bostoen Stephan Bostoen zegt: “We zijn ervan overtuigd dat eens cohousing gezien wordt als een logistieke en praktische samenlevingsvorm, het kan scoren bij een groot publiek.”
