GO! Nova in Ronse: een compact en veelzijdig gebouw voor een innovatieve school (KRAS architecten)
In Ronse wordt volop gebouwd aan GO! Nova, een gloednieuwe basisschool die kleuter- en lager onderwijs verenigt op de site Germinal. Het project, naar ontwerp van KRAS architecten in samenwerking met M-gineers, Sweco en Daidalos Peutz, wordt gerealiseerd in opdracht van SPV Aurora (Group Van Roey – Democo). De nieuwbouw kadert in de grootschalige reorganisatie van het GO! basisonderwijs in Ronse. Nova is één van de twee nieuwe basisscholen in de stad, en legt de nadruk op vernieuwend en gepersonaliseerd samen leren. KRAS architecten vertaalde deze onderwijskundige visie naar een compact en veelzijdig gebouw dat leerlingen een veilige en geborgen omgeving biedt om zelfstandig te ontdekken en samen te leren.
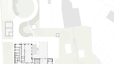
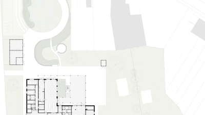
De ontwerpers kozen voor een gebouw met een minimale footprint, zodat er maximaal ruimte overblijft voor groen en spel. De nieuwbouw wordt zorgvuldig ingeplant in de oksel van het L-vormige terrein, waardoor het een ruimtelijke schakel vormt tussen drie zones: het groene voorplein aan de straatzijde, de speelruimte voor de kleuters en het speelgedeelte van de lagere school. Het voorplein kan bovendien dienstdoen als open buurtgroen. De school opent zich zo nadrukkelijk naar haar omgeving. Het gebouw is bovendien functioneel opgedeeld: vooraan bevinden zich de sportzaal en refter, die los van de rest van het gebouw kunnen worden gebruikt – ook door externe organisaties of verenigingen.
Compact én licht: slimme architectuur voor een duurzame leeromgeving
Hoewel compactheid een belangrijke randvoorwaarde was, slagen KRAS en hun partners erin om ook binnenin een lichte en inspirerende leeromgeving te creëren. Slim geplaatste buiten- en binnenramen zorgen voor doorzichten en natuurlijke lichtinval. Het centrale forum – het hart van de school – krijgt extra licht dankzij negen grote dakkoepels. Die forumruimte vormt een ontmoetingsplek, een circulatiezone én een flexibele projectruimte waar thematisch en interdisciplinair gewerkt kan worden.
Het leerlandschap bevindt zich in het achterste gedeelte van het gebouw en is volledig afgestemd op de visie van het GO! rond gepersonaliseerd samen leren. De klaslokalen zijn vervangen door open leerzones rond het centrale forum, waar ontmoeting en samenwerking centraal staan. Instructie en individuele focusmomenten vinden plaats in de zogenaamde homebases aan de gevelzijde. Die zijn als een krans rond de leerlandschappen georganiseerd en vormen duidelijke, rustiger zones binnen de open leerstructuur. Zo kunnen kinderen zich terugtrekken als dat nodig is, en geleidelijk doorgroeien naar meer zelfstandigheid.
Ruimte voor ontmoeting, geborgenheid en zelfsturing
De architecturale structuur ondersteunt de pedagogische ambities van de school. De open leerlandschappen stimuleren samenwerking, maar ook zelfstandige keuzes. Visuele verbondenheid tussen ruimten en niveaus vergroot het gevoel van samenhorigheid. Tegelijk garandeert de opdeling in homebases en niches ook geborgenheid, een essentiële voorwaarde om als kind tot leren en ontdekken te komen. De forumruimte, met haar koepels en centrale ligging, nodigt uit tot ontmoeting en spontane interactie tussen leerlingen en leerkrachten.
De architecturale flexibiliteit vertaalt zich ook in de relatie met de buurt. Dankzij afzonderlijk toegankelijke delen zoals de sportzaal, refter en forum, wordt de school ook buiten de schooluren een plek voor ontmoeting, sport of buurtwerking. Zo draagt het ontwerp niet alleen bij aan kwalitatief onderwijs, maar ook aan sociale cohesie in de wijk Germinal. Het project slaagt erin om compactheid, geborgenheid en openheid op een evenwichtige manier te combineren.
 
			 
                             
                             
                             
                             
                             
                             
                             
                             
                             
										 
										 
										 
										 
								