HUB bezorgt Mechelen met de Waterduivel nieuwe eyecatcher

  • image
  • image
  • image
  • image
  • image
  • image
  • image
  • image
  • image
  • image
  • image
  • image
  • image
  • image
  • image

In Mechelen werd recent de nieuwe brandweerkazerne ingehuldigd. Het gebouw, dat ook als stadsmagazijn fungeert voor de Mechelse uitvoeringsdiensten, kreeg de naam Waterduivel en zal volgens titelvoerend burgemeester Bart Somers symbool staan voor nog te bouwen brandweerkazernes elders. HUB tekende voor het ontwerp, Tractebel Engie voerde de nodige studies uit. Van Roey, Democo en Willemen Groep traden op als aannemer.

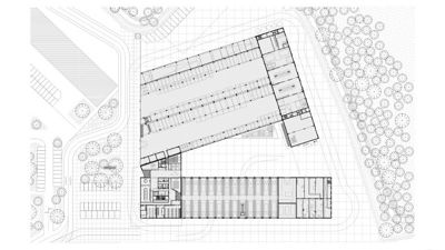
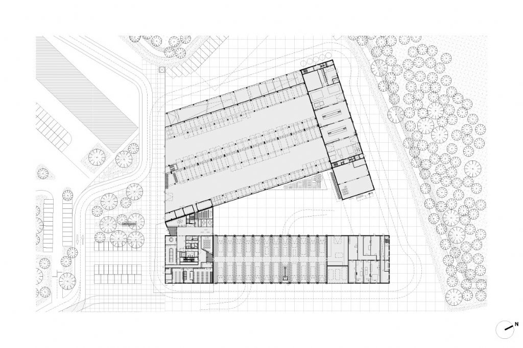
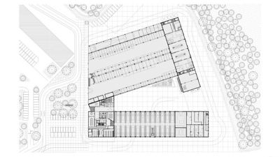
De nieuwe brandweerkazerne aan de Plattebeekstraat op de Nekkersite vervangt de oude thuisbasis van de brandweer in de Dageraadstraat. De nieuwbouw van 21.000 m² oogt, ondanks zijn nochtans ook niet kleine ‘buur’ de Nekkerhal, bepaald indrukwekkend. Viceminister-president en titelvoerend burgemeester Bart Somers kwam de Waterduivel mee inhuldigen. “Voortaan heeft Mechelen de modernste en nieuwste brandweerpost van Vlaanderen”, klonk het fier. “Door de slimme combinatie van DBFM-formule, cohousing en BEN-uitvoering zal de nieuwe brandweerkazerne ongetwijfeld symbool staan voor nog te bouwen kazernes elders. De Waterduivel is bovendien een nieuwe eyecatcher, die ingrijpt op de skyline van onze stad, tekenend voor de dynamiek van Mechelen.” Voor de laatste zorgt onder meer een 25 meter hoge klim- en droogtoren, waar het klimteam verticale evacuaties kan oefenen en de brandweerslangen gemakkelijk gedroogd kunnen worden.


Georganiseerd rond centrale oefenkoer

“De Waterduivel is niet alleen een gebouw voor de brandweer van Mechelen, maar fungeert ook als magazijn voor de uitvoeringsdiensten van de stad”, klinkt het bij Bart Biemans, Carolien De Backer en Frederic Van Steene, de architecten van HUB die het gebouw ontwierpen. “Beide programmadelen hebben zeer uitgesproken eigen noden, maar de brandweer en stadsuitvoeringsdiensten delen ook bepaalde faciliteiten. Het gebouw werd georganiseerd rond een 1.785 m² grote centrale oefenkoer voor de brandweer. Het omvat een hal met stelplaatsen voor vrachtwagens – zonder steunpilaren en met 24 poorten –, werkplaatsen, zoutloodsen, kantoor- en vergaderruimten, uitgebreide sanitaire voorzieningen en leefruimten voor de brandweermannen. Het kan beschouwd worden als een machine, waarvan de vormgeving het resultaat is van de operationele activiteiten die erin plaatsvinden en de noodzakelijke efficiënte die daarmee gepaard moet gaan.”


Gestapelde functies

De volumetrie en esthetiek zijn volgens de architecten dan ook de belangrijkste troeven van het project. “De site is klein voor de het benodigde programma, wat resulteerde in een compacte ordening en stapeling van functies. Zo werden we bijvoorbeeld gedwongen om vrachtwagens tot op de verdiepingen te laten rijden. Daardoor kreeg het gebouw een genereuze betonnen structuur. Daarrond werd een fijne, witte huid van gegalvaniseerd staal getrokken. Dat uiterlijk verwijst naar het basale, semi-industriële programma, maar wie goed kijkt, zal zeker ook de uitermate verfijnde detaillering opvallen. De groene omgeving brengt het geheel nog meer in balans.” De Waterduivel is een BEN-gebouw en werd ontwerpen met het oog op eventuele demontage. Heel wat elementen werden ook geprefabriceerd.


Grootste Mechelse stadsgebouw

“De Waterduivel is het grootste stadsgebouw van Mechelen en geeft onderdak aan 130 mensen van de brandweer en 153 personeelsleden van de uitvoeringsdiensten. Die combinatie zorgt voor belangrijke efficiëntiewinsten”, zegt burgemeester Alexander Vandersmissen. “We kozen voor een DBFM-formule. Daardoor wordt het volledige bouwrisico gedragen door de ontwikkelaar van het project. De totale investering bedraagt een kleine 30 miljoen euro, de beschikbaarheidsvergoeding jaarlijks 2,5 miljoen euro. De aandelen van de stad en de hulpverleningszone Rivierenland bedragen respectievelijk 61,5 en 38,5%.

“Als bouwgroep hadden we er alle belang bij om een energiezuinig en onderhoudsvriendelijk gebouw op te trekken”, vertelt Luc Pièret, algemeen directeur van Van Roey. Waar partner AG Real Estate, beheerder van de vastgoedportefeuille van AG Insurance en onder meer actief in publiek-private samenwerkingen, als investeerder het gebouw gedurende 25 jaar ter beschikking stelt, staat Van Roey Services al die tijd in voor het bouwkundig en technisch onderhoud, inclusief de volledige energiemonitoring.


Vernoemd naar volkslegende

Nog dit: de naam Waterduivel is een verwijzing naar de legende van Nekkerspoel, de Mechelse wijk waar de nieuwbouw ligt. Vijvers, bronnen en poelen waren voor de Middeleeuwse bewoners van de Zuiderkempen toegangspoorten tot de onderwereld. De verhalen over de Waterduivel of Nekker begonnen in de vijftiende eeuw. De volkslegende wil dat, nadat enkele kinderen op onverklaarbare wijze verdwenen waren, mensen in de poelen in de buurt rode ogen waarnamen en rond middernacht de Waternekker hoorden spartelen.

 

  • Deel dit artikel

Onze partners