Jacques Francksquare in Sint-Gillis wordt stadsruimte op mensenmaat (Lokus & New South)
De heraanleg van de Jacques Francksquare in de Zuidwijk van Sint-Gillis krijgt groen licht. Met het ontwerp van de Frans-Brusselse bureaus Lokus en New South komt een ingrijpende vernieuwing in zicht die de publieke ruimte radicaal hertekent. De plannen kaderen binnen het Duurzaam Wijkcontract Zuid en beogen een aangenamere, veiligere en groenere plek waar buurtbewoners zich thuis kunnen voelen. Wat vandaag vooral een stenige doorgangsruimte is, zal binnenkort evolueren naar een levendige verblijfsplek op mensenmaat, waarin mobiliteit, ontmoeting en beleving samenkomen.
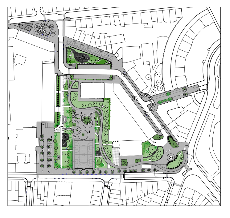
Het ontwerp richt zich niet enkel op het plein zelf, maar ook op de omliggende straten zoals de Vlogaertstraat, César Depaepestraat en Fontainasstraat. Door het toevoegen van groen, het creëren van bredere trottoirs en het herinrichten van bestaande verbindingen, versterken de ontwerpers de samenhang tussen het plein en de wijk. Er is bewust gekozen voor gerichte, goed gedoseerde ingrepen in plaats van een volledig nieuwe layout. Dat zorgt ervoor dat de buurt zich de ruimte opnieuw kan toe-eigenen zonder haar herkenbaarheid te verliezen.
Minder beton, meer beleving
Een van de kernkeuzes in het ontwerp is de gedeeltelijke ontharding van het plein. Grote delen van het huidige betonnen oppervlak maken plaats voor nieuwe bomen, planten en natuurlijke zones. Die vergroening gaat hand in hand met het voorzien van zitbanken, picknicktafels en plekken voor spontane ontmoeting. Vooral in de Fontainasstraat wordt ruimte gemaakt voor speelelementen voor kinderen, terwijl de César Depaepestraat een ruimer voetpad en extra beplanting krijgt. De vernieuwde ruimte biedt comfort én uitnodiging: ze wordt rustiger zonder saai te zijn.
De ingrepen zijn niet louter functioneel, maar dragen ook bij aan een gevoel van collectief eigenaarschap. Tijdens het ontwerpproces werd actief samengewerkt met buurtbewoners, jeugdgroepen en kinderen – jongens én meisjes. Die participatieve aanpak vertaalt zich in een plein dat inzet op diversiteit in gebruik en een evenwicht zoekt tussen rust, spel en circulatie. De Zuidwijk krijgt zo geen pasklare oplossing, maar een genuanceerde herinterpretatie van wat publieke ruimte kan zijn.
Veiliger circuleren in een groene omgeving
Ook de verkeersstromen rond het plein worden grondig herbekeken. Zo wordt een deel van de Vlogaertstraat afgesloten voor autoverkeer. In de plaats komt een slingerend, natuurlijk ogend pad van twee meter breed, dat comfortabel is voor voetgangers en fietsers, maar snelheid ontmoedigt. Die zachte ingreep bevordert actieve mobiliteit zonder nieuwe conflicten te creëren. Daarnaast wordt het kruispunt met de Emile Feronstraat overzichtelijker en logischer verbonden met het metrostation Hallepoort, wat de leesbaarheid van de ruimte versterkt.
De heraanleg maakt komaf met de onduidelijke mix van functies en het overaanbod aan verharding. In plaats van het verkeer centraal te stellen, komt de nadruk nu te liggen op toegankelijkheid, rust en visueel comfort. De natuurlijke aankleding en heldere hiërarchie tussen weggebruikers dragen bij aan een gevoel van veiligheid, wat in een dichtbevolkte wijk als deze geen overbodige luxe is.
Sport, spel en fietsen krijgen nieuwe plek
Binnen het nieuwe ontwerp is ook veel aandacht voor sport en spel. Het bestaande minivoetbal- en basketbalveld blijft behouden, maar krijgt bijkomende sportmarkeringen. Vlak daarnaast komt een streetworkout-zone, en verspreid over het plein worden drie verschillende speelplekken voorzien voor kinderen. Deze keuzes zorgen voor een evenwicht tussen actie en ontspanning, en geven jongeren en gezinnen een duidelijke plaats in het straatbeeld.
Om dat alles goed te ondersteunen, worden extra fietsenstallingen voorzien vlakbij de sportzones en speelplekken. Dat is niet alleen praktisch, maar zet ook in op duurzame verplaatsingen in de wijk. De ontwerpers zorgen voor een logische spreiding van functies, waardoor het plein levendig blijft zonder chaotisch te worden. Elke ingreep draagt bij aan een publieke ruimte die zowel uitnodigt tot gebruik als rust uitstraalt.
Start van een bredere stedelijke herwaardering
De heraanleg van de Jacques Francksquare is niet zomaar een lokaal project: ze vormt de eerste concrete realisatie binnen het Duurzaam Wijkcontract Zuid en is daarmee een scharniermoment voor de verdere ontwikkeling van de wijk. Door in te zetten op leefbaarheid, vergroening en participatie toont het project hoe stedelijke transformatie gedragen en doelgericht kan verlopen. De wijk wordt niet heruitgevonden, maar langzaam en zorgvuldig herijkt.
In een volgende fase komen ook de Claes- en Feronstraat aan bod. Daarvoor werd recent een ontwerp geselecteerd in samenwerking met de Brusselse Bouwmeester. Die gelaagde aanpak – eerst het plein, daarna de omgeving – maakt het mogelijk om stap voor stap de Zuidwijk te versterken zonder grote breuken of overgangen. De geplande werken aan de Jacques Francksquare starten begin 2026, nadat de gemeente een geschikte aannemer heeft aangeduid.
 
			 
                             
                             
										