Kantoorgebouw Baltisse geeft Take Off-site verder vorm

  • image
  • image
  • image
  • image

‘Take off’, het toekomstige kantorenpark aan de E40 in Gent, is in volle ontwikkeling. Bontinck Architecture and Engineering maakte niet alleen het masterplan op, ze zetten er ook kantoorgebouwen neer, waaronder Take Off Baltisse.

Het kantoorgebouw, vier bouwlagen van in totaal 1000 m², is momenteel in aanbouw en wordt in 2015 opgeleverd. Het gebouw moet de werkomgeving van de toekomstige werknemers zo aangenaam mogelijk maken. John Bontinck, zaakvoerder Bontinck Archticture and Engineering: “Kantoren zullen er in de toekomst helemaal anders uitzien. In de plaats van stoffige, vaste bureaus is de evolutie naar flexibele, technologische en kwalitatieve werkplekken onomkeerbaar. Daar zetten wij alvast op in.”

 

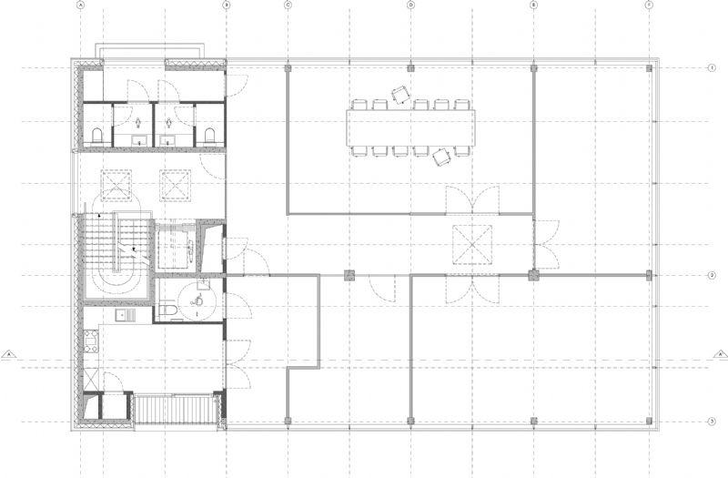
Licht en open karakter

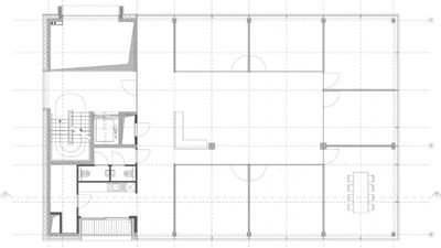
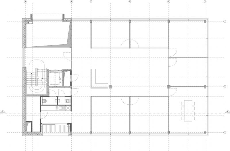
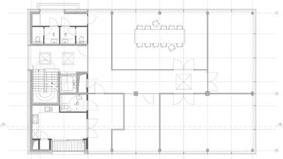
Take Off Baltisse bestaat uit twee delen. Een vaste kern langs de zuidzijde bevat de circulatie, sanitair, kitchenette, berg- en archiefruimte. De rest van de verdieping vormt één grote open ruimte, volledig afgewerkt met verdiepingshoge ramen. Die indeling herhalen de architecten op elk niveau. De horizontale gevelstroken tussen de verdiepingen, samen met de andere gesloten geveldelen, kregen een bekleding in een lichte, witte natuursteen. Samen met de uitvoerige beglazing krijgt het gebouw daardoor een licht en open karakter. De gelijkvloerse verdieping doet grotendeels dienst als parkeerruimte. De architecten trekken de vele glaspartijen van de bovenverdieping hier ook door, maar geven het glas een matte afwerking tegen de inkijk.

Het gebouw moest natuurlijk voldoen aan de EPB-regelgeving. “Een uitdaging,” volgens Bontinck, “door het grote percentage van beglazing. We kozen daarom voor hoogperformant glas in combinatie met een geoptimaliseerde isolatieschil om te voldoen aan de heersende isolatienormen. Die duurzaamheid trekken we door in het hele project.”

  • Deel dit artikel

Onze partners