Karel de Grote Hogeschool – Campus Zuid: eerste BREEAM excellent-school in Vlaanderen

  • image
  • image
  • image
  • image
  • image
  • image
  • image
  • image
  • image
  • image
  • image
  • image
  • image
  • image
  • image
  • image
  • image
  • image

Stramien verenigde zich met het Amsterdamse architectenbureau RAU voor de ontwerpwedstrijd van de nieuwe campus. Het team zette sterk in op de interactie van het gebouw met de omgeving, maar ook op een flexibel gebouw, dat verschillende onderwijsvormen toelaat. KdG Campus Zuid is het eerste schoolgebouw in Vlaanderen met een BREEAM excellent-label.

De Karel de Grote Hogeschool (KdG) werd in 2010 eigenaar van de oude Pareinsite op het Antwerpse Zuid. De aankoop kaderde in het algemeen masterplan om de verschillende opleidingen van KdG samen te brengen op drie kerncampussen.  Campus Zuid bundelt de opleidingen welzijn, onderwijs en gezondheidszorg, en is op verschillende vlakken een referentieproject voor de KdG.

 

Van koekjesfabriek naar hogeschoolcampus

De oorspronkelijke gevels van de Pareinfabriek werden behouden, samen met de achterliggende structuur. In de oude vleugels bevinden zich de kantoren en kleinere klaslokalen, genesteld binnen de structuur van de oude kolommen en bakstenen gewelven. In de nieuwe gebouwdelen brengt het ontwerpteam de grote functies onder, met name de aula’s, sportzaal, cafetaria en open leercentrum.

In de gevels aan de straatzijde ontwaar je een boeiende combinatie van oud en nieuw metselwerk. De oude fabriek werd opgetrokken met rood metselwerk met een typisch industrieel ritme van open en gesloten delen. In de nieuwe gevels zit een spel aan metselwerkverbanden, kleurnuances en fijne raamkaders, met een knipoog naar het strakke ritme in de oude fabrieksgevels. De gevelarchitectuur van het binnenplein gaat hiermee in contrast door een zachtere, transparante vormgeving, wat een verrassend hedendaags en helder beeld geeft.

 

Aan de stadszijde sijpelt het leven op de Troonplaats met terrasjes, hippe koffiebars en studentencafés, de campus binnen.

 

Verankerd in de wijk

De hogeschoolcampus is verankerd in de wijk door middel van een dubbele toegang: wie met de trein van Antwerpen-Zuid of de tram komt, betreedt het gebouw langs de Brusselstraat. Aan de stadszijde sijpelt het leven op de Troonplaats met terrasjes, hippe koffiebars en studentencafés, de campus binnen. Via beide zijden bereik je het grote binnenplein, dat het kloppende hart van de school vormt en zich uitstrekt over twee niveaus. Studenten, docenten en toevallige passanten ontmoeten er elkaar op elk moment van de dag.

 

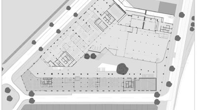
Een overzichtelijk gebouw

De nieuwe campus is zo georganiseerd dat je meteen de weg kent: alle les- en praktijklokalen zijn gelegen langs de gang rond het centrale binnenplein. Zo weet je op elke verdieping waar je bent, doordat het zicht op dit binnenplein je oriënteert.

Op de gelijkvloerse verdieping vind je naast de inkomhal een grote cafetaria met vier foodcorners, uitgebaat door lokale horecazaken die afwisselend de kans krijgen om je te overtuigen van hun culinaire kwaliteiten. Je kan tussendoor ook een cappuccino drinken in de coffeebar aan het leercentrum, dat een eigen toegang heeft vanop het binnenplein.

Op de eerste verdieping aan de zijde van de Singel kom je in de panoramazaal, die dient als lobby voor de grootste aula (500 zitplaatsen), en een spectaculair zicht biedt op de Konijnenwei. Wanneer je verder wandelt door de gangen, zie je dat deze zich hier en daar openen tot verblijfsruimte, met zitbanken onder de aula’s, of in gezellige nissen voor een kort gesprek. Op sommige plaatsen ontbreekt zelfs de wand tussen leslokaal en gang, zodat een maximale transparantie ontstaat en een minimale grens tussen informeel en formeel overleg.

 

"Door al deze maatregelen te combineren in een nieuw en deels bestaand en gerenoveerd gebouw dat gelegen is in de stad, behalen we daarmee het label BREEAM excellent. Campus Zuid is het eerste schoolgebouw in Vlaanderen met dit label."

 

Een performante school

Met Campus Zuid beschikt de Karel de Grote Hogeschool over een goed functionerend gebouw dat plaats biedt aan 6 500 studenten, waarvan er 3 500 tegelijkertijd les kunnen volgen. Vijfhonderd personeelsleden werken er voor de ondersteunende diensten van de school. In totaal bedraag te vloeroppervlakte 35 000 m², inclusief een kelderverdieping van 7 000 m² voor ongeveer 1 500 fietsen en 111 wagens. ’s Nachts en in het weekend kunnen buurtbewoners hun wagen in de parking stallen.

De studenten volgen les in grote en kleine les- en praktijklokalen, en in tien aula’s die ook gebruikt kunnen worden voor seminaries. De grote sporthal, gelegen op de vierde verdieping met een magnifiek zicht op de groene zuidrand van Antwerpen, kan worden gehuurd door verenigingen.

Cenergie voerde in opdracht van Stramien en RAU de studie duurzaam bouwen, de EPB-verslaggeving en de studie technieken (hvac, rwa en liften) uit. Daarbij besteedde het bureau bijzondere aandacht aan:

  •  Comfort en beleving: gezond binnenklimaat, akoestiek, luchtkwaliteit, lichttoetreding, veiligheid
  • Energie: minimale CO2-emissie, energiebesparing, energierecuperatie, hernieuwbare energiebronnen
  • Keuze van duurzame materialen en installaties gestoeld op een life cycle cost benadering: mogelijkheden tot gerecycleerd materiaal, verantwoord ontgonnen materialen, robuustheid

Het volledige gebouw wordt verlicht met ledtechniek voorzien van daglichtsturing en aanwezigheidsdetectie. Er is geen actieve koeling voorzien, de temperatuur in de zomer wordt gemilderd door nachtventilatie en ramen die automatisch worden gestuurd. De zonnewarmte wordt buitengehouden door middel van een zonwering met kantelbare, optrekbare lamellen. Het principe van de verwarming is dat van een thermal grid, een vraag gestuurd netwerksysteem dat werkt op lage temperatuur. PV-panelen op het dak zorgen voor energieopwekking. De stookinstallatie is zo ontworpen dat ze kan op termijn kan worden aangesloten op het nog aan te leggen lokale warmtenet.

"Door al deze maatregelen te combineren in een nieuw en deels bestaand en gerenoveerd gebouw dat gelegen is in de stad, behalen we daarmee het label BREEAM excellent. Campus Zuid is het eerste schoolgebouw in Vlaanderen met dit label", aldus het ontwerpteam. 

Bron Stramien

  • Deel dit artikel

Onze partners