Kijk binnen in een modernistische parel, in ere hersteld door BLEND architecten

  • image
  • image
  • image
  • image
  • image
  • image
  • image
  • image
  • image
  • image
  • image

In Brasschaat nam BLEND architecten de restauratie en verbouwing ter hand van een bijzondere woning uit 1935: de persoonlijke woon- en werkplek van de Nederlandse architect Petrus De Nijs en zijn zoon Cornelis langs de Bredabaan. Oorspronkelijk ontworpen als een modernistische architectenwoning, met een rationeel opgevat volume en uitgesproken vormentaal, werd het huis na de verkoop grondig getransformeerd tot een villa met rieten dak.

Decennialang was het die landelijke verschijning die de buurt kende, terwijl de strakke betonnen structuur, het afgeronde hoekvolume en het plat dak met solarium onzichtbaar waren geworden. Wanneer de huidige eigenaar de woning in 2020 koopt, groeit al snel het besef dat achter de latere verbouwingen een zeldzame parel van moderne architectuur schuilgaat, en wordt BLEND architecten gevraagd om die kwaliteiten opnieuw naar voren te halen en tegelijk een comfortabele gezinswoning te maken.

Rationele modernistische architectuur

Een historische vondst in het tijdschrift BÂTIR van maart 1937, gewijd aan “architectures modernes dans les provinces d’Anvers et de Limbourg”, speelt daarbij een cruciale rol. Daarin wordt de woning van Petrus en Cornelis De Nijs uitgebreid beschreven als een magnifiek voorbeeld van rationele modernistische architectuur: een eenvoudige rechthoekige plattegrond met afgeronde hoek, volledig opgetrokken in beton, met bepleisterde gevels, metalen balustrades en raamkaders in uitgesproken “ocean steamliner”-stijl.

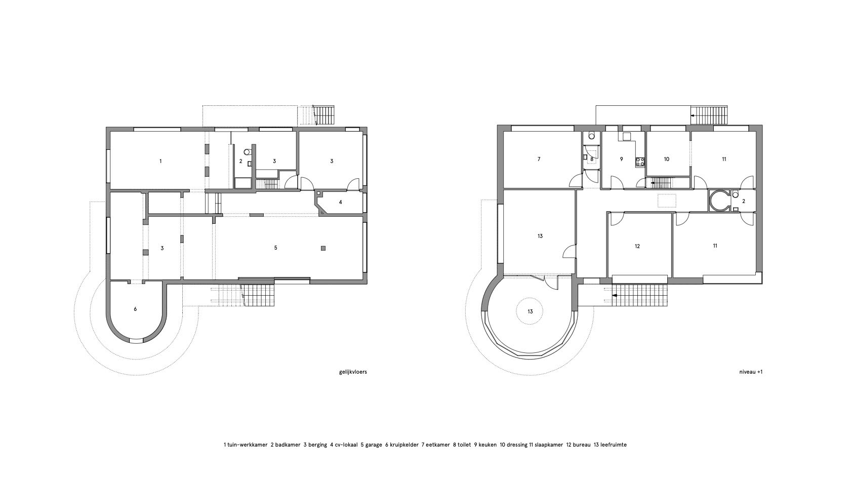
Het huis heeft een garage op het gelijkvloers, geen kelderverdieping, een plat dak met solarium en opvallend lichte interieurs vanuit verschillende richtingen, waarbij zelfs de rode kleur al in het oorspronkelijke ontwerp aanwezig is. Op basis van deze beschrijving en nauwkeurig sporenonderzoek in het bestaande gebouw kan BLEND architecten stap voor stap reconstrueren hoe de woning er in de jaren 30 uitzag, nog vóór de drastische ingrepen van de jaren 50, toen het rieten dak ook over het afgeronde volume werd doorgetrokken.

Restaureren én actualiseren

De restauratie concentreert zich op het opnieuw leesbaar maken van het oorspronkelijke concept van De Nijs, zonder de woning te reduceren tot een louter museaal object. Verdwenen planelementen, zoals de trap naar het dak en het solarium op het hoofddak, worden in ere hersteld, zodat de beleving van het modernistische huis opnieuw inclusief het dakterras en de buitenruimte erboven wordt.

De strakke hoofdvorm met afgeronde hoek, de horizontale geleding en de verhouding tussen gesloten vlakken en open raamstroken treden weer op de voorgrond, waardoor de karakteristieke mix van modernisme, streamline-invloeden en rationele opbouw opnieuw zichtbaar is. Tegelijk wordt de woning aangepast aan de energetische en comforteisen van vandaag, met respect voor de bestaande draagstructuur en het volumetrische basisidee dat Petrus en Cornelis De Nijs bij de bouw in 1935 hanteerden.

Helder samenspel met de buitenruimte

De omgeving van het huis speelt daarbij mee. Een nieuw tuinontwerp vormt een gerichte aanvulling op de architectuur, door de relatie tussen straat, woning en achterliggende tuin te versterken en de modernistische compositie van het volume te ondersteunen. Zo ontstaat opnieuw een helder samenspel tussen de betonnen constructie, de afgeronde hoek met solarium en de buitenruimte eromheen.

Dankzij de zorgvuldige aanpak van BLEND architecten is de woning vandaag opnieuw herkenbaar als de persoonlijke woon- en werkplaats van architecten Petrus en Cornelis De Nijs: een rationeel opgevatte, modernistische villa langs de Bredabaan, die zowel trouw blijft aan haar oorsprong als in uitstekende staat en met hedendaags comfort de toekomst tegemoet gaat.

Bron BLEND architecten & Admirable Art Deco

  • Deel dit artikel

Onze partners