Kleinschalig wonen in een voormalig Belgacom-gebouw (B2Ai)

  • image
  • image
  • image
  • image

Het oude Belgacom-gebouw in het hartje van Halle krijgt een nieuwe bestemming. Achter de prachtige art-decogevel komt het verhaal van NOA’H, een kleinschalig woonproject met 23 ruime appartementen naar een ontwerp van B2Ai

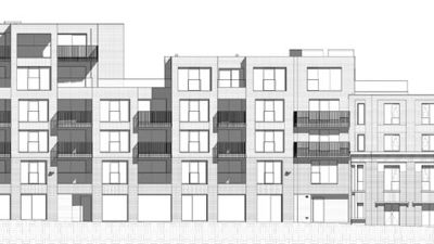
NOA’H, een herbestemmings- en nieuwbouwproject in Halle, omsluit het voormalige Belgacomgebouw met art-decogevel. Het Belgacomgebouw is opgenomen als waardevol gebouw en als deel van een waardevol stadsgeheel. Met zijn hoekligging sluit het de Arkenvest en de Basiliekstraat – dé winkelstraat van Halle – af, waardoor het meteen ook de grens van de stedelijke binnenkern markeert. De reconversie en de naastgelegen nieuwbouw vertrekken beiden uit een visuele ritmiek per twee verdiepingen, tevens de hoogte van de bestaande referentiegevel.

 

Respect voor wat bestond

Met de bovenbouw op het voormalige telecommunicatiekantoor realiseert B2Ai een waardige toevoeging, met respect voor wat bestond. De dakrand van het bestaande gebouw blijft behouden en de ritmering van de gevelopeningen wordt overgenomen. De twee bouwlagen boven op de oorspronkelijke gevel lopen naar de Basiliekstraat toe terug naar één extra verdieping, om aan te sluiten op de schaal van de winkel- en horecapanden. De lichte baksteen vormt een eenheid met het eveneens nieuw te bouwen naastgelegen wooncomplex.

 

Uiteenlopende typologieën

Om één harmonieuze gevelgroep te creëren langsheen de Arkenvest, sluit de donkerkleurige sokkel van het gebouw aan bij het bestaande en naastgelegen Arkenvest-Molenborre. De donkere kleur vindt een tegengewicht in de hoge transparantiegraad van de sokkel, die voornamelijk onderdak zal bieden aan retail en diensten. De baksteen van twee boven gelegen bouwlagen komt overeen met die van de toegevoegde toplagen op het beschermde gedeelte. Slechts 50% van het volume kreeg een derde bouwlaag, waardoor verticaal speelse uitsprongen ontstaan. Zij benadrukken de uitleenlopende typologieën van het kleinschalige wooncomplex.

Bron B2Ai

  • Deel dit artikel

Onze partners