Korteknie Stuhlmacher Architecten transformeert basisschool Edison in Hoboken tot open en gelaagde leeromgeving
In Hoboken onderging basisschool Edison een diepgaande metamorfose. Wat vroeger een imposant en gesloten scholencomplex was — ontworpen om orde en gezag uit te stralen — is vandaag een warme, open leeromgeving die inspeelt op de leefwereld van het kind. In opdracht van AG Vespa en Stedelijk Onderwijs Antwerpen ontwierp Korteknie Stuhlmacher Architecten een ingrijpende renovatie en uitbreiding die de rigide structuur van het oorspronkelijke gebouw doorbreekt en afstand vervangt door betrokkenheid. Eind 2024 werd de vernieuwde school in gebruik genomen.
Basischool Edison is gehuisvest in een monumentaal bakstenen gebouw uit het begin van de twintigste eeuw, gelegen aan de Onderwijzersstraat. Dit historische volume vormde het uitgangspunt van het ontwerp. De architecten kozen ervoor om niet te slopen, maar met zorg te restaureren en strategisch aan te vullen. Zo blijft het erfgoed voelbaar, maar wordt het aangepast aan de behoeften van een hedendaagse schoolgemeenschap.
Veelzijdige leerzone
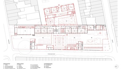
Binnen deze oudbouw is de lagere school ondergebracht. De oorspronkelijke klaslokalen werden gerenoveerd en opnieuw ingericht, met behoud van de heldere structuur en hoge plafonds. Ook de markante onderwijzerswoningen langs de straatzijde werden gerestaureerd en herbestemd: één fungeert voortaan als conciërgewoning, de andere als administratief centrum. Aan de achterzijde van het gebouw creëerden de architecten, op enige afstand van de bestaande gevel, een nieuwe circulatieruimte. Hierdoor ontstaat een veelzijdige leerzone die niet alleen verbinding brengt, maar ook extra verblijfskwaliteit toevoegt.
De opvallendste nieuwbouw is een groot, licht paviljoen dat dienstdoet als refter. Deze ruimte ligt tussen het hoofdgebouw en de oorspronkelijke schoolmuur in, en vormt een verbindend element tussen oud en nieuw. Met zijn uitkragende luifels, twee open tuingevels en luchtige structuur contrasteert het paviljoen bewust met de zwaarte van de oudbouw, zonder ermee te botsen. Binnen- en buitenruimte vloeien hier visueel én functioneel in elkaar over.
Zachte vormentaal
Waar de lagere school binnen de bestaande muren werd georganiseerd, kreeg de kleuterschool een volledig nieuw onderkomen. Aan de oostzijde van het perceel, op de voormalige publieke parkeerzone aan de Jozef Cardijnstraat, werd een L-vormig gebouw toegevoegd. Deze uitbreiding staat als zelfstandig volume tegen het hoofdgebouw geschoven, maar behoudt door haar opzet en materialisatie een eigen identiteit binnen het grotere ensemble.
De nieuwe kleuterschool is ontworpen op maat van kleine kinderen. De architectuur is laag, vriendelijk en herkenbaar, met hellende daken en een zachte vormentaal. Binnen zijn telkens twee klaslokalen geclusterd tot een unit, verbonden door een brede multifunctionele gangzone die dienstdoet als ontmoetingsplek, refter en speelruimte. Deze gedeelde zones creëren informele leermomenten buiten de klas en stimuleren sociaal contact tussen kinderen van verschillende leeftijden.
Sequentie van buitenruimten
Op het gelijkvloers opent de kleuterschool zich naar een beschutte speeltuin, die rechtstreeks toegankelijk is vanuit de binnenruimte. Bovenin zorgen twee grote dakkapellen voor extra lichtinval, uitzicht en intieme hoekjes. De hele opbouw is afgestemd op het perspectief van jonge kinderen: overzichtelijk, geborgen en licht. Zo ontstaat een omgeving die niet alleen functioneel is, maar ook emotioneel aanspreekt.
Het ontwerp maakt een duidelijk onderscheid tussen kleuters en lagereschoolkinderen, maar vermijdt elke vorm van segregatie. De gebouwen zijn verbonden via buitenruimten die elk een eigen karakter hebben: tuinen, pleinen, speelzones en overdekte doorgangen vormen samen een boeiend parcours. Deze ruimtelijke sequentie maakt van de school een geleding in plaats van een gesloten massa.
Gang wordt ‘leerstraat’
Ook de voormalige achterkant van het bestaande gebouw kreeg een tweede leven. De gang werd getransformeerd tot een 'learning street' — een reeks intieme leernissen die visueel en fysiek in verbinding staan met de klaslokalen. Deze zones kunnen gebruikt worden voor zelfstandig werk, overlegmomenten of rust, en dragen bij aan een meer gelaagd onderwijslandschap binnen één gebouw.
Het geheel straalt nu een open karakter uit, niet alleen naar de kinderen toe, maar ook naar de wijk. Wat ooit een afgesloten complex was, is vandaag een school die haar gezicht toont aan de buurt. Door de nieuwe volumes slim te positioneren en de omheiningen open te houden, ontstaat er een vanzelfsprekende relatie met de stedelijke omgeving rondom.
 
			 
                             
                             
                             
                             
                             
                             
                             
                             
                             
                             
                             
                             
                             
                             
                             
                             
                             
                             
                             
                             
                             
                             
										 
										 
										