KPW Architecten ontwerpt met kinderdagverblijf De Molenketjes een nieuw sociaal ankerpunt voor Molenbeek
In de Lessenstraat in Sint-Jans-Molenbeek werd de eerste steen gelegd van het nieuwe kinderdagverblijf De Molenketjes, een ontwerp van KPW Architecten. Het project vormt een sleutelelement binnen het duurzame wijkcontract Rondom Westpark en komt tot stand in samenwerking met Paridaens ingenieurs, Atelier T en Daidalos Peutz. Naast de opvang voor 45 kinderen voorziet het gebouw ook kantoren voor het Huis van het Kind en een consultatiepunt van Kind & Gezin. De crèche is een belangrijke investering in de uitbreiding van Nederlandstalige opvangcapaciteit in Molenbeek, waar de nood al jaren hoog is.
Het ontwerp is opgevat als een ‘open huis’, een multifunctioneel gebouw dat zich sterk verankert in de buurt en tegelijk nieuwe verbindingen legt. De realisatie van een doorsteek tussen het toekomstige J.B. Decockpark en de Lessenstraat doorbreekt de gesloten straatwand en opent de wijk naar groen. Zo ontstaat een plek die niet enkel kinderen en ouders bedient, maar ook de buurtbewoners mee betrekt.
Architectuur in dienst van de buurt
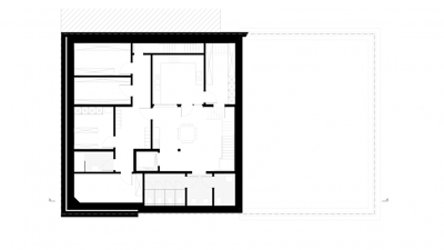
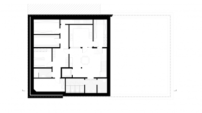
De nieuwe infrastructuur telt vier bovengrondse bouwlagen en één ondergrondse laag. KPW Architecten zocht naar een balans tussen de bestaande gevelrij in de Lessenstraat en de zachte, nieuwe doorsteek die het project structureert. Grote raampartijen en de positionering van functies langs zowel straat als doorsteek maken het gebouw maximaal zichtbaar en toegankelijk. Het resultaat is een herkenbaar en sociaal ankerpunt in de wijk, dat zich naar twee zijden opent en de dialoog aangaat met zijn omgeving.
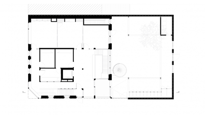
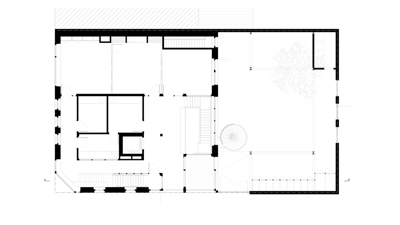
Centraal in het plan ligt het inkomsas, dat fungeert als scharnierpunt tussen straat, doorsteek, tuin en gebouw. Ouders kunnen er buggy’s stallen in een afgesloten ruimte en zich vlot verplaatsen naar de leefgroepen. Aan het einde van de dag wordt de tuin een verlengstuk van de wachtruimte binnen: een plek waar ouders elkaar ontmoeten, napraten en de kinderen rustig kunnen ophalen. Deze combinatie van praktische oplossingen en sociale interactie toont hoe de architectuur zich volledig in dienst stelt van het dagelijkse leven.
Een multifunctioneel en duurzaam concept
Naast het kinderdagverblijf biedt De Molenketjes ruimte aan een consultatiebureau van Kind & Gezin en kantoren voor het Huis van het Kind. De lokalen zijn buiten opvanguren ook beschikbaar voor buurtactiviteiten, wat de maatschappelijke rol van het gebouw verder versterkt. Het project maakt gebruik van circulaire bouwmaterialen en zet in op energiezuinige technieken, zodat duurzaamheid hand in hand gaat met kindvriendelijkheid.
De tuin en meerdere terrassen nodigen uit tot spel en rust, en brengen de kinderen in direct contact met de natuur. De toekomstige doorsteek geeft het geheel een langgerekt ‘gezicht’, met twee toegangen: via het inkomsas of via een poort in het hekwerk. Dit open karakter maakt dat het gebouw niet louter een crèche is, maar een gedeelde plek voor zorg, ondersteuning en ontmoeting.
Een publiek-private samenwerking
De totale investering bedraagt ruim 5,4 miljoen euro en wordt gedragen door verschillende partners, waaronder Urban.brussels, de Vlaamse Gemeenschapscommissie, VIPA en de gemeente Sint-Jans-Molenbeek. De uitvoering is in handen van bouwonderneming Gillion Construct, terwijl de dagelijkse werking na oplevering in maart 2027 wordt verzekerd door de gemeentelijke vzw Molenketjes.
Met dit project onderstreept Molenbeek zijn engagement voor jonge gezinnen en voor kwalitatieve Nederlandstalige opvang in Brussel. Dankzij de architecturale keuzes van KPW en de nauwe samenwerking tussen overheid en adviseurs groeit De Molenketjes uit tot meer dan een crèche: het wordt een duurzaam en sociaal knooppunt in het hart van de stad.
 
			 
                             
                             
                             
                             
                             
                             
                             
                             
                             
                             
										 
										