Label Architecture breidt lagere school uit zonder verlies van ruimtelijke kwaliteit

  • image
  • image
  • image
  • image
  • image
  • image
  • image
  • image
  • image
  • image
  • image
  • image
  • image

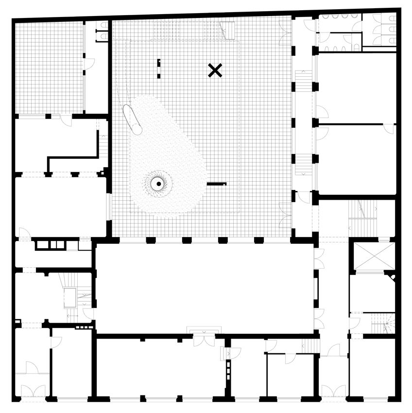
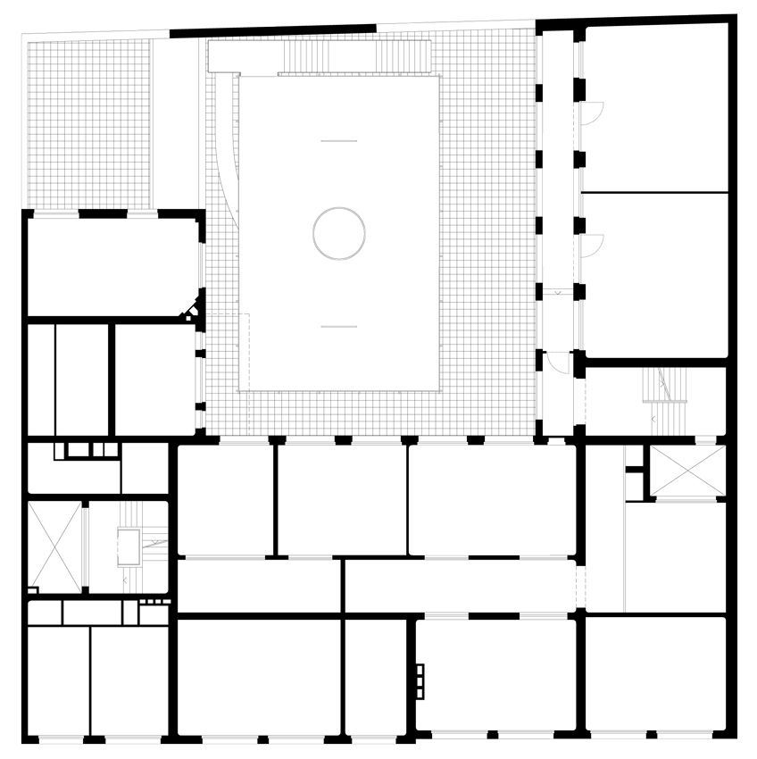
Label Architecture heeft de gemeentelijke basisschool Arc-en-Ciel en het kinderdagverblijf in Sint-Joost-ten-Node uitgebreid en gerenoveerd. De school is gelegen in de meest dense gemeente van België. De uitdaging was dan ook om een goed evenwicht te bewaren tussen de open en bebouwde ruimte. De nieuwe toevoegingen werden zo geschikt om de kwaliteit van de buitenruimte te garanderen.

Label Architecture voorzag een uitbreiding met vier nieuwe klassen, nieuwe speelplaatsen en een optimalisatie van de oostelijke vleugel door het toevoegen van een nieuwe gevel.
 

Dakterras

De eerste stap was het opvullen van de lege hoek tussen beide gebouwen. Door het invoegen van een klassencluster en dakterras met uitzicht op de benedenstad werden beide gebouwen verenigd. De lichte structuur van de borstwering van het dakterras voltooit en onderlijnt het silhouet van het geheel en zorgt tegelijkertijd voor een vloeiende overgang met de lagere buren.


Toevoeging luifel

De oppervlakte van de speelplaats werd verdubbeld door het toevoegen van een grote luifel. Deze ‘tafel’ overdekt een plek met een klimrek en andere speeltuigen terwijl zijn dak dienst doet als sportveld.


Ruimte ten volle benutten

Ondanks zijn dense bebouwing worden er toch enkele uitzonderlijke ruimtes gecreëerd. Het ontdubbelen van de westelijke gevel zorgt voor een opwaardering van de bestaande klassen, terwijl het toevoegen van een klassencluster een dakterras mogelijk maakt met een indrukwekkend uitzicht. Zo worden de crèche en de school ook visueel geïntegreerd in de buurt. De 'tafel' zorgt dan weer voor een zeer efficiënte en ludieke speelstructuur waardoor een minimale ruimte een avontuurlijke speelplaats wordt.

Bron Label Architecture

  • Deel dit artikel

Onze partners