Magasin 4 haalt bouwvergunning binnen voor nieuwe Brusselse muziektempel (CENTRAL)

  • image
  • image
  • image
  • image
  • image
  • image
  • image
  • image
  • image
  • image

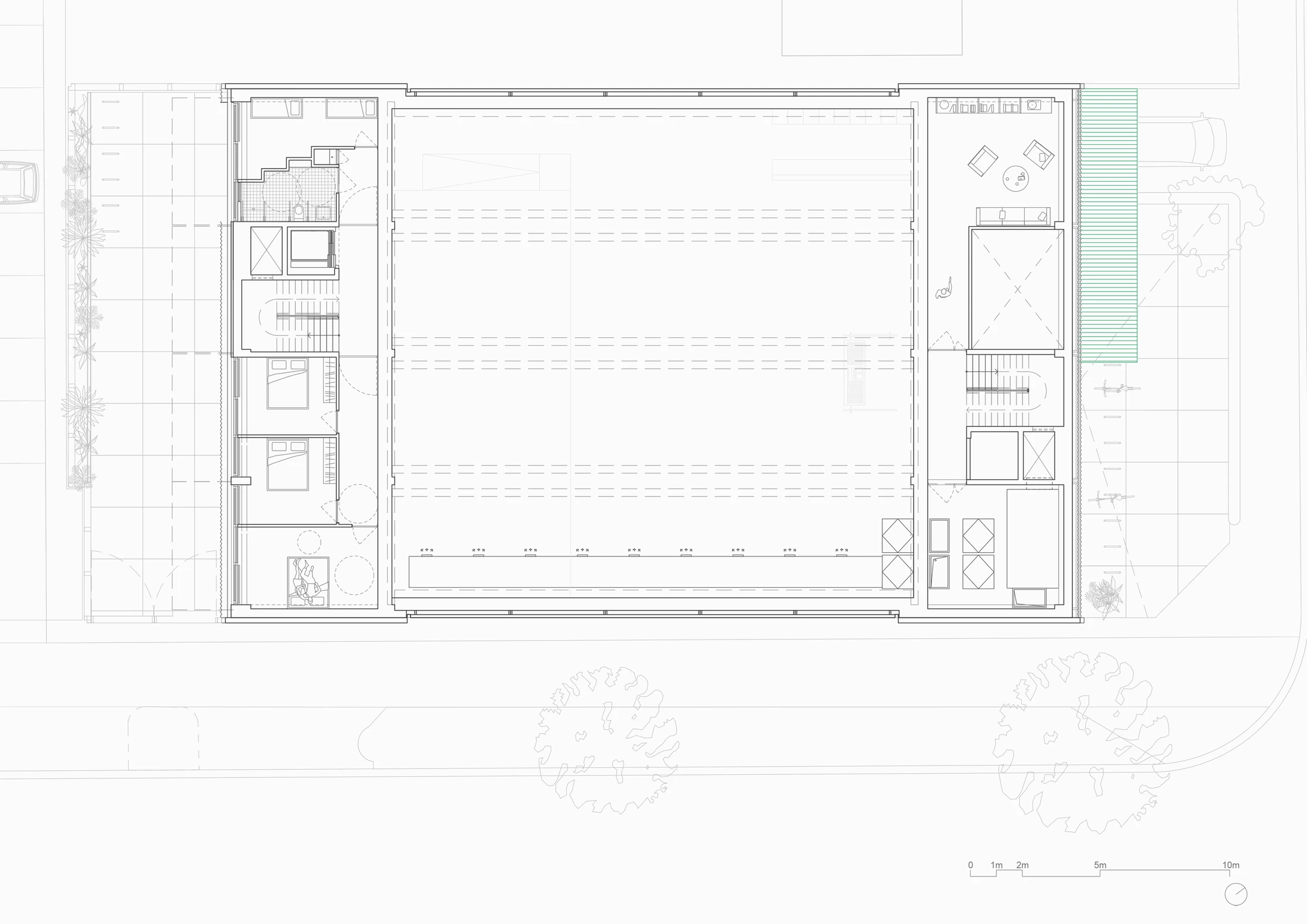
De Brusselse muziekclub Magasin 4 heeft de bouwvergunning in handen voor haar nieuwe concertzaal op de Havenlaan. De nieuwe alternatieve muziek- en feesttempel zal plaats bieden aan 500 bezoekers en werd ontworpen door architectenbureau CENTRAL. Het project is een samenwerking tussen Stad Brussel, de Maatschappij voor Stedelijke Inrichting (MSI), het Brussels Gewest en Magasin 4. Het einde van de werken staat gepland voor 2024, het jaar waarin de club dertig jaar bestaat.

De gekozen locatie voor het nieuwe onderkomen van Magasin 4 ligt in het kanaalgebied, op een leegstaand perceel op de hoek van de Havenlaan en de Stapelhuisstraat. De uitdaging voor het ontwerpteam bestond erin het concertzaalprogramma op te nemen in een productieve en industriële context en tegelijkertijd optimale omstandigheden te creëren voor de artiesten die er zullen worden ontvangen.

 

Co-creatieproces

Aangezien het programma van het project in de loop van de tijd kan veranderen, moest er bijzondere aandacht worden besteed aan circulaire principes: aanpasbaarheid, flexibiliteit, omkeerbaarheid, en ook minimalisering van de koolstofvoetafdruk, met name bij de keuze van de materialen. Bovendien maakt het project deel uit van het Stadsvernieuwingscontract ‘Citroën-Vergote’. De ontwerper moest dus een co-creatieproces opzetten dat een proactieve deelname van de verschillende betrokken actoren mogelijk maakt: de Stad Brussel als toekomstige eigenaar van het nieuwe gebouw, de Maatschappij voor Stedelijke Inrichting (MSI) die de werkzaamheden leidt en de gebruiker van de zaal, de vzw Magasin 4.

"Deze mythische concertzaal van de undergroundcultuur sinds meer dan 25 jaar krijgt eindelijk een volwaardige plaats aan het kanaal in Brussel. Het ruimtelijke potentieel wordt verdubbeld, waardoor er meer activiteiten kunnen plaatsvinden en nieuwe mogelijkheden ontstaan. Deze openbare architectuur viert de Brusselse initiatieven en energie en richt zijn alternatieve aanpak op de wijk en op de stad."
- CENTRAL office for architecture and urbanism -

 

Sterke stedelijke aanwezigheid

Het perceel waarop de toekomstige zaal voor Magasin 4 wordt gebouwd, is niet erg groot voor een vrij compleet en complex programma. Bovendien dwingt de industriële context waarin het culturele programma een plek krijgt, de projectontwerpers tot het bedenken van een oplossing die tegelijk coherent en robuust is.

Architectenbureau CENTRAL heeft uiteindelijk gekozen voor een stedelijke vorm met een sterke en aparte identiteit, die zich losmaakt van zijn industriële omgeving. Wie het gebouw in H-vorm van dichterbij bekijkt, merkt dat de hoogte van de twee torens die de H vormen, verwijst naar de omringende gebouwen, waardoor een sterke stedelijke aanwezigheid ontstaat.

 

Verschillende cirulaties

Door de vorm van het gebouw kunnen ook de circulatiekwesties worden aangepakt. De concertzaal wordt ingeplant langs de Havenlaan, met aan weerszijden onderling onafhankelijke verticale circulaties. Het ene been van de H is bestemd voor de circulatie van het publiek en het andere been voor de circulatie van de artiesten.

Op het dak komt er een terras dat toegankelijk is voor het publiek of dat kan worden voorbehouden voor de artiesten en het personeel. Het kan ook toegankelijk zijn wanneer de zaal gesloten is. Deze ruimte op het dak biedt ook de mogelijkheid om, zoals gevraagd in het programma, er een extra volume op te plaatsen met het oog op een toekomstige uitbreiding.

Bron bouwmeester maitre architecte

  • Deel dit artikel

Onze partners