Marc Dubois: Pritzker Prize voor RCR - Een bibliotheek in Barcelona en Gent (longread)

  • image
  • image
  • image
  • image
  • image
  • image
  • image
  • image

De Catalaanse architecten RCR (Rafael Aranda, Carme Pigem, Ramón Vilalta) kregen de fel begeerde Pritzkersprijs 2017 voor hun gehele oeuvre. Ongeveer gelijktijdig opent in Gent De Krook, de nieuwe bibliotheek, een project dat RCR Arquitectes ontwierp in samenwerking met Coussée & Goris architecten. Architectuurcriticus Marc Dubois laat zijn licht schijnen over de bibliotheek van RCR in Barcelona. 

De Krook is niet de eerste bibliotheek van RCR. In de binnenstad van Barcelona ontwierp dit trio van architecten een wijkbibliotheek met extra aandacht voor de directe omgeving (2002-2008) . In mei 2009 bezocht ik dit project en op vraag van RCR schreef ik een tekst voor een publicatie die echter niet werd uitgegeven.

 

Het intens maken van een binnengebied

Meestal houden wij de steden in ons geheugen vast met architectuur. Wie Parijs uitspreekt denkt direct aan de Eifeltoren, Londen aan de Tower Bridge of Big Ben en Rome aan het Colosseum of het Sint-Pietersplein. Voor architecten wordt bij de stad Ljubljana de directe band gelegd met de vele projecten van Joze Plecnîk.

Voor een breed publiek zijn er maar weinig steden met een directe verwijzing naar een architect uit de 20ste eeuw. Wie Barcelona uitspreekt, denkt onmiddellijk aan het genie Antoni Gaudí (1852-1926). Jaarlijks komen honderdduizenden toeristen naar de Catalaanse hoofdstad om zijn eigenzinnige bouwwerken te bewonderen. Het oeuvre van de befaamd bouwmeester Gaudí is niet enkel een deel van het rijk onroerend patrimonium, het is tevens een permanente aanzuigingkracht voor het toerisme. Gaudí is een economische goudmijn voor Barcelona. Een beter “product” om Barcelona te positioneren binnen het aanbod van citytrips valt nauwelijks voor te stellen.

De namen van de ontwerpers die een grote impact hebben gehad op de stedenbouwkundige ontwikkeling zijn minder gekend. Georges-Eugène Haussmann (1809-1891) bepaalde onder Napoleon III ingrijpend het Parijse straatbeeld met de aanleg van brede en rechte boulevards. Maar er is meer aan de hand dan brede lanen en de nieuwe ondergrondse infrastructuur, de naam Haussmann is tot op heden ook verbonden met het type van bebouwing, “un immeuble haussmannien”, een condens gebouwtype vaak gestructureerd rond een binnenkoer.

De directe relatie tussen het concept van de publieke ruimte en het type van bebouwing komt het sterkst tot uitdrukking in het uitbreidingplan voor Barcelona uit 1859, bedacht door Ildefons Cerdà (1815-1876). Veel studies tonen aan hoe intelligent het stedenbouwkundig plan in elkaar zit. Alhoewel de keuze voor een gritstructuur reeds een lange historische traditie bezit, wist Cerda deze oplossing een dimensie te geven van een moderne rationaliteit. De Diagonal en de Gran Via geven aan het plan een direct afleesbare basisstructuur, een ruggengraat die de stedelijke ruimte definieert. Een mix van orde en herhaling waarbij de individuele expressie van de straatgevel werd toegelaten, zo ontstond een eenheid binnen een veelheid aan expressie. De vierkantige bouwblokken met afgesneden hoeken ritmeren de publieke ruimte en werden in de loop der jaren gerealiseerd. De expositie en publicatie “Cerdà I la Barcelona del Futur / Realitat versus projecte”, naar aanleiding van de viering 150 jaar Eixample of Barcelona in 2009, toonde op een voorbeeldige wijze de verschillende gelaagdheden die het concept bezit. De wijze waarop Cerdà de richting van de aanwezige wegen wist op te nemen in zijn plan is boeiend. De aanwezige brede laan met bomen naar het noorden, nu de Passeig de Gràcia, valt niet samen met het grit van Cerdà, een kleine verdraaiing die men nauwelijks ervaart.

 

Het dichtslibben van een stedelijk bouwblok

Zoals in veel Europese steden werden de binnen gebieden van de stedelijke bouwblokken dicht gebouwd met een veelheid aan constructies: werkplaatsen, ateliers en zelfs kleine fabrieken. Dit proces van dichtslibben heeft zich ook voorgedaan in Barcelona. Het optimaliseren van het grondgebruik was de eerste prioriteit om de stedelijke dynamiek te stimuleren. Een mix van woningen en ateliers in de binnenstad was ook in Barcelona een realiteit. Door schaalvergroting en strengere eisen op verschillende gebieden kunnen ateliers binnenin de bouwblokken niet meer worden getolereerd.

 

"Bij elk project dat RCR Arquitectes publiceert, is er een synthesetekening. Geen computerschema maar een gevoelig aquarel, een schets die de essentie van het project tracht vast te houden."

 

Om de stad leefbaarder te maken, een verhoging van de levenskwaliteit, werd vanaf 1985 in Barcelona gestart om de binnen gebieden van de bouwblokken te integreren in een beleid stadsrenovatie. Het elimineren van constructies met een industrieel karakter binnen de bouwblokken liet toe nieuwe infrastructuur in te brengen voor de wijkbewoners, plaatsen om samen te komen, zowel buiten als binnen. Een geslaagd voorbeeld is gelegen nabij de Mercato San Jordi, een ontwerp van RCR Arquitectes.

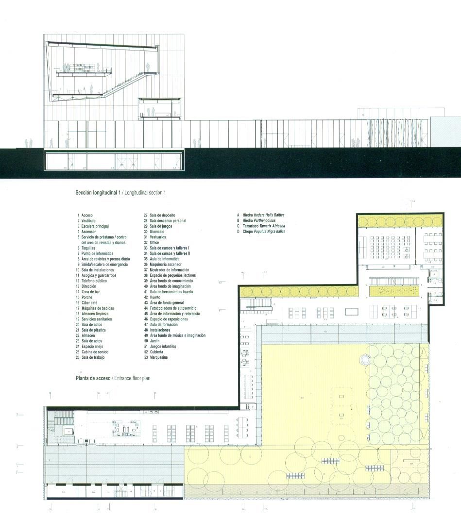
Bij elk project dat RCR Arquitectes publiceert, is er een synthesetekening, geen computerschema maar een gevoelig aquarel, een schets die de essentie van het project tracht vast te houden. Het Cerdà-bouwbok is de omranding, in het midden wordt in één schetsbeweging de verbinding aangegeven tussen het verticaal opgebouwde straatgedeelte en het horizontaal binnengebied. Wie aandachtig de inplanting bekijkt, stelt vast dat de rechtlijnige structuur van de percelen in feite het ontwerp reeds aangeeft. De evenwijdige lijnen die de eigendomsgrenzen aangeven, structuren de nieuwe inbreng. De aanwezig ordening wordt niet verstoord, maar wordt juist aangewend om het nieuwe planmatig te structureren.

Elke plek in een stedelijke context bezit een geschiedenis, of zoals Christian Norbert-Schulz omschreef een ‘genius loci’, de geest van de plek. De monumentale, hoge schoorsteen is een visueel relict van het industrieel verleden van deze site. De bakstenen schouw is net “een vlaggenmast zonder vlag”, de statige positie dient enkel om het geheugen van deze plaats door te geven aan de volgende generaties. Er werd hier gekozen om een nieuwe toekomst te creëren zonder het verleden compleet uit te wissen. Juist deze zorg om de historische gelaagdheid te behouden is een verrijking van het project.

Hoe op een optimale wijze de straatzijde wordt verbonden met het binnen gebied is van cruciaal belang. Wanneer de tussenzone te laag is en de zijwanden te gesloten zijn, ontstaat automatisch het effect van een gang, een niet aangenaam gebied dat eerder afstoot dan een uitnodigend gebaar maakt om deze zone te betreden. Door de hoogte en de volledig beglaasde wand kant inkom en leeszaal wordt een directe band gelegd tussen de straat en het binnenste van het bouwblok.

De tekening van de doorsnede is de sleutel om het project te begrijpen en is ook de essentie van het ruimtelijk concept voor de voorbouw, het gedeelte van de bibliotheek. De doorgang is meer dan een hoge ruimte. Vanaf de straat is er ook een doorzicht tussen de tweede en de vierde bouwlaag, een onverwacht visuele oplossing die ook vanuit het interieur wordt benut om de band tussen straat en de semipublieke zone op een niet traditionele wijze te herdefiniëren. Het effect op openheid wordt nog versterkt door de weerkaatsing die ontstaat door het glanzend zwart oppervlak van de metalen plafondbekleding van de doorgang. Er ontstaat een royaal gebaar om de mensen uit te nodigen.

 

Meer dan een bibliotheek!

Het bouwprogramma omvat aan de straatzijde een bibliotheek en achteraan ruimtes voor samenkomst van de wijkbewoners, zowel in het interieur als op de binnenkoer. Met een grote beheersing werd dit binnen gebied vorm gegeven door eenvoudige materiaalkeuze, een zone van beplanting tot en met de verlichting en het zitmeubilair. De zitbanken voor het exterieur zijn door RCR Arquitectes ontworpen en worden hernomen, in een andere materiaaluitvoering, in het interieur van de bibliotheek.

Het gebruik van metaal speelt een grote rol in het werk van de RCR Arquitectes. Ditmaal geen bruine, matte staalplaten, zoals in hun verschillende projecten in Olot, maar metaal met een hoge graad van reflectie. In tegenstelling tot de strakke verticale lijnvoering in het hoofdvolume wordt in de laagbouw achteraan gebruik gemaakt van verticale metalen stroken die geplooid zijn volgens een nauwkeurig uitgewerkt compositorisch patroon. Door het torsen krijgt de staalband een stevigheid en blijft de lichtheid ervan behouden. De getorste verticale banden in de laagbouw achteraan, van vloer tot dakrand maken op een interessante wijze een overgangszone tussen interieur en binnenkoer. Hierdoor is er een visuele opdeling tussen de leeszaal op de begane grond en de open buitenruimte waar kinderen kunnen rondlopen en spelen.

Een levendig gebouw maken met zwart als hoofdkleur is op zich reeds een uitdaging. Enkel bij Jean Nouvel, in zijn opera van Lyon en het congrescentrum in Tours, is een gelijkaardige ervaring aanwezig. De kleuren van de boeken en de mensen die er vertoeven geven het kleuraccent, de architect legt zich bijna uitsluitend op het creëren van de ruimte toe en een boeiend parcours om de diverse aspecten van het interieur te ervaren. In een wereld met een overvloed aan kleuren is het de taak van de architect om een eerder neutraal karakter te geven om deze veelheid aan kleuren een plaats te geven. Dit is hier niet enkel het geval voor het interieur maar ook voor het exterieur. De laagbouw achteraan op de binnenkoer vormt visueel een neutrale sokkel met daarboven de kleurrijke achtergevels met de opgehangen gewassen kledingstukken.

 

"Het gebruik van metaal speelt een grote rol in het werk van de RCR Arquitectes."

 

Trappen in interessante gebouwen zijn meer dan loutere verbindingen tussen verdiepingen. RCR Arquitectes weten in dit project de trappen zo te positioneren dat boeiende ruimtelijke ervaringen worden gecreëerd. Door het perceel vooraan in drie zones op te splitsen wordt een interessante oplossing uitgewerkt om de evacuatietrap zo te integreren in het grondplan dat deze nauwelijks visueel als een extra ruimte wordt ervaren. De plaatsing van deze noodtrap in het interieur is logisch, maar wordt op een intelligente wijze aan de aandacht onttrokken om de hoofdtrap vooraan extra te benadrukken.

De open trap rond de liftkoker creëert een groot visueel genot bij het bewandelen van verdieping naar verdieping. Telkens wordt van gezichtshoek veranderd en blijft het totaal overzicht behouden. De aangebrachte vides sluiten perfect aan op dit parcours rond de trap. Rond deze liftkoker wordt ook gebruik gemaakt van getorste verticale metaalstroken. Op het eerst gezicht maar een detail, maar erg belangrijk is een zoektocht om tot een evidente eenheid te komen tussen binnen en buiten. Bovenaan in de bibliotheek wordt een andere soort trap geïntroduceerd, een trap als informele werkplek voor de jonge gebruikers. De basisvorm is ontstaan vanuit de doorsnede, het creëren van een doorzicht vanaf de straat naar de hemel. Door de trappen een dubbele optrede te geven ontstaan plekken waar men met een computer kan werken in een onconventionele zithouding. Voor deze trap niet wil gebruiken is er aan het venster een doorlopende werktablet voorzien. De trap als werkplek uitwerken is ook aanwezig in het RCR-ontwerp voor een nieuwe bibliotheek & mediatheek in Gent, ontworpen in samenwerking met de architecten Coussée & Goris.

Toen ik de bibliotheek voor de eerste maal zag dacht ik onwillekeurig aan een ander topwerk in Barcelona, het wederopgebouwde Duits Paviljoen door Mies van der Rohe ontworpen voor de grote tentoonstelling in 1929. De gelijklopende ambitie en beheersing om een fluïde overgang te bewerkstellingen tussen binnen en buiten, alsof dit de evidentie zelf is. Ook met het aanwenden van de weerkaatsing van de materialen weet RCR een vorm van ‘displacement’ te bekomen, een reflectie die visuele ervaring van vooraan en achteraan weet te combineren. Het is een gebouw waarbij de ruimtelijke ordening glashelder de opdeling weet te vertellen zonder dat er extra signalisatie moet worden aangebracht.

Bij valavond krijgt het exterieur een onverwachte verschijning. De hardheid van de verticale banden in het hoofdvolume wordt verzacht door het kunstlicht dat via de geperforeerde metaalplaat naar buiten komt. In dit project, een subtiele zoektocht naar de huid van een gebouw, op welke wijze grote glaspartijen gecombineerd worden met een semitransparante metalen vliesgevel. De geperforeerde metaalplaat beschermt het interieur tijdens de dag voor een te veel aan natuurlijk licht en laat bij avond het kunstlicht door met een mooi gedoseerde hoeveelheid.

 

"Toen ik de bibliotheek voor de eerste maal zag dacht ik onwillekeurig aan een ander topwerk in Barcelona, het wederopgebouwde Duits Paviljoen door Mies van der Rohe ontworpen voor de grote tentoonstelling in 1929."

 

Architectuur is meer dan het formuleren van ruimtes vanuit een programma van eisen. Architectuur bezit de kracht om licht zichtbaar te maken. Juist het samengaan van zwart als hoofdkleur en de lichtervaring in het gebouw maakt deze creatie zo uitzonderlijk. Terecht werd dit project door de internationale jury weerhouden als één van de zes nominaties voor de Mies van der Rohe Award 2009. Het is een boeiend voorbeeld van een transformatieproject binnen een stedelijke context, een antwoord op een maatschappelijke vraag naar meer open ruimte en culturele infrastructuur zonder echter de historisch gelaagdheid van de specifieke locatie te negeren.

 

Marc Dubois: december 2010. Foto’s: Marc Dubois 2009

Bron Marc Dubois

  • Deel dit artikel

Onze partners