Masterplan UCO-site Gent: sociale economie tussen de Bloemekenswijk en bedrijventerrein
De UCO-site is het laatste puzzelstuk in een complexe context van nieuwe ontwikkelingen. Het masterplan van BRUT architecture and urban design stemt de verschillende projecten op elkaar af en streeft er zo naar een meerwaarde te creƫren, zowel voor de bewoners van de Bloemekenswijk als voor de sociale economiebedrijven die zich op de site zullen vestigen.
De UCO-site is het laatste puzzelstuk in een complexe context van nieuwe ontwikkelingen. Het masterplan van BRUT architecture and urban design stemt de verschillende projecten op elkaar af en streeft er zo naar een meerwaarde te creëren, zowel voor de bewoners van de Bloemekenswijk als voor de sociale economiebedrijven die zich op de site zullen vestigen.
.jpg)
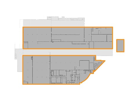
Het voormalige UCO-gebouw ligt binnen de 19e-eeuwse gordel van Gent, op een scharnierpunt tussen de dichtbebouwde Bloemekenswijk en een bedrijventerrein. Vanuit de dienst werk is het idee gegroeid om de gigantische fabriekshallen te herbestemmen als een cluster van sociale economiebedrijven. De Bloemekenswijk is een zeer dichtbebouwde wijk die nood heeft aan groene en open ruimte. Het Bloemekenspark kan op de UCO-site uitgebreid worden en zo uitgroeien tot een volwaardig buurtpark.
.jpg)
Door de harde ontsluiting van de bedrijvencluster langs het Oosten via de Gaardeniersweg te voorzien, kan aan de zijde van de Bloemekenswijk een aangesloten voorplein worden gecreëerd dat de wijk met het Bloemekenspark verbindt. Het gigantische UCO-gebouw (49.000m²) wordt in twee gesneden door een centrale as die alle bedrijven met elkaar en met het gebouw van het balenmagazijn verbindt. Dit balenmagazijn herbergt de gemeenschappelijke voorzieningen van de sociale economiecluster (bedrijfsrestaurant, opleidingslokalen,…), maar wordt ook voor de bewoners van de wijk opengesteld (sociaal restaurant, afhaalpunt, multifunctionele ruimtes, …).
.jpg)
Een bedrijvenpark combineren met een buurtpark op één site is een uitdaging. De sociale bedrijven moeten met elk hun eigen doelgroepen perfect kunnen werken en vragen een functionele en duidelijk afgebakende inrichting. Een buurtpark moet voldoende aangenaam, groen en veilig zijn. Het moet een toegankelijke plek zijn met voldoende open ruimte om allerlei gebruik toe te laten. De uitdaging ligt erin om beide functies zo ten opzichte van elkaar te positioneren dat er een voldoende duidelijke scheiding tussen beide bestaat, maar dat er ook nog plekken zijn waar synergie en ontmoeting tussen beide functies wordt gestimuleerd.
.jpg)
Door de geïntegreerde communicatie met de verschillende stakeholders en stedelijke diensten werd er een breed draagvlak gecreëerd voor het plan. Dit is zeer belangrijk voor de volgende fases van het project. Er werd gezocht naar synergie tussen alle actoren. Deze synergie vertaalt zich naar een efficiënter ruimtegebruik of naar functies die door verschillende bedrijven, maar ook door de wijk kunnen worden gedeeld. Zo is er sprake van een fietsherstelpunt, een kringwinkel of een afhaalpunt voor maaltijden. Allemaal functies waarvan de wijk als eerste kan profiteren.
.jpg)
Voor het onderzoek naar de indeling van de verschillende bedrijven in het bestaande gebouw werd er gewerkt met verschillende klimaatzones. Elk bedrijf kan onderverdeeld worden in kantoor- en vergaderruimtes (20°C), ruimtes waarin licht werk wordt verricht (18°C), ruimtes waarin zwaar werk wordt verricht (12°C), en buitenprogramma (onverwarmd). Door deze zones van de verschillende bedrijven te koppelen bekomen we een optimalisatie van de klimaatregeling. Er werd zowel vanuit bouwfysisch als vanuit structureel perspectief een audit van het bestaande gebouw opgemaakt.
.jpg)
Er werd in de studie een afweging gemaakt tussen de renovatie van de bestaande loos ten opzichte van afbraak met nieuwbouw. Het verschil in bouwkost werd uitgezet in de tijd ten opzichte van het verschil in energieverbruik. Voornamelijk voor de kantoor- en vergaderfuncties werd het verschil in bouwkost op een vrij korte termijn teruggewonnen door een beperking van het energieverbruik. De studie legt op dat de eigen parkeervraag (350PP) binnen de huidige gebouwenzone moet worden opgelost. Dit kan ofwel gestapeld, ondergronds of op het dak. De Lieve, een oud verbindingskanaal, wordt opnieuw opengelegd ter hoogte van de site.
.jpg)
.jpg)