META ontwerpt voor Lokale Politie Kouter Torhout trapvormig gebouw met maximale planflexibiliteit

  • image
  • image
  • image
  • image
  • image
  • image
  • image
  • image
  • image
  • image
  • image
  • image
  • image
  • image
  • image
  • image
  • image
  • image
  • image
  • image
  • image
  • image

In Torhout werd het project Centraal Politiegebouw Kouter officieel ingehuldigd door burgemeester Kristof Audenaert en korpschef Kris Depovere. De officiële inhuldiging is het sluitstuk van een intens traject, waarbij META sinds januari 2020 betrokken was als architect. Met uitzondering van de wijkposten worden de diensten van Lokale Politie Kouter gecentraliseerd van zeven verschillende gebouwen naar één Centraal Politiegebouw Kouter Torhout.

Begin 2020 verwierf META de opdracht voor het ontwerp van het nieuwe Centraal Politiegebouw Kouter Torhout. Na decennialang te opereren vanuit diverse gebouwen, verspreid over de ganse politiezone Gistel, Ichtegem, Jabbeke, Oudenburg en Torhout, worden de politiediensten nu gecentraliseerd. Lokale Politie Kouter zette samen met META een participatietraject op waarbij in onderling, open overleg het ontwerp werd vormgegeven. Hierbij was de politionele werking gedurende het ganse proces de primaire toetssteen waaraan het ontwerp diende te voldoen.

 

Politionele werking

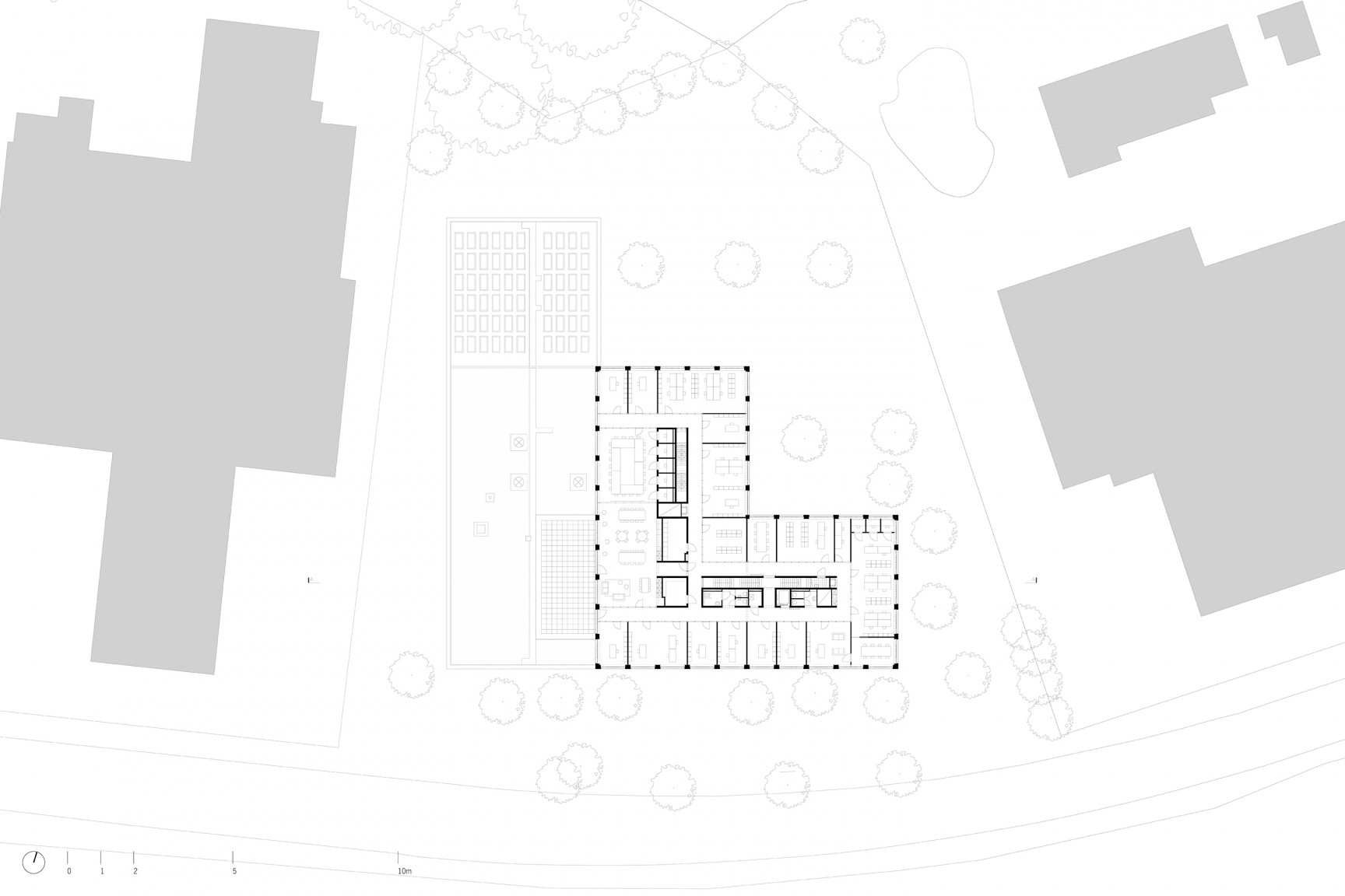
Het uiteindelijke ontwerp is een trapvormig gebouw, zowel in hoogte als in diepte, en symboliseert perfect de werking van de politie. Op de gelijkvloerse verdieping bevinden zich de grondgebonden functies omwille van publieke toegankelijkheid (onthaal en verhoor), voertuigentoegang (voertuigensas arrestantenzone), laden en lossen (logistiek) en nabijheid (wijkdienst).

Op niveau +1 bevinden zich de kantoren van de politiemedewerkers, de refter en de crisisroom, waar iedere hulpverleningsdienst (civiele bescherming, brandweer, ambulance...) over een eigen stiltecel beschikt om in geval van crisis snel te kunnen schakelen tussen multidisciplinair overleg en intern overleg binnen de eigen organisatie.

Op niveau +2 tot slot zijn de lokalen gepositioneerd van de korpsleiding en ondersteunende diensten.
De trapvorm biedt plaats aan dakoppervlakken die ingezet worden als dakterras of groendak. Dakdelen die niet in het zicht zijn, worden voorzien van zonnepanelen.

 

Stabiliteitsconcept

Ieder grondplan werd in samenspraak met Lokale Politie Kouter ontworpen, waarbij een logische clustering van functies, het toepassen van consequente veiligheidszoneringen en het beperken van lange loopafstanden als leidraad werden genomen.

Door het slimme stabiliteitsconcept worden dragende wanden zo veel mogelijk vermeden, wat voor een maximale planflexibiliteit zorgt voor een toekomstige werking: wanden kunnen te allen tijde verwijderd of toegevoegd worden. De onderhoudsvriendelijke materialen zijn stuk voor stuk duurzame, degelijke en robuuste materialen: een noodzaak in een politiegebouw.

Het gebouw is ten slotte ook volledig opgetrokken conform ‘META’s vijf pijlers van economisch bouwen’ en de principes van ‘META’s gelaagde duurzaamheid’. Zo maakt het gebouw gebruik van geothermie, die gekoppeld is aan betonkernactivering wat zorgt voor een duurzaam thermisch concept zonder aan comfort in te boeten.

Bron META

  • Deel dit artikel

Onze partners