Net Niet: Havenhuis Antwerpen (a2o architecten)
In de aanloop naar het architectencongres dat zal plaatsvinden op 2 juni 2016, willen NAV en Architectura.be projecten die het net niet haalden tijdens ontwerpwedstrijden, onder de aandacht brengen. a2o architecten bijt de spits af met zijn ontwerp van het Havenhuis in Antwerpen. Wil u ook zo’n ‘verloren ontwerp’ in de kijker plaatsen? Neem dan een kijkje op www.architectuurincompetitie.be.
De architectuuropdracht
- Locatie: Antwerpen
- Opdrachtgever: Gemeentelijk Havenbedrijf Antwerpen
- Jaar: 2008
- Type opdracht: Overheidsopdracht
Ontwerp
- Architectenkantoor: a2o-architecten
- Aantal bestede uren: 1200 uren
Waaruit bestond de opdracht?
a2o: “Samen met Atelier Kempe Thill (Rotterdam) waren we één van de vijf ontwerpteams die weerhouden waren voor de Open Oproep-procedure van de Vlaams Bouwmeester voor het ontwerp van het nieuwe Havenhuis voor het Gemeentelijk Havenbedrijf Antwerpen. De andere internationale ontwerpteams waren Vier Architectos (Spanje), Zaha Hadid Architects (Groot Brittannië), Xaveer de Geyter architects (België), RAPP+RAPP (Nederland).”
Wat zijn volgens u de sterke punten van uw ontwerp?
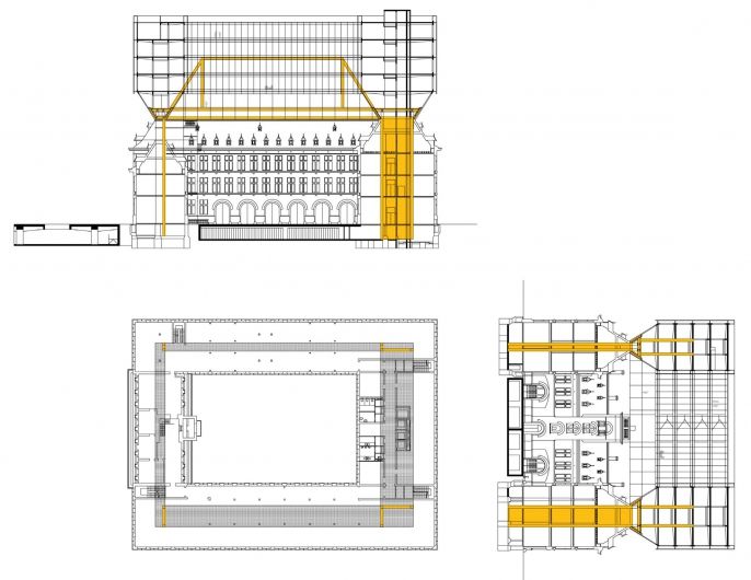
a2o: “Het nieuwe Havenhuis is één van de gebouwen die de stad Antwerpen en de haven een sterkere uitstraling moeten geven. Het zal een internationale rol spelen. Het heeft zijn wortels in de geschiedenis van de stad (het hansa-huis) en moet terzelfder tijd de toekomst aanwijzen. De uitbreiding die a2o-architecten/Atelier Kempe Thill wenste te realiseren aan het bestaande gebouw is enerzijds een architecturaal icoon voor de haven en anderzijds vormt ze een dialoog met de stad zonder dat het historisch geheel in de verdrukking komt. De oplossing van het ontwerpteam bouwt letterlijk voort op het bestaande. De oplossing spiegelt het bestaande en zet oud en nieuw op een heftige wijze in dialoog. Ze bevestigt en beklemtoont de voetprint en de inplanting. De nieuwbouw is vanuit één oogpunt eenvoudig, niet pronkerig en vanuit een ander oogpunt dan weer verwonderend, fascinerend…Vanuit het ene oogpunt ingetogen (verpakt als een geschenk) en vanuit het ander oogpunt straalt ze als een diamant.
Het bestaande gebouw wordt volledig gerestaureerd waardoor de eigenheid bewaard blijft: een gebouw met een binnenkoer. De scenografie van het gebouw blijft intact. Door het grondplan op alle niveaus eenduidig te houden, is de flexibiliteit van de interne organisatie bijzonder hoog, net als de logica van de circulatie.
De constructie van de nieuwe bovenbouw is van een bijzondere aard en wordt volledig geconstrueerd in een staalconstructie met lichte samengestelde vloeren. Een geïntegreerde brugconstructie leidt de krachten af naar de vier hoeken van het gebouw waar de lasten op merkwaardig weinig kolommen worden overgedragen naar de fundering.
Door te kiezen voor een stapeling wordt de voetprint van het gebouw niet vergroot en de bouw voordeliger in kostprijs en fasering. Voor de gevel wordt de technologie van de tweede huid toegepast. Het is een open gevel die als een zonwerende screen met wisselende mazen voor de achterliggende glasgevel hangt.
Het gebouw moet straks geliefd worden door de Antwerpenaar, hij moet het in zijn hart sluiten. Goede gebouwen spreken vanuit zichzelf, vanuit hun innerlijke kracht, ze hebben geen opsmuk nodig. Daarom volgende stelling: Dit gebouw moet niet de uitdrukking worden van hoe de buitenwereld architectuur percipieerde anno 2009, een soort demonstratie-opdracht. Dit gebouw moet de creatie zijn van een plek waar de haven zich de wereld toe‐eigent, met als voorwaarde: handel drijven.”
Welk bureau haalde de opdracht uiteindelijk binnen?
a2o: “Zaha Hadid Architects.”
Werd dit project uiteindelijk gerealiseerd?
a2o: “Ja.”
Evalueer het behaalde resultaat
a2o: “Het is uiteindelijk Zaha Hadid Architects die als laureaat werd gekozen, maar a2o-architecten / Atelier Kempe Thill maakte toch overduidelijk indruk op de jury met een ontwerp dat volledig binnen het bouwbudget paste.
Het ontwerpteam heeft getracht op meerdere niveaus deze maatschappelijke verankering te verwezenlijken. Het grote architecturale gebaar is daar uiteraard één van maar ook op het niveau van toegankelijkheid is er goed gestudeerd. Ook tracht het ontwerpteam een zeer duurzaam gebouw te ontwikkelen waar met respect voor een natuurlijk klimaat op vlak van licht‐ en luchtkwaliteit wordt omgegaan. Met het architecturaal concept wordt in de eerste plaats getracht een aangename werk- en verblijfssfeer te creëren voor de 440 eindgebruikers. In het bijzonder werd er aandacht gegeven aan de zuinigheid van het materiaalgebruik om nogmaals het duurzaamheidskarakter te onderstrepen.
Het ontwerpteam, wijzelf en Atelier Kempe Thill, kon zich dus niet vinden in de keuze van de jury.”
Geef uw ‘verloren ontwerp’ de aandacht die het verdient!
NAV wil in aanloop naar en tijdens het architectencongres in samenwerking met Architectura.be aandacht schenken aan de wedstrijdthematiek. Op www.architectuurincompetitie.be komen verschillende wedstrijdprojecten die het niet haalden, aan bod. U kan er zelf een dergelijk ‘verloren ontwerp’ uploaden. U vindt er eveneens een handvest over architectuur in competitie dat u kracht kan bijzetten met uw handtekening.
 
			 
                             
                             
                             
                             
                             
								