Nieuw hoofdkantoor SD Worx wordt schildwacht aan het water met open en veerkrachtige structuur (BULK architecten & Sergison Bates Architects)

  • image
  • image
  • image
  • image
  • image
  • image
  • image
  • image
  • image
  • image
  • image
  • image
  • image
  • image
  • image
  • image
  • image
  • image
  • image
  • image

In Antwerpen zijn de voorbereidingswerken gestart om het gloednieuwe hoofdkantoor van HR-dienstenverlener SD Worx op te trekken. De nieuwbouw komt op de plaats van het huidige SD Worx kantoorgebouw aan de Brouwersvliet 5. Het nieuwe kantoorgebouw zal een opvallend exoskelet hebben, naar de hand van Sergison Bates Architects en BULK architecten. Na de afbraakwerken, die voor de zomer volgend jaar klaar moeten zijn, volgt het archeologisch onderzoek. Het nieuwe gebouw moet tegen de zomer van 2028 klaar zijn voor ingebruikname.

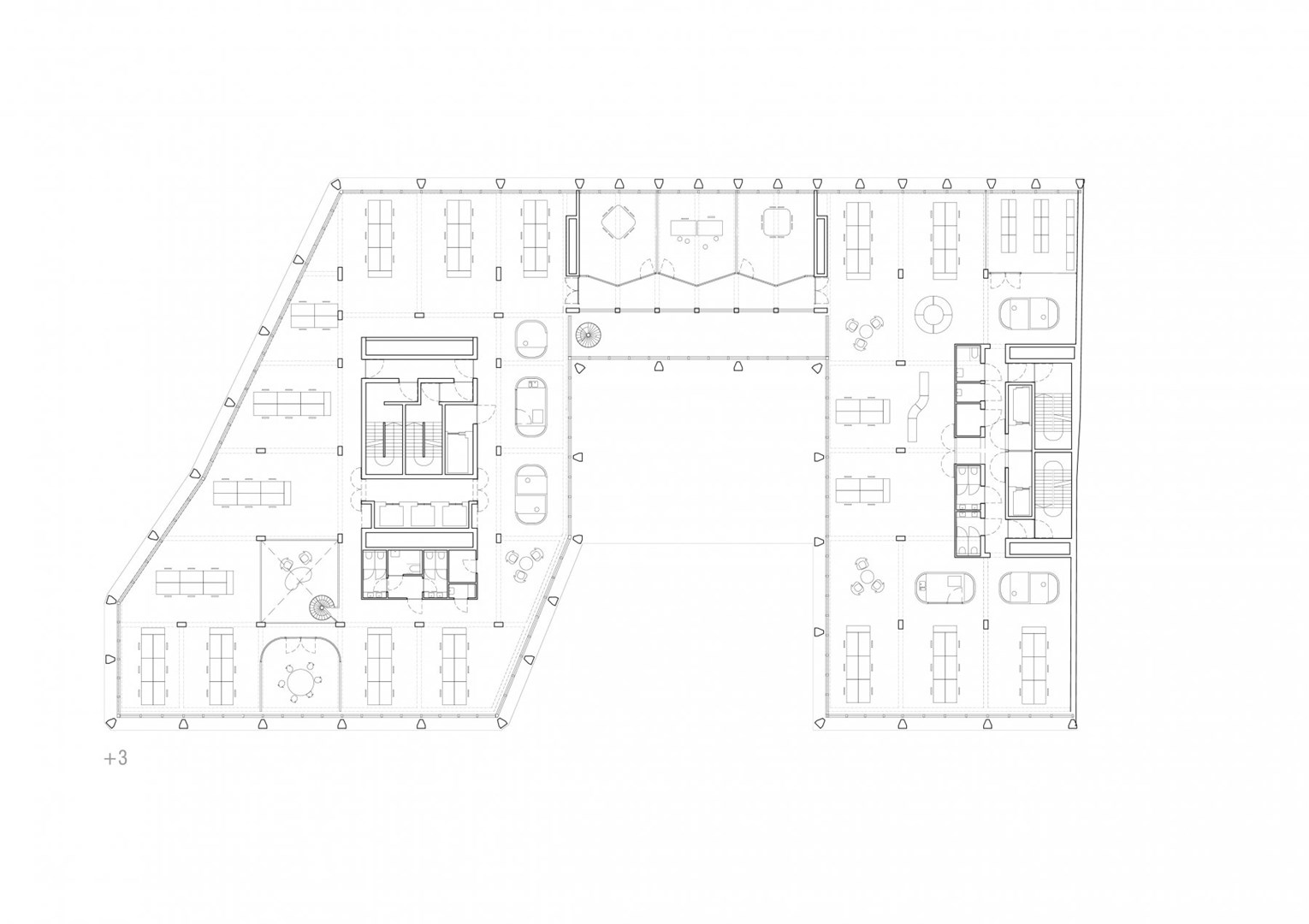
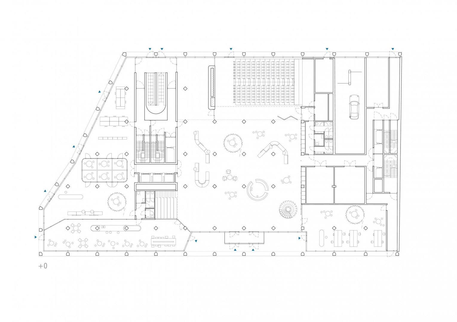
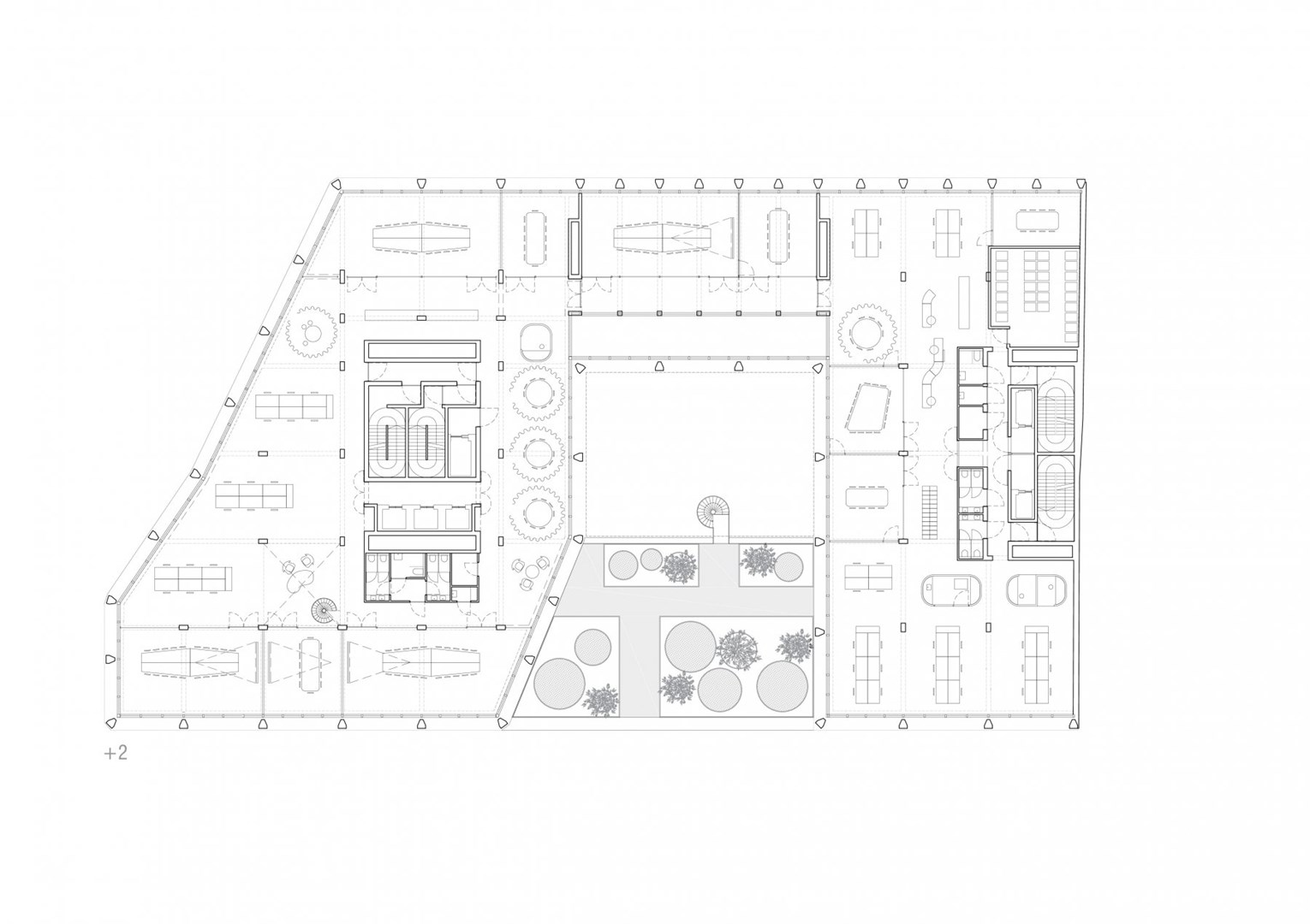
Naast kantoorruimte voor zo’n 650 medewerkers zal het nieuwe hoofdkantoor van SD Worx plaats bieden aan een co-working space, een cafetaria voor het personeel en een koffiebar/ broodjeszaak. Het wordt een echte ontmoetingsplaats voor collega’s, klanten en andere relaties. De inkomhall zal bovendien kunnen worden ingezet als expositieruimte. SD Worx voorziet een auditorium voor ruim honderd personen en verschillende grotere ruimtes voor opleidingen en vergaderingen. Ondergronds komt er een parkeergarage en een grote fietsenstalling, inclusief een speciale lift voor bakfietsen. Bovengronds zal het gebouw twaalf bouwlagen tellen met een aantal buitenterrassen, drie wintertuinen en de nodige aandacht voor groen.

BREEAM-Outstanding

Tijdens het intense voortraject via een bouwteamprincipe tussen WorxInvest, de architecten en aannemer Van Laere, was er een bijzondere aandacht voor duurzaamheid. Dat leidde tot het streefdoel om met dit gebouw een “BREEAM-Outstanding”-certificaat (Building Research Establishment Environmental Assessment Method) te behalen, de hoogst mogelijke onderscheiding.

Zo voorziet het ontwerp van het gebouw in een combinatie van beton en kruislaaghout (ook wel CLT: Cross Laminated Timber). Een deel van de demontage van materialen bij afbraak, krijgt ook een tweede leven binnen het nieuwe kantoor. De kantoorvloeren zijn zo ontworpen dat de ruimtes flexibel aangepast kunnen worden in functie van tijd en bestemming. De integratie van groene ruimtes, groene daken en waterbuffering zorgen dan weer voor het bevorderen van de biodiversiteit.

Regeneratie van het Eilandje

De combinatie van lokale verankering en internationale uitstraling vormt het fundament voor het nieuwe hoofdkantoor van SD Worx. Op de drempel tussen het middeleeuwse centrum van de stad en het grote havengebied in het noorden, past het project in de strategie voor de regeneratie van het Eilandje en neemt het een prominente plek in op de hoek van de Brouwersvliet en Tavernierkaai.

Het ontwerpteam benaderde de opdracht door te bemiddelen tussen de specificiteit van de plaats en de universele aspecten van architectuur. Door met deze twee dimensies om te gaan willen de architecten een project creëren dat beantwoordt aan een specifieke opdracht, maar relevant is buiten het beoogde gebruik, in staat te worden aangepast aan een onzekere toekomst en toch blijvend is als landmark, als uitdrukking van de stad waarvan het een deel uitmaakt.

Lange levensduur, losse pasvorm

Het voorgestelde gebouw wordt gedefinieerd als een 'schildwacht'. Het silhouet en de materialiteit geven het een sterke aanwezigheid aan de rand van stad en water. De verschijningsvorm - twee ‘schildwachten’ van verschillende hoogte geplaatst op een plint - is een elegante oplossing voor de behoefte om de lichtinval in het interieur en de centrale tuin te maximaliseren, terwijl continuïteit wordt gevonden met aangrenzende structuren.

Het gebouw verbindt en completeert de straatgevel en bakent de rand van het bouwblok langs de Schelde af. De afgeschuinde verticale elementen van de gevels geven een dynamische nadruk aan de vorm: terugliggend op niveau om de centrale groene binnenplaats te vormen, terwijl de plint een openbare agora, tentoonstellingsruimte, een auditorium en een café herbergt, met een actieve voorgevel aan alle zijden, in lijn met de straat en aangrenzende gebouwen. De plint is poreus en biedt routes door het bouwblok, als voortzetting van het publiek domein.

intelligente ruïne

Als reactie op de opdracht, waarin gevraagd werd om het project opties te bieden voor conversie naar woningen of horeca, hebben de ontwerpers een open, veelzijdige en veerkrachtige structuur ontwikkeld die naar behoefte kan uitzetten en inkrimpen.

Deze benadering van bouwen die verder kijkt dan de onmiddellijke eisen van de opdracht en rekening houdt met de levensvatbaarheid van een project op lange termijn in termen van zuinigheid, energie-efficiëntie, maatschappelijke relevantie en culturele continuïteit resulteert in wat bOb van Reeth omschrijft als 'de intelligente ruïne': gebouwd om lang mee te gaan, met een sterke fysieke aanwezigheid, doordrenkt met een herkenbaar stedelijk karakter en toch in staat om veranderingen in het programma te absorberen, opnieuw te configureren en te gebruiken zonder het geheel in gevaar te brengen.

Potentieel voor herbestemming

Met een evoluerend bedrijfsmodel in het achterhoofd ontwerpen BULK architecten en Sergison Bates Architects flexibele werkvloeren, die kunnen ingenomen worden door een open landschap van werkruimten of een cellulaire structuur van gesloten of semi-gesloten kantoren en die rekening te houden met wijziging in bezetting en veranderingen in programmatypologie en werksettings.

Op deze manier bouwen de architecten, door zich te focussen op de verschillende levenscycli van de meer permanente en kortstondige lagen van het gebouw, in het ontwerpproces zowel een blijvend expressief karakter als een breed potentieel voor herbestemming en herconfiguratie in de loop van de tijd.

Bron WorxInvest & BULK architecten

  • Deel dit artikel

Onze partners