Nieuw leven voor Kostuumatelier in Antwerpen volgens passief bouwconcept

AG Vespa en AG Kop organiseerden vier jaar geleden een wedstrijd om het oude kostuumatelier in de Van Luppenstraat een grondige facelift en een nieuw leven te schenken. PULS architecten won met een concept dat een kinderdagverblijf combineert met extra woningen. In het ontwerp zijn ook een ondergrondse parking en een extra ontsluiting voor ’t Groen Kwartier inbegrepen.

Passief concept

Samen met Cenergie maakte PULS architecten een kosten-batenanalyse op voor de toepassing van een passief concept – een upgrade van de E60-eis die de opdrachtgever oplegde. Na de analyse van de extra kosten en de terugverdientijd werd resoluut gekozen voor een passief concept. Dit houdt in dat er tijdens de winter en de zomer een goed binnenklimaat moet zijn, en dat met een minimum aan actieve technieken of high-techoplossingen. Daarom hebben de architecten binnen hun ontwerp gezorgd voor zo min mogelijk energieverliezen of koudebruggen.

Aangezien het oude kostuumatelier volledig aaneengesloten gebouwd werd, zal er van de bestaande structuren bitter weinig overblijven: de gebouwkoek liet in die staat geen passieve principes met een verbeterde thermische schil toe. Enkel de betonnen luifel met de sheddaken blijft behouden als open en overdekte rust- en speelplaats van het kinderdagverblijf.

 

Intra muros

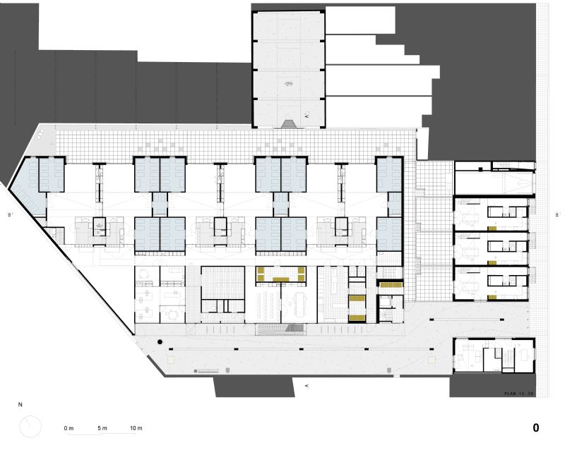
Langs de Van Luppenstraat zal de gevelwand vervolledigd worden. Het huidige ‘gat in de straat’ wordt ook dichtgebouwd met rijwoningen, met een kleine passage naar ’t Groen Kwartier. Het ontwerp laat de contouren van het perceel waar mogelijk vrij. Dit niet enkel om verdere ontwikkelingen van de randen toe te laten, maar ook om een duidelijke grens te definiëren. Het belangrijkste principe van het concept is dan ook het intra murosprincipe: de stenen constructies, gemene muren, en de aanpalende volumes zorgen voor een gesloten hof, een kamer als het ware. Hier, geborgen in de schoot van dit perceel en van de buurt, komt het kinderdagverblijf. De bewuste inpassing langs de nieuwe doorsteek zorgt voor een mix van wonen en publieke voorzieningen zodat er zowel overdag als ’s avonds letterlijk passage is.

Om een wirwar van kamers en woningen te vermijden, koos PULS voor een zeer heldere structuur: alle verschillende functies binnen het gebouw liggen eenvoudigweg tegenover elkaar. Zo wordt ook een volumecongestie vermeden, een clash van massa binnen de muren van het perceel.

 

Straatwand

De volumes van de rij- en hoekwoningen worden gemodelleerd om subtiele aansluitingen, dakterrassen, toegangstrappen en zichten en lichten mogelijk te maken. Gevelvlakken in verschillende soorten gevelsteen komen samen op de hoeken als een stiksel in vroegere kostuums. Er ontstaat een subtiel gearticuleerde straatwand die de doorsteek naar het binnengebied aanzet, begeleidt en controleert.

Alle woningen hebben een dubbele oriëntatie en zijn van het doorzon-principe dankzij een duplex leefgedeelte. Ruime en hoge raampartijen in de voorgevel leggen contact met de straat. Deze zijn gericht naar het zuid-oosten en geschikt voor zonnewinst in de winter.

 

Kinderdagverblijf Bobijn

De carte blanche die de architecten kregen dankzij de totale herstructurering van het gebouw, gaf hen de kans om het kinderdagverblijf uit te diepen en te optimaliseren naar werking en beleving. Ook voor dit deel van het gebouw werd een klinkklare planopbouw gekozen in functie van overzicht en controle.

Het kinderdagverblijf krijgt een gelaagde organisatie: ondersteunende functies langsheen de publieke passage, centraal de interne circulatie, langs de ingesloten tuinstrook alle leefgroepen. Al deze functies worden in de lengte gebouwd met dwarse doorzichten. Deze leveren dwarse, gefilterde contacten, binnen en buiten het gebouw. Op die manier is er bovendien een natuurlijke overgang van publiek naar privaat: een garantie op rust en geborgenheid voor de kinderen.

De zes leefgroepen worden naast elkaar geplaatst en telkens per twee gekoppeld. Links peuters, rechts baby’s. De leefgroepen geven uit op de doorlopende terrasstrook en zijn telkens voorzien van een kleine luifel zodat kinderen ook buiten kunnen slapen. Elke leefgroep is via een beglaasde deur toegankelijk vanuit een van de verbreedde zones in de centrale binnenstraat. De toegangen zijn per twee gekoppeld met tussenplaatsing van een meubelwerk (tablet en duokasten) waar de kinderen door hun ouders worden omgekleed voor ze in de leefgroep worden opgenomen. De gekoppelde leefgroepen zijn ook onderling verbonden. Leefgroepen kunnen daardoor in cascade worden gebruikt in functie van het aantal aanwezige kinderen.

 

Compact

Om energie- en transmisseverliezen door de buitenschil te beperken, werd er gekozen voor een compact concept dat een kubus benadert. In de middelste zone is er daarom ook geen plaats voor uitsneden of patio’s: het energieverlies is het niet waard. In plaats daarvan plooit het dak omhoog in de middenstraat. Op die manier valt er genoeg licht binnen en kan het licht ook verdeeld worden over de aanpalende ruimtes. Inspiratie voor dit idee kwam van de klassieke sheddaken aan het gebouw.

Het dak richt zich naar het zuidwesten voor een maximale zonnewinst. In de zomer zal een systeem het dak automatisch verduisteren om overhitting tegen te gaan. Wat verder nog overblijft van het dak is een ‘daklandschap’. Een gedeelte wordt een terras voor het personeel, en het andere dient als een tuintje.

 

Massiefbouw

De architecten van PULSE kozen bewust voor een massiefbouw. In combinatie met kleine en dus economische overspanning en repetitie op planniveau, geeft dit voor deze schaal van bouwprojecten nog steeds de beste garantie voor betaalbare prijzen.

De massiefbouw brengt niet enkel dit economisch voordeel met zich mee. De betonnen vloer- en dakplaten met kalkzandsteenwanden zorgen voor een grote thermische massa, en dat zorgt weer voor een meer stabiel binnenklimaat. De massa van de kalkzandsteenblokken heeft ten slotte ook nog akoestische voordelen.

 

Isolatie

Passief bouwen is isoleren. Energieverlies moet koste wat kost vermeden worden in elke zin van het woord. Om eer te doen aan dit principe heeft de buitenschil van het gebouw een hoge isolatiegraad en een maximale luchtdichtheid. Er werd gebruik gemaakt van resol en PIR-hardschuimplaten als spouwisolatie, PIR voor de dakplaten en ter plaatse gespoten PUR voor de vloerisolatie.  Spouwvoeten die tijdens de werffase in contact met vocht kunnen komen werden ook in PIR uitgevoerd. Voor de aanzetvoeten van dragende en niet-dragende wanden werd marmox toegepast.

Ook de aansluitingen, naden, kieren en zelfs leidingen moeten luchtdicht blijven. De aannemer koos hiervoor voor ‘blowerproof liquid’, een polymeerdispersie die ter plaatse kan worden gespoten of geborsteld. De aansluitingen van het schrijnwerk aan de wanden worden wel met de klassieke luchtdichtingstape verstevigd.

 

Passief schrijnwerk

Passief schrijnwerk bestaat uit thermisch onderbroken profielen, hier opgebouwd uit hout-PUR isolatiehout, voorzien van een aluminium afdekprofiel. Alle beglazing is driedubbel uitgevoerd en waar nodig voorzien van een  zonwerende coating.

Oost-, zuid- en westgevels zijn voorzien van geautomatiseerde zonnescreens om in de zomer oververhitting te vermijden. Waar mogelijk werd met een vaste luifel gewerkt, zoals bij de voorgevel van het kinderdagverblijf.

De energievraag vermindert nog verder door zonnewinsten te gebruiken en daglicht toe te laten. Ongeveer 23% van de gebouwschil is beglaasd. Tijdens de winter zorgen de zuid-west gerichte daklichten voor warmtewinst.

 

Minimale technische installaties

Efficiënte energie-installaties zorgen voor de resterende energiebehoeften: een balansventilatiesysteem, een condenserende gasketel, en armaturen zijn de passieve kers op de taart. Een korte opsomming van de delen:

De balansventilatie bestaat uit mechanische ventilatie die verse lucht aanzuigt en buitenlucht recupereert met een warmtewisselaar. De daklichten functioneren echter ook als nachtkoeling. In de zomer gaan ramen ’s nachts automatisch open wanneer de buitenlucht koeler is dan de binnenlucht. Gelijktijdig worden de dakramen geopend waardoor een luchtstroom doorheen het gebouw ontstaat. Warme lucht zal bovenaan ontsnappen en koelere buitenlucht aanzuigen. Hierdoor wordt de massa (beton en kalkzandsteen) van het gebouw gekoeld.

Condenserende gasketels staan in voor de verwarming van het kinderdagverblijf. De leefgroepen en de polyvalente ruimte van het kinderdagverblijf worden ook uitgerust met vloerverwarming op lage temperatuur.

Om toch per ruimte een snelle en eenvoudige temperatuurregeling mogelijk te maken worden bijkomende decentrale verwarmingsbatterijen in het ventilatiesysteem van de leefgroepen voorzien. In de rustruimtes, kantoren, eetruimtes en personeelsruimtes komen radiatoren op lage temperatuur.

Het sanitair warm water voor de badruimtes en leefgroepen wordt decentraal opgewekt met doorstromers op gas. Douches en keukenpersoneel beschikken over warm water via een boiler gekoppeld aan de gasketel. Dankzij de extra plaats op het dak is het later ook nog mogelijk om een zonneboiler te installeren voor extra energiewinsten.

Lage impact

Uiteraard wordt ook zuinig omgesprongen met elektriciteit. Enkel de daklichten verlichten al genoeg. De lichtarmaturen werden bijkomend voorzien van daglichtdimming in alle ruimtes met daglicht. In kleedruimtes, sanitair en technische ruimtes is aanwezigheidssturing voorzien.

Regenwater van de daklichten wordt gerecupereerd voor toiletspoeling en wasmachines. De rest van het dakoppervlak bestaat uit groendaken gekoppeld aan bufferputten.

Al de opgenoemde principes verenigen kwaliteit van leven en werken met een lage impact op het milieu.  Bovendien dammen ze de totaalkost van het project op termijn in.

  • Deel dit artikel

Onze partners