Nieuwe gemeentelijke basisschool Lievegem wordt groene, duurzame, en toegankelijke leeromgeving (Corbey Ringoir Architects)

  • image
  • image
  • image
  • image
  • image
  • image
  • image
  • image
  • image
  • image
  • image
  • image
  • image
  • image

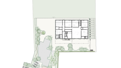
In de Oost-Vlaamse gemeente Lievegem starten binnenkort de werken aan de gemeentelijke basisschool Eeksken. Naar het ontwerp van Corbey Ringoir Architects zal aannemersbedrijf Vandenbussche in een eerste fase het nieuwe schoolgebouw met 12 klassen realiseren, terwijl de school in gebruik blijft. In een tweede fase, vanaf najaar 2024, zal vervolgens de afbraak van de huidige schoolgebouw starten én wordt er een nieuwe sporthal, refter en administratief gebouw gerealiseerd. Ook de verbouwing van de buitenschoolse kinderopvang en de omgevingsaanleg zit in de opdracht vervat.

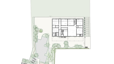
De huidige ‘Universiteit van ’t Eeksken’, zoals de gemeentelijke basisschool van de Lievegemse deelgemeente Lovendegem wordt genoemd, ondergaat een complete transformatie. De school verlaat de oude blinde muur aan de straatzijde en maakt optimaal gebruik van de beschikbare ruimte aan de achterkant. Het resultaat zal een ecologisch gebouw zijn dat bijna energieneutraal is, zonder overbodige franje, maar dat volledig voldoet aan de hedendaagse onderwijsnormen.

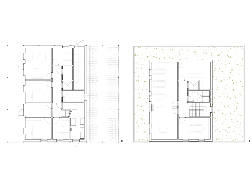
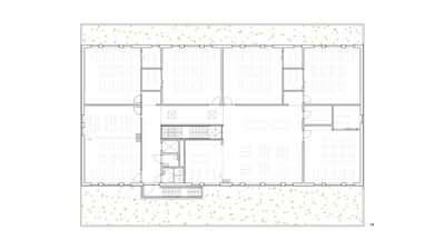
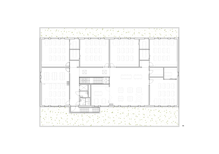
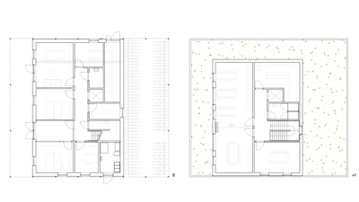
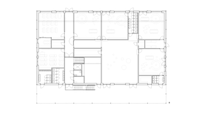
Waar voorheen een hoge bakstenen muur aan de straatzijde stond, worden nu twee nieuwe, lichte gebouwen geplaatst: een administratief gedeelte aan de rechterkant en een refter en turnzaal aan de linkerkant, die ook beschikbaar zullen zijn voor de lokale gemeenschap en verenigingen. Het centrale deel van de school, dat twee verdiepingen hoog zal zijn, komt achteraan bij het speelveld.

 

Open leercentrum

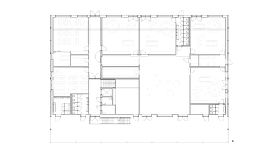
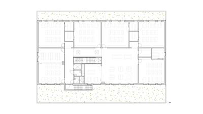
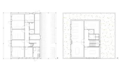
Het gelijkvloers zal plaats bieden aan kleuters en het eerste leerjaar, wat de overgang van de kleuterschool naar de basisschool soepeler zal maken. De vijf andere leerjaren zullen daarboven worden gehuisvest. De traditionele klaslokalen bevatten kleine glazen miniklasjes waar kinderen na instructies zelfstandig kunnen werken. Alle klaslokalen zullen geconcentreerd zijn rond een open leercentrum.

De plannen voor de nieuwe gemeentelijke basisschool in Lovendegem zijn volledig uitgewerkt en klaar voor uitvoering. De nieuwe school zal een groene, duurzame, en toegankelijke omgeving bieden waar de zelfstandigheid van kinderen wordt gestimuleerd, en de lokale gemeenschap welkom is. De bouwwerkzaamheden zullen van start gaan halverwege oktober 2023. Het doel is om alles twee jaar later te voltooien.

Bron Vandenbussche & Het Nieuwsblad

  • Deel dit artikel

Onze partners