Nieuwe vleugel Muziekkapel helemaal klaar

Eind vorige maand, in januari 2015 en zo’n 75 jaar na de oprichting van de Muziekkapel, is de nieuwe Launoit-vleugel van de kapel feestelijk geopend. Voor de infrastructuuruitbreiding van de Muziekkapel werd gekozen voor studie- en architectenbureaus Synergy International en L’Escaut, gespecialiseerd in culturele infrastructuren en gebouwen met een hoge milieuwaarde.

Zij kregen de hulp van Capri Acoustique dat geavanceerd akoestisch onderzoek uitvoerde, JNC zorgde voor de heraanleg en verfraaiing van het park en tot slot waren ook de bijdragen van aannemersbedrijf AMART en de interieurinrichting van MBO (Michèle Buchter) onontbeerlijk.

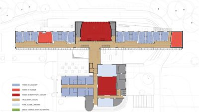
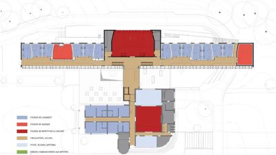
Dankzij deze aanpassingen en uitbreidingen kunnen een groter aantal jonge musici en hun docenten beschikken over twintig bijkomende woonstudio’s, eigen aan de Muziekkapel, drie nieuwe concert-, repetitie- en opnamezalen en nieuwe leefruimtes waarin de artiesten zich ten volle kunnen ontplooien.

Een lange gang leidt naar een dubbele glazen wand aan de zuidkant en aan de noordkant de duplexwoonstudio’s, de Grote Studio (Studio Haas-Teichen) voor voorstellingen en nog twee repetitiestudio’s.


De studio’s

De Grote Studio vormt een unieke plek op zich. De 250 toeschouwers zullen via een breed groot raam, dat uitkijkt op het domein van Argenteuil, genieten van de virtuozen terwijl ze uitkijken op een deel van het Zoniënwoud.

Beide repetitiestudio’s: Studio 2 (Rossana Del Marco Pinferetti) en Studio 3 (Paule Van Thillo) hebben specifieke ruimtelijke en akoestische kenmerken en verhouden zich verschillend ten opzichte van de omliggende natuur. Studio 2 is via een open groot raam op twee verdiepingen naar het woud gericht, terwijl Studio 3 de inspiratie van de natuur langs boven binnenkrijgt.

Elke woonstudio is tevens bijzonder. Gaat het nu om een duplex op de benedenverdieping, of om één niveau op de tuinverdieping, elke studio biedt verwante afmetingen, maar toch telkens iets afwijkend, door hun verhoudingen en de breukpunten in de hoeken van de wanden en het plafond om het geluid beter te leiden, zonder hinder van echo-effecten.

De foyer op de tuinverdieping ligt in de verlenging van de publieke ruimtes op de benedenverdieping en biedt licht en gezellige plek voor zowel publieke recepties als privébijeenkomsten.

De ‘Artists village’ (Philippe & Jeannot Saverys Music Lounge) biedt de inwonenden een intieme stek waarvan ze kunnen genieten van de tijd die ze hier zullen doorbrengen.

Ten slotte zijn er een ruime professionele keuken en alle noodzakelijke dienstruimtes voor een dergelijke cultureel apparaat voorzien, vlot aanpasbaar aan de evenementen.


Een milieu-uitdaging

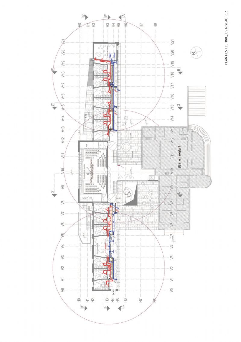
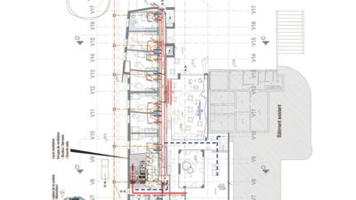
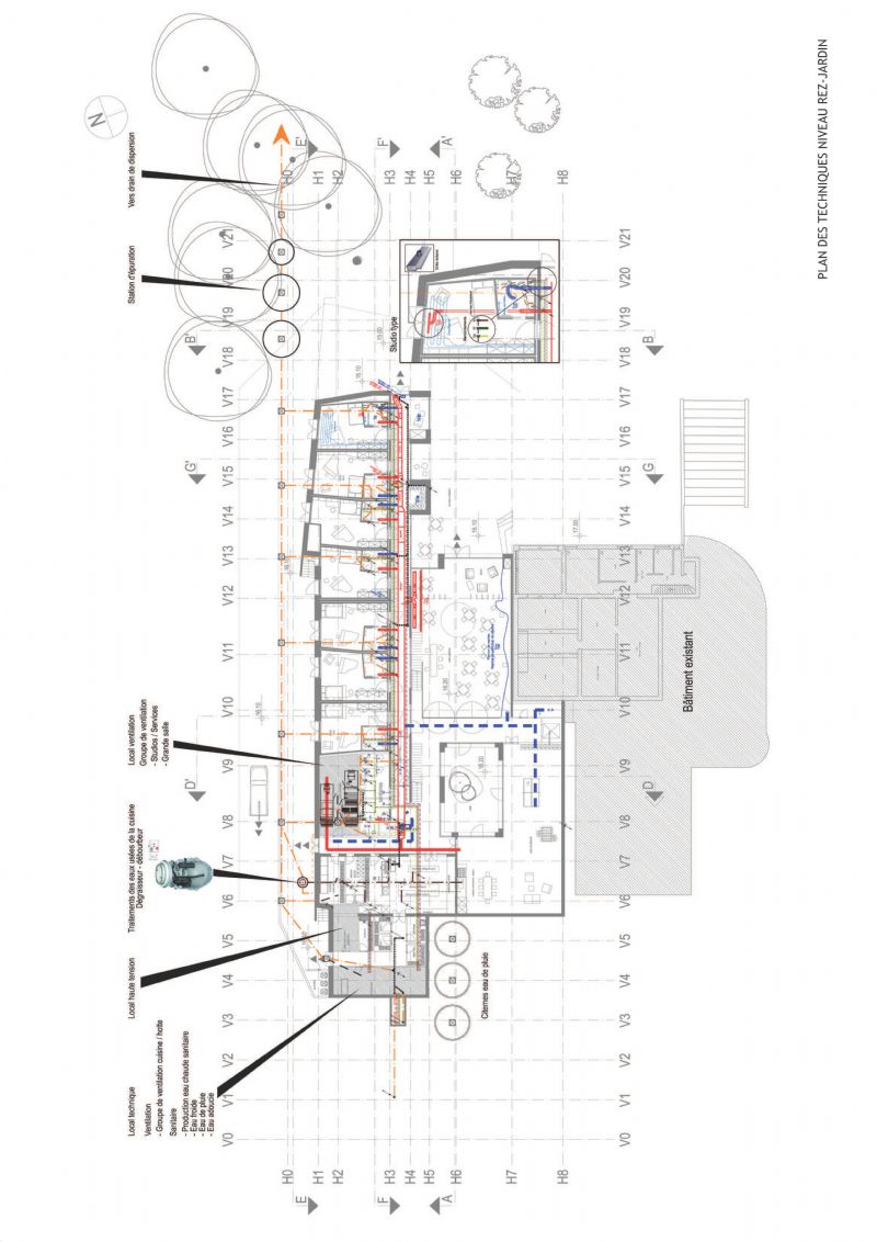
De keuze van de materialen en de technieken voor de vleugel  werden grondig onderzocht, voor een optimale milieubalans op lange termijn, zowel op het vlak van de bouw (grijze energie, recycleerbaarheid, koolstofbalans, duurzaamheid), als op het vlak van het energieverbruik (CO2, SO2, water, …)

Dankzij het vernieuwende concept zal het gebouw het label ‘lage energie’ kunnen behalen en kan het nagenoeg zelfstandig functioneren, zowel wat de voorraad als de uitstoot betreft.

Hierbij werd rekening gehouden met de optimalisatie van elke wand in functie van zijn oriëntatie en bestemming, met berekening van het type en de breedte van elk isolatiemateriaal, integratie van een gevel met dubbele wand, de optimalisatie van de luchtdichtheid van het gebouw en studie van de verbindingsknopen ter beperking van de warmtebruggen, de afvoer van regenwater voor de toiletten en het onderhoud, de installatie van een zelfstandig waterzuiveringsstation met septische putten voor de verwerking van al het afvalwater.

Tevens werd een gecontroleerd mechanisch ventilatiesysteem met energieherwinning (80 %) geïnstalleerd en gekoppeld aan een gemechaniseerde bypass voor freecooling tijdens de zomer.  Dit systeem krijgt de versterking van thermische zonnepanelen, voor de productie van warm water voor sanitair gebruik.

Tot slot werd er overal gebruik gemaakt van ledverlichting om het verbruik te beperken en de levensduur van de uitrusting te verhogen. 

  • Deel dit artikel

Onze partners