noAarchitecten over de uitbreiding van het Plantin-Moretus museum

  • image
  • image
  • image
  • image

In 1576 verhuisde de Officina Plantiniana van drukkersfamilie Plantin-Moretus naar de Vrijdagmarkt. Driehonderd jaar later verkocht de familie het huis aan de stad Antwerpen die het in 1877 als museum voor het publiek openstelde. In 2005 werd het hele huis met inboedel en patrimonium als enige museum in de wereld als UNESCO Werelderfgoed erkend. Het jaar 2016 wordt opnieuw een belangrijke mijlpaal in de geschiedenis van Museum Plantin-Moretus. Precies 440 jaar nadat de Officina Plantiniana verhuisde, en 140 jaar nadat het huis in bezit van de stad Antwerpen kwam, volgt een uitbreiding met depot en leeszaal én een nieuwe museumopstelling.

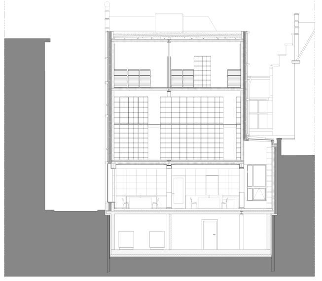
Een nieuwbouw in de Heilige Geeststraat moet ruimte bieden aan een depot en leeszaal. De depotruimtes zijn zo groot mogelijk en optimaal ingericht en voldoen aan alle vereisten op het gebied van klimaatbeheersing, beveiliging en gebruikers-en beheerscomfort. In de leeszaal kan het gespecialiseerde publiek collectiestukken uit de depots en bibliotheken van het museum raadplegen.

Daarnaast is het de ambitie van de opdrachtgever om ook het grote publiek kennis te laten maken met het werelderfgoed en de zichtbaarheid in het stadsbeeld te vergroten. In 2008 werd een architectuurwedstrijd uitgeschreven waarbij noAarchitecten als winnaar uit de bus kwam. De ontwerpers maakten een hedendaagse creatie met respect voor het historisch monument.

Philippe Viérin en Pieter Verreycken van noAarchitecten vertellen over de opdracht en hun ontwerp. De architecten werken samen met beeldend kunstenaar Benoît van Innis om de gevel vorm te geven.


Wat was de grootste uitdaging van de opdracht?
“Het was de wens van de opdrachtgever om een nieuwbouw te realiseren die een gezicht geeft aan museum zodat ook de toevallige passant kennis kan maken met het werelderfgoed. Voor ons bestond de grootste uitdaging erin om een gevel te maken die tegelijkertijd gesloten is, maar toch communiceert naar buiten toe. Het museum heeft enkel een gezicht aan de Vrijdagmarkt en de kant van de Heilige Geeststraat heeft een erg gesloten karakter.De historische huizen in de Heilige Geeststraat maken deel uit van het museum, maar omdat ze niet toegankelijk zijn vanaf de straat, worden die niet beschouwd als volwaardige kant van het museum.”

Na het verkennen van een aantal scenario’s, koos noAarchitecten uiteindelijk voor een ontwerp waarbij de leeszaal zich op het gelijkvloers bevindt. Op die manier wordt een nieuwe directe toegang tot het museum gecreëerd en is er een uitgesproken visuele interactie met de straat.

“Je kan binnenkijken in de leeszaal, maar op zo’n manier dat het niet vervelend wordt voor de mensen die er aan het studeren zijn. Om dit te bereiken hebben we gekozen voor een soort voile of scherm tussen binnen en buiten. Tijdens de wedstrijd was dat een glazen gevel die beschilderd zou worden door Benoît van Innis. Nadien bleek dat een glazen gevel niet haalbaar was om verschillende technische redenen. Het zou ook een erg monumentaal gebaar geweest zijn dat beter tot zijn recht zou komen op een plein in plaats van in een smalle straat.

Het ontwerp is dan geëvolueerd naar een houten structuur. De structuur is een soort vertaling van de gevels in Brabantse stijl in de Heilige Geeststraat. In de 16de eeuw maakte men de overstap van houtbouw naar steenbouw, maar de principes en opbouw van houten vakwerkarchitectuur werden overgenomen en letterlijk vertaald naar natuursteen en baksteen.

We hebben die structuur van monelen en penanten opnieuw omgezet in hout en de invullingen weggelaten, waardoor er vakken ontstaan die doen denken aan de letterbakken waarin drukletters bewaard werden. Op  die manier is er een dubbele connectie met de functie van het gebouw. De gevel spreekt een eigen taal en is geïntegreerd in het straatbeeld. Het concept voor de gevel is gaandeweg veranderd. Op een bepaald moment was er een compositie die veel dynamischer was, maar doordat je de gevel heel weinig en face ziet, maar steeds vanuit een schuin perspectief vanop kleine afstand, hebben we de compositie vereenvoudigd zodat de gevel meer aansluit bij de huizenrij.

Als je nu vanuit het scherpe perspectief van de smalle straat kijkt, dan zie je dat de gevels met elkaar beginnen te communiceren, de monelen van de historische neorenaissance huizenrij krijgen een vervolg in de hedendaagse variant. De intense opeenvolging van lijnen vinden we terug in een geconcentreerde vorm. Ook de kleurstelling is in harmonie met de bestaande gevels. In hout konden we het gevoel geven van een kostbare juwelenkist.

We zijn ook van plan het hout te behandelen met een goudkleurig vernis om het nog precieuzer te maken. Er zijn twee houtsoorten: voor de voegen gebruiken we iroko, een massieve houtsoort en de platen zijn vervaardigd uit multiplex die gebruikt wordt voor boten. Er bestaan verschillende maten en diktes waardoor het geheel volume krijgt net zoals de andere gevels in de straat.”


Op welke manier is nieuwbouw te combineren met een historisch monument? Waren er belangrijke eisen  en voorwaarden waar jullie rekening mee moesten houden?

“Onroerend Erfgoed was vooral geïnteresseerd in de restauratie van de bestaande panden. De huizen  in Heilige Geeststraat nr. 8 en nr. 10 behoren tot de perimeter van het project en zullen gerestaureerd worden. Het huis op nr. 8 heeft nog elementen die teruggaan tot de 16de eeuw, maar de gevel is in de loop van de 20ste eeuw herbezet met cementering. Omdat we die er niet kunnen afhalen zonder de oorspronkelijke stenen te beschadigen, laten we de bekleding zo en gaan we niet terug naar de oorspronkelijke situatie. Het pand zal dienst doen als inkom van de leeszaal en de gevel wordt in zijn waarde hersteld.

De andere gebouwen in de straat zijn waarschijnlijk gebouwd op het einde van de 19de eeuw voor één van de twee wereldtentoonstellingen. We kozen ervoor om het ontwerp van de nieuwbouw te enten op die 19de-eeuwse huizen in Brabantse stijl. De keuze voor een praktische ligging van de lift en de trap aan de achterzijde van woning nr. 8 vereist een verbouwing van het pand die nauwgezet wordt gevolgd door  Onroerend Erfgoed. Via zaal 27 in het museum wordt op de eerste verdieping een interne verbinding gerealiseerd tussen het museum en de nieuwbouw.”
 

Kan je iets meer zeggen over de vormgeving van het interieur van de leeszaal en de depots?

“In de vormgeving van het interieur gaan we op zoek naar bepaalde kleurstellingen. De deuren en de trap zijn in donkere beits, dat refereert naar de donker gekleurde deuren in het museum. Qua materiaal werken we met leder en terrazzo (ter plaatse gegoten beton die gepolierd wordt in twee kleuren). Het leder zorgt  mee voor een akoestisch comfort in de ruimte. Het plafond willen we een felle kleur geven. De wanden zijn bekleed met fineer en goudkleurige accenten. Verder zal het interieur een rijkelijk aandoende en  gedetailleerde ruimte zijn die rust en concentratie moet uitstralen.

Een moderne handbibliotheek vult de achterwand van de zaal. Hier is de ruimte hoger en kunnen de boeken via een verplaatsbare trap op twee niveaus worden geraadpleegd. We hebben verder geledingen in de ruimte gebracht met kolommen en balken. De studietafels staan gegroepeerd in verschillende ‘kamers’ met toch voldoende overzicht vanaf de balie. We hebben gekozen voor een rationele opbouw waarbij de depots zijn losgekoppeld van de leeszaal. De kolommen in de leeszaal benadrukken het gewicht van de depots erboven die ze ondersteunen. De archieven zijn heel sec en functioneel opgebouwd.

De meest kwetsbare collecties krijgen een plaats in het nieuwe depot: het Plantin-Moretusarchief dat de volledige boekhouding en correspondentie van de drukkerij, uitgeverij, boekhandel en het huishouden van de Officina Plantiniana en haar bewoners omvat, de handschriftencollectie en de oude en moderne tekeningen en de collectie grafie van voor 1800. Voor een optimale bewaring van de stukken, wordt er gewerkt met rollende kasten die in rust een basisafstand hebben van elkaar zodat er voldoende ventilatie is. Verder zijn er technisch behoorlijk wat eisen naar brandveiligheid toe. Zo zal er niet geblust worden met water. Indien er een brand uitbreekt, zal de zuurstofconcentratie naar beneden gaan, zodat het vuur zich niet verder kan ontwikkelen en de brand vanzelf wordt gedoofd.”

Overgenomen uit de nieuwsbrief van de Antwerpse Stadsbouwmeester.

Onze partners