OFFICEU transformeert oude paardenstallen tot wijkgezondheidscentrum met flexibele indeling voor breed spectrum aan zorg

  • image
  • image
  • image
  • image
  • image
  • image
  • image
  • image
  • image
  • image
  • image
  • image
  • image
  • image
  • image
  • image
  • image
  • image
  • image
  • image

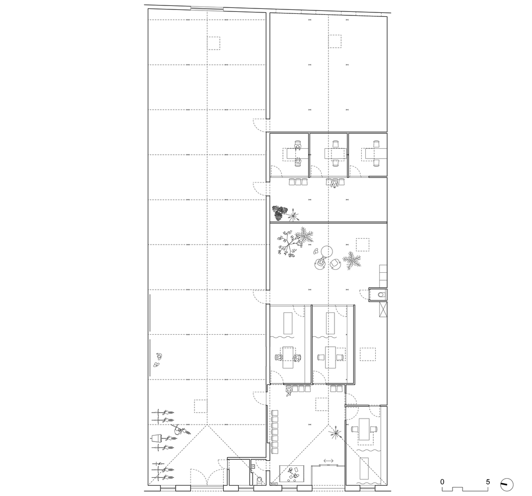
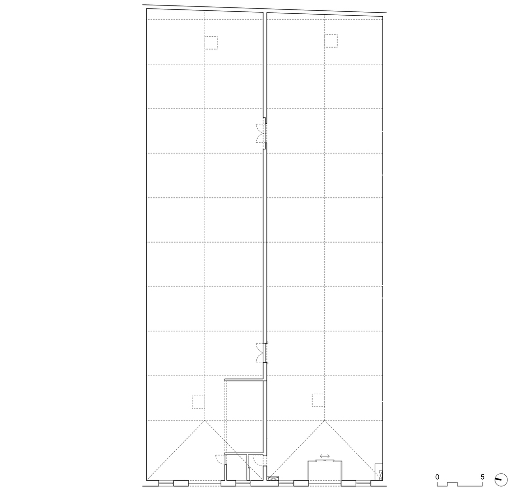
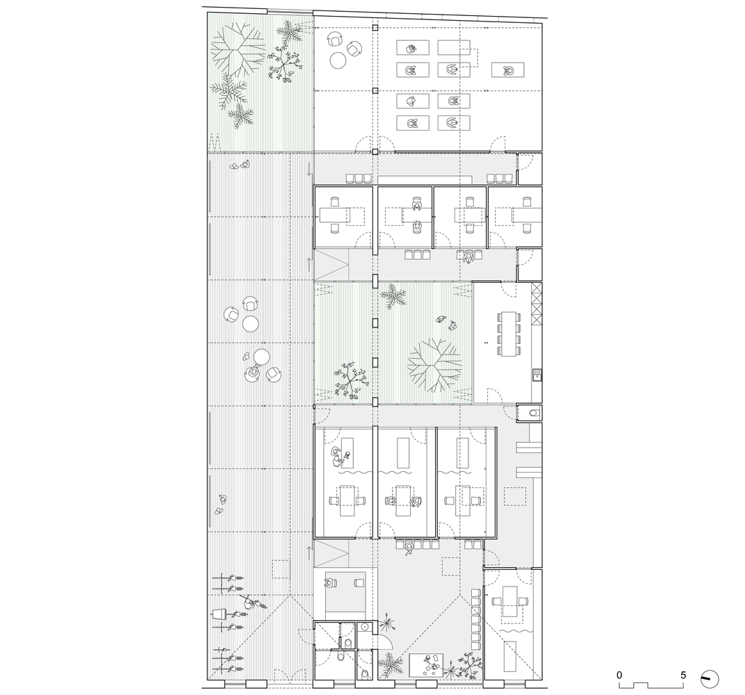
De oude paardenstallen van de voormalige zuivelfabriek Hollandia in Laken - twee identieke langwerpige bouwvolumes met een karakteristieke dakstructuur van opeenvolgende houten spanten - worden door het Brusselse ontwerpbureau OFFICEU architects for urbanity getransformeerd tot een wijkgezondheidscentrum met huisartsenpraktijk, zone voor paramedische praktijken, polyvalente ruimte en multifunctionele circulatieruimte. Het centrum wil een belangrijke rol spelen in de sociale cohesie van de buurt door flexibele ruimtes aan te bieden die beantwoorden aan tal van medische noden en wensen. De architecten speelden hierop in door de verschillende functies binnen het project elk te voorzien van een eigen ‘pocket’, als lichte invulling van het bestaande industriële erfgoed.

De gemeente Laken bleef lange tijd een landelijke en groene wijk aan de rand van Brussel. Naast het Koninklijk Domein bestond de bebouwde omgeving voornamelijk uit boerderijen van de lokale bevolking en buitenhuizen van de Brusselse bourgeoisie. Dankzij de ontwikkeling van een belangrijke spoor- en haveninfrastructuur ontstond er in de tweede helft van de 19e eeuw een opmerkelijke concentratie van bedrijven.

Vandaag blijft van deze industriële boom een landschap over vol contrasten. Sociale woonwijken en volksbuurten worden afgewisseld met zware of lichte industrie, brede lanen met herenhuizen en kunstwerken die deel uitmaken van de grote verfraaiingswerken uit de tijd van Koning Leopold II, toen Laken de koninklijke residentie was geworden.

 

Karakteristieke dakstructuur

Ooit gebouwd als paardenstallen voor de zuivelfabriek 'Hollandia', is het gebouw dat door OFFICEU wordt herbestemd tot wijkgezondheidscentrum een stille getuige van zowel het landelijke als het industriële verleden van Laken, een dorp dat al lang is opgeslokt door de groeiende stad Brussel. In dit relikwie, niet meer dan een 'ruwbouw' met een karakteristieke dakstructuur van opeenvolgende houten spanten, wordt het programma toegevoegd als lichte en flexibele 'pockets' met een schaal die is afgestemd op de functies.

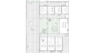
De ingrepen van de ontwerpers zijn grotendeels omkeerbaar. De structurele logica stuurt een leesbare organisatie. Een binnenstraat structureert het geheel, waar het oorspronkelijke ruwe karakter - de bakstenen vloer, de ruwe wandafwerking, de nummers van de paardenboxen etc. - bewaard blijft. Deze elementen vormen samen het tastbare geheugen van de plek en doen ons bewust of onbewust nadenken over het rijke verleden, als onderdeel van een continu veranderingsproces.

 

Aaneenschakeling van ruimtes

Het wijkgezondheidscentrum wil zich integreren in de buurt, inspelend op de behoeften en wensen van de gemeenschap. Een veelheid aan veelzijdige ruimtes wordt beschikbaar gesteld voor initiatieven die tot doel hebben verschillende leeftijden en bevolkingsgroepen samen te brengen, evenals organisaties die zich specifiek inzetten voor kwetsbare mensen, armoedebestrijding en sociale integratie.

De medische praktijk wil een gemeenschap creëren rond gezondheidszorg, en erkent het belang van een zorgzame omgeving voor welzijn. Een enfilade van ruimtes, allemaal verbonden met de binnenstraat - een beschutte herinterpretatie van de ‘openbare weg’ - vormt een flexibel kader voor diverse programma's gebaseerd op menselijke interactie.

 

Breed spectrum aan gezondheidszorg

De functionele 'pockets' hebben elk hun eigen toegang(en) via de binnenstraat, die zich over de hele lengte van de ruimte uitstrekt en waar de majestueuze dakstructuur en volumetrie van de oude paardenstallen volledig tot uiting blijven komen. De clusters zijn onderling verbonden, zodat het project als één geheel functioneert en flexibel gebruik mogelijk maakt.

Lichamelijke en geestelijke gezondheid zijn geen statisch gegeven, waarbij men plotseling van de ene toestand naar de andere overgaat. Naast de meer traditionele medische diensten wordt daarom speciale aandacht besteed aan een zeer breed spectrum van lichamelijke en geestelijke gezondheidszorg, variërend van gezondheidsbevordering en preventie tot reactivering en nazorg.

 

Natuurlijke materialen en zachte kleuren

Elk van de ruimtes, van de zeer besloten dokterspraktijk tot de semipublieke binnenstraat, creëert een beschermende omgeving die mensen op verschillende momenten in hun gezondheidsspectrum ondersteunt. Er wordt veel aandacht besteed aan het juiste evenwicht tussen voldoende privacy en menselijke interactie. Bufferzones zorgen voor een geleidelijke overgang tussen openbare en privéruimten, en gefilterde uitzichten en fysieke verbindingen maken contact op elk moment mogelijk.

Het gebouw speelt ook een belangrijke rol in het welzijn van zowel de patiënt als het medisch personeel. Natuurlijke materialen en een zacht kleurenpalet dragen hier sterk aan bij, samen met voldoende daglicht en contact met (groene) buitenruimtes. Op twee plaatsen wordt de dakbedekking verwijderd, waardoor patio's binnen de gebouwschil ontstaan die licht, lucht en groen in het gebouw brengen, zoals het 'atrium' en de 'hortus' in een Romeinse domus.

Bron OFFICEU architects for urbanity

  • Deel dit artikel

Onze partners