Ornimat gevelplaten van SVK sieren uitbreiding Leuvense villa
In een rustige, groene wijk aan de rand van Leuven is een villa uit de jaren '60 aan een tweede leven begonnen. Flow Architecten uit Heist-op-den-Berg voorzag de woning van een uitbreiding waar licht en ruimte voorop staan. Het nieuwe volume is volledig bekleed met Ornimat vezelcement gevelplaten van SVK. Het resultaat is een comfortabele woning, die door het spel van twee contrasterende volumes een hedendaagse look heeft gekregen.
In een rustige, groene wijk aan de rand van Leuven is een villa uit de jaren '60 aan een tweede leven begonnen. Flow Architecten uit Heist-op-den-Berg voorzag de woning van een uitbreiding waar licht en ruimte voorop staan. Het nieuwe volume is volledig bekleed met Ornimat vezelcement gevelplaten van SVK. Het resultaat is een comfortabele woning, die door het spel van twee contrasterende volumes een hedendaagse look heeft gekregen.

De villa na de werken en in haar oude toestand
Licht, ruimte en groen
De eigenaars wilden graag hun woning opknappen en uitbreiden met extra leef- en slaapruimte en een thuiskantoor. Hierbij stonden veel licht en een ruimtelijk gevoel voorop. Ook wilden ze graag een maximaal uitzicht op de tuin creëren.

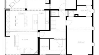
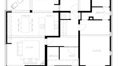
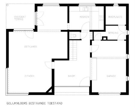
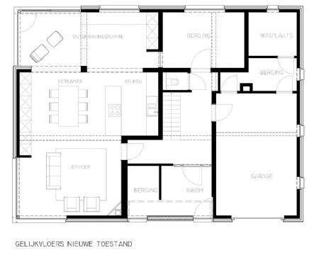
Plannen gelijkvloers: links de bestaande en rechts de nieuwe toestand
Van de bestaande woning werd al het buitenschrijnwerk vervangen. De gevels werden aan de buitenzijde geïsoleerd en afgewerkt met witte pleister en ook het dak werd geïsoleerd en voorzien van een nieuwe dakbedekking. Verder werd er aan het bestaande volume zo weinig mogelijk veranderd. Enkel het overdekte terras werd mee geïntegreerd in de leefruimte op het gelijkvloers.

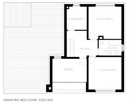
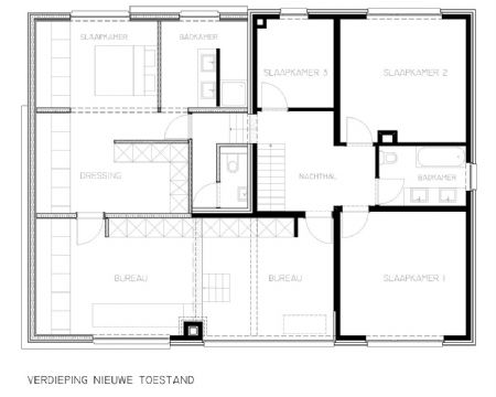
Plannen verdieping: links de bestaande en rechts de nieuwe toestand
Op de verdieping werd een nieuw volume in het bestaande bouwvolume ingepast. De uitbreiding omvat een extra slaapkamer met eigen badkamer, een dressing en het thuiskantoor. Zowel aan de voor- als aan de achterzijde werd een groot raam voorzien, zodat ook vanuit het kantoor het contact met de tuin bewaard blijft.
Spel van oud en nieuw
Onder meer omwille van het gewicht werd gekozen om het nieuwe volume uit te voeren in houtskeletbouw. Deze is geïsoleerd met 14cm glaswol tussen de structuur. Voor de gevelbekleding werd gekozen voor Ornimat gevelplaten van SVK, geplaatst in wildverband en gecoat in RAL 7021, net als het nieuwe aluminium buitenschrijnwerk. Dankzij het contrast in kleur en textuur ontstaat een mooi volumespel tussen oud en nieuw. Het witte pleisterwerk oogt zeer licht, terwijl de gevelplaten een meer massieve uitstraling hebben. Daarbij geeft het patroon van de platen in combinatie met de effen pleister een interessant grafisch effect. De esthetiek was dan ook één van de redenen om voor de SVK Ornimat gevelplaten te kiezen.
Ornimat: tal van voordelen
Aan de keuze voor het gevelmateriaal van het nieuwe volume waren heel wat voorwaarden verbonden. Het mocht niet te zwaar zijn en moest eenvoudig te monteren zijn op het houtskelet. Daarbij moest ook gezorgd worden dat de witte pleister van de onderliggende geveldelen niet zou vervuild worden door aflopend regenwater. Tenslotte wilden de bouwheren graag een duurzame, onderhoudsvriendelijke en goed uitziende gevel.

Omwille van het gewicht werd gekozen voor houtskeletbouw
De Ornimat gevelplaten voldoen aan al deze voorwaarden en waren dus een logische keuze. Ook de mogelijkheid om ze te coaten in de exacte RAL-kleur van het buitenschrijnwerk was zeker een pluspunt. SVK verzorgde het zaagwerk op maat en bij het aanbrengen van de coating werden ook de zijkanten van de platen meegekleurd. Dit gebeurt met een UV-bestendige tweecomponenten polyurethaanverf, zodat de kleur ook na jarenlange blootstelling aan de zon intact blijft.
Ook qua vorm zijn de Ornimat gevelplaten zeer duurzaam. Als deel van het productieproces brengen zij vier weken door in een droogkamer, waar ze uitharden aan de lucht. Dat geeft ze een grote sterkte, maar tegelijk blijven ze nog lichtjes elastisch, waardoor ze ook weinig scheurgevoelig zijn. Ornimat platen worden voor elk project op maat gezaagd uit platen met een maximale afmeting van 307 bij 122cm. Hier werden de gevelplaten in wildverband geplaatst, maar ze zijn wel zo ontworpen dat er zo weinig mogelijk snijverlies was.
Vooraleer de Ornimat platen op de gevel werden gemonteerd, werd het houtskelet zwart geverfd, zodat het later niet zichtbaar zou zijn doorheen de voegjes. Omwille van het esthetische aspect werd ervoor gekozen om gevelplaten op het houtskelet te verlijmen, eerder dan te werken met boutverbindingen. Op die manier blijft het oppervlak strak en kan alle aandacht gaan naar het speelse effect van het wildverband.
Uitvoering naar ieders tevredenheid
Nu de woning helemaal afgewerkt is, zijn zowel de bouwheren als de architect en de aannemer zeer tevreden over de uitvoering en het uiteindelijke resultaat. “Zowel de aannemer als wijzelf had reeds ervaring met het gebruik van gevelpanelen, maar nog niet met de Ornimat gevelplaten van SVK. Van in het begin leek het ons een veelbelovende oplossing en nu we de verbouwde woning zien, overtreft het resultaat zelfs onze verwachtingen. Ornimat is een sterk product, zowel qua esthetiek als op het vlak van technische prestaties,” aldus Kim Vervloet van Flow Architecten.

De eigenaars wilden graag hun woning opknappen en uitbreiden met extra leef- en slaapruimte en een thuiskantoor. Hierbij stonden veel licht en een ruimtelijk gevoel voorop. Ook wilden ze graag een maximaal uitzicht op de tuin creëren.

Van de bestaande woning werd al het buitenschrijnwerk vervangen. De gevels werden aan de buitenzijde geïsoleerd en afgewerkt met witte pleister en ook het dak werd geïsoleerd en voorzien van een nieuwe dakbedekking. Verder werd er aan het bestaande volume zo weinig mogelijk veranderd. Enkel het overdekte terras werd mee geïntegreerd in de leefruimte op het gelijkvloers.

Op de verdieping werd een nieuw volume in het bestaande bouwvolume ingepast. De uitbreiding omvat een extra slaapkamer met eigen badkamer, een dressing en het thuiskantoor. Zowel aan de voor- als aan de achterzijde werd een groot raam voorzien, zodat ook vanuit het kantoor het contact met de tuin bewaard blijft.
Spel van oud en nieuw
Onder meer omwille van het gewicht werd gekozen om het nieuwe volume uit te voeren in houtskeletbouw. Deze is geïsoleerd met 14cm glaswol tussen de structuur. Voor de gevelbekleding werd gekozen voor Ornimat gevelplaten van SVK, geplaatst in wildverband en gecoat in RAL 7021, net als het nieuwe aluminium buitenschrijnwerk. Dankzij het contrast in kleur en textuur ontstaat een mooi volumespel tussen oud en nieuw. Het witte pleisterwerk oogt zeer licht, terwijl de gevelplaten een meer massieve uitstraling hebben. Daarbij geeft het patroon van de platen in combinatie met de effen pleister een interessant grafisch effect. De esthetiek was dan ook één van de redenen om voor de SVK Ornimat gevelplaten te kiezen.
Ornimat: tal van voordelen
Aan de keuze voor het gevelmateriaal van het nieuwe volume waren heel wat voorwaarden verbonden. Het mocht niet te zwaar zijn en moest eenvoudig te monteren zijn op het houtskelet. Daarbij moest ook gezorgd worden dat de witte pleister van de onderliggende geveldelen niet zou vervuild worden door aflopend regenwater. Tenslotte wilden de bouwheren graag een duurzame, onderhoudsvriendelijke en goed uitziende gevel.
De Ornimat gevelplaten voldoen aan al deze voorwaarden en waren dus een logische keuze. Ook de mogelijkheid om ze te coaten in de exacte RAL-kleur van het buitenschrijnwerk was zeker een pluspunt. SVK verzorgde het zaagwerk op maat en bij het aanbrengen van de coating werden ook de zijkanten van de platen meegekleurd. Dit gebeurt met een UV-bestendige tweecomponenten polyurethaanverf, zodat de kleur ook na jarenlange blootstelling aan de zon intact blijft.
Ook qua vorm zijn de Ornimat gevelplaten zeer duurzaam. Als deel van het productieproces brengen zij vier weken door in een droogkamer, waar ze uitharden aan de lucht. Dat geeft ze een grote sterkte, maar tegelijk blijven ze nog lichtjes elastisch, waardoor ze ook weinig scheurgevoelig zijn. Ornimat platen worden voor elk project op maat gezaagd uit platen met een maximale afmeting van 307 bij 122cm. Hier werden de gevelplaten in wildverband geplaatst, maar ze zijn wel zo ontworpen dat er zo weinig mogelijk snijverlies was.
Vooraleer de Ornimat platen op de gevel werden gemonteerd, werd het houtskelet zwart geverfd, zodat het later niet zichtbaar zou zijn doorheen de voegjes. Omwille van het esthetische aspect werd ervoor gekozen om gevelplaten op het houtskelet te verlijmen, eerder dan te werken met boutverbindingen. Op die manier blijft het oppervlak strak en kan alle aandacht gaan naar het speelse effect van het wildverband.
Uitvoering naar ieders tevredenheid
Nu de woning helemaal afgewerkt is, zijn zowel de bouwheren als de architect en de aannemer zeer tevreden over de uitvoering en het uiteindelijke resultaat. “Zowel de aannemer als wijzelf had reeds ervaring met het gebruik van gevelpanelen, maar nog niet met de Ornimat gevelplaten van SVK. Van in het begin leek het ons een veelbelovende oplossing en nu we de verbouwde woning zien, overtreft het resultaat zelfs onze verwachtingen. Ornimat is een sterk product, zowel qua esthetiek als op het vlak van technische prestaties,” aldus Kim Vervloet van Flow Architecten.
