Oskar en FELT realiseren kunstencampus KunstAS in Asse als verbindende schakel tussen kapel, stad en cultuur

  • image
  • image
  • image
  • image
  • image
  • image
  • image
  • image
  • image
  • image
  • image
  • image
  • image
  • image
  • image
  • image
  • image
  • image
  • image
  • image
  • image
  • image
  • image
  • image

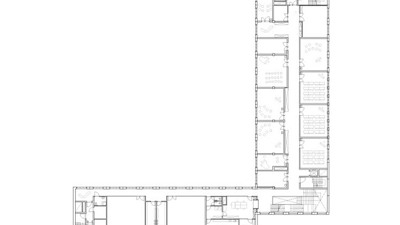
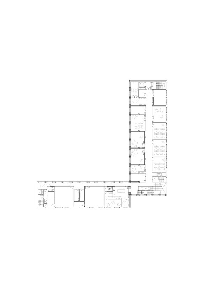
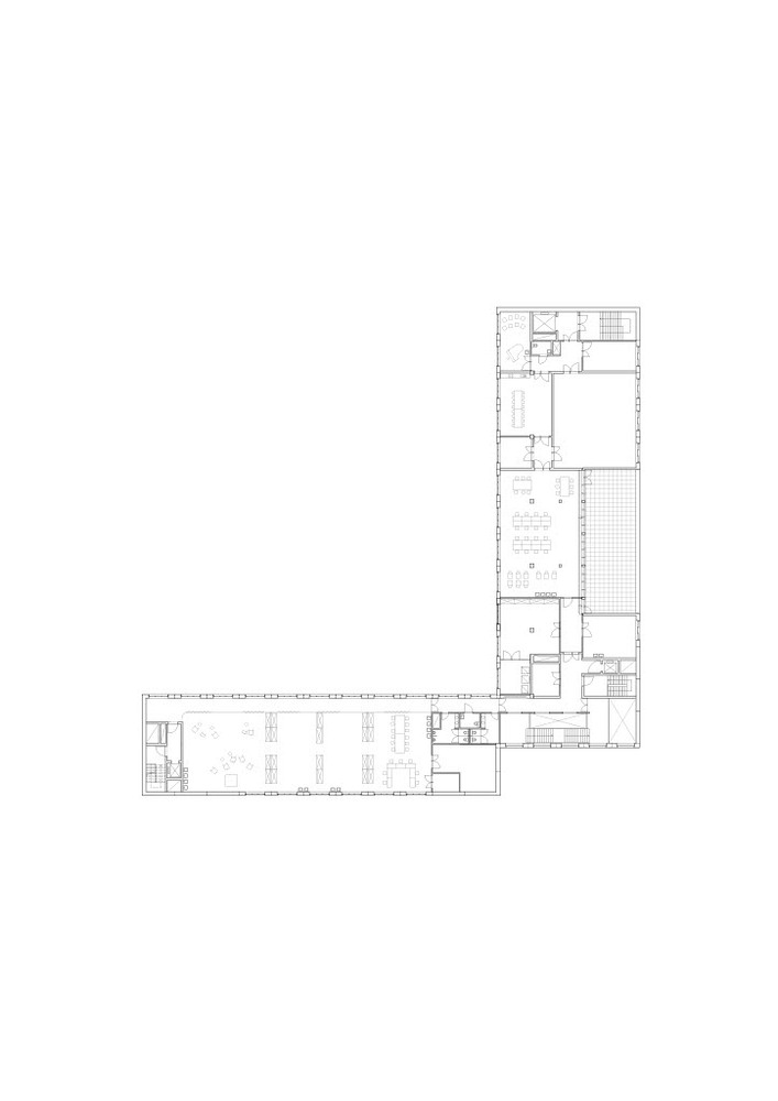
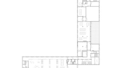
Eind vorig jaar werd in Asse de nieuwe kunstencampus KunstAS opgeleverd, een ontwerp van Oskar en FELT architecture & design in opdracht van de gemeente Asse. Het project kwam tot stand in samenwerking met de studiebureaus Fraeye & Partners, AA&O, Bureau De Fonseca en 2B-Safe. Met een oppervlakte van 7.688 vierkante meter bundelt het gebouw verschillende kunstopleidingen en culturele functies onder één dak, en vormt het tegelijk een nieuw zwaartepunt binnen het centrum van de gemeente.

De campus positioneert zich als sluitstuk van een groeiend cultureel bouwblok. De L-vormige configuratie omarmt een beschermde kapel en structureert het volledige binnengebied. Door het volume strategisch terug te trekken op de hoek ontstaat een voorplein dat de toegang markeert en de relatie met de straat versterkt. Tegelijk wordt het voorheen gesloten bouwblok opengebroken en opnieuw ingebed in het stedelijke weefsel.

Een bouwblok opengewerkt tot doorwaadbare cultuurcluster

Vanuit het voorplein leidt een overdekte galerij bezoekers langs het groene binnengebied richting de bibliotheek en het cultuurcentrum. Die sequentie maakt van de campus geen autonoom gebouw, maar een schakel in een bredere publieke route. De heraangelegde kloostertuin fungeert daarbij als collectieve buitenruimte die het erfgoed opnieuw activeert en zichtbaar maakt in het dagelijks gebruik.

De inplanting creëert tegelijk een omsloten maar toegankelijke binnenwereld. Door op strategische punten afstand te nemen van de perceelsgrenzen ontstaan verbredingen in het publieke domein en worden zichtlijnen geopend. Het project balanceert zo tussen compactheid en porositeit, waarbij het bouwblok niet enkel wordt afgewerkt, maar ook opnieuw leesbaar en doorwaadbaar wordt gemaakt.

Dubbele gevel, één maatvoering

De architectuur wordt gedragen door een consequent uitgewerkte vierkante maatvoering, die zowel de structuur als de gevelcompositie bepaalt. Aan de zijde van de binnenkoer resulteert dat in een open en rustig gevelbeeld met geprefabriceerde betonelementen. Die façade fungeert als neutrale achtergrond voor het dagelijkse gebruik en laat het leven in de campus op de voorgrond treden.

Langs de straatzijde wordt het ritme verfijnd en de materialiteit warmer. Een palet van zachte, pastelkleurige keramische tegels sluit aan bij de omliggende bebouwing, terwijl blauw schrijnwerk accenten legt in het gevelbeeld. Ondanks deze contextuele verschillen blijft de homogeniteit behouden dankzij de consequente toepassing van het vierkante raster en de herhaling van diepe neggen en grote openingen.

Tactiliteit en structuur als één systeem

De gevels zijn niet louter bekleding, maar functioneren ook als dragende structuur. Dat maakt een open plan mogelijk met een grote ruimtelijkheid binnenin. De combinatie van beton, keramiek en staal zorgt voor een uitgesproken tactiliteit: robuust in opbouw, maar verfijnd in afwerking en proportie.

De gelaagdheid van de gevel – met diepe insnijdingen en een fijn uitgewerkt ritme – geeft het gebouw een duidelijke schaal en leesbaarheid. Tegelijk ontstaat een spel van licht en schaduw dat de volumewerking versterkt en de overgang tussen binnen en buiten nuanceert.

Circulatie als ontmoetingsruimte

Binnenin vertrekt de organisatie vanuit een centrale foyer, waar twee parallelle circulatieroutes zich door het gebouw vertakken. Ze verbinden ateliers, repetitieruimtes en gedeelde functies en maken van het gebouw een continu netwerk van ruimtes. Die dubbele circulatie zorgt niet alleen voor efficiëntie, maar ook voor variatie in gebruik en beleving.

De circulatieruimtes worden bewust opgevat als plekken om te verblijven. Transparante vitrines, tentoonstellingswanden en royale bordessen bieden ruimte om werk te tonen en informele ontmoetingen te laten ontstaan. Beweging door het gebouw wordt zo een opeenvolging van momenten om te kijken, te tonen en in interactie te gaan.

Een collectieve leeromgeving onder één dak

De campus centraliseert verschillende kunstdisciplines en brengt zo een diverse gebruikersgroep samen. Door de openheid van het plan en de visuele relaties tussen ruimtes worden kruisbestuiving en ontmoeting gestimuleerd. Met ateliers, een podiumzaal, polyvalente ruimtes en een dakterras ontstaat een veelzijdig programma dat ook buiten de lesuren actief kan zijn.

De architectuur ondersteunt zowel geconcentreerd werken als collectieve momenten, zonder die strikt van elkaar te scheiden. KunstAS presenteert zich daarbij als een helder en samenhangend volume dat zich stevig in het stedelijke weefsel verankert en uitgroeit tot een nieuw cultureel ankerpunt in Asse.

Bron Oskar + FELT architecture & design

  • Deel dit artikel

Onze partners