Overdekte buitenruimtes en parktuin stimuleren spontane ontmoetingen in woonzorgproject Broydenborg  (archipelago & NU architectuuratelier)

  • image
  • image
  • image
  • image
  • image
  • image
  • image
  • image
  • image
  • image
  • image
  • image
  • image

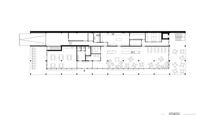
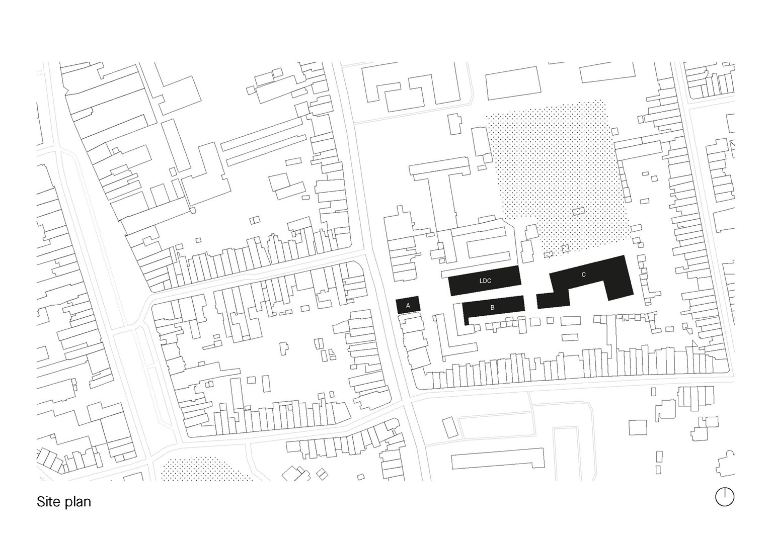
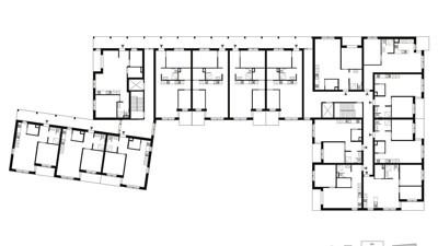
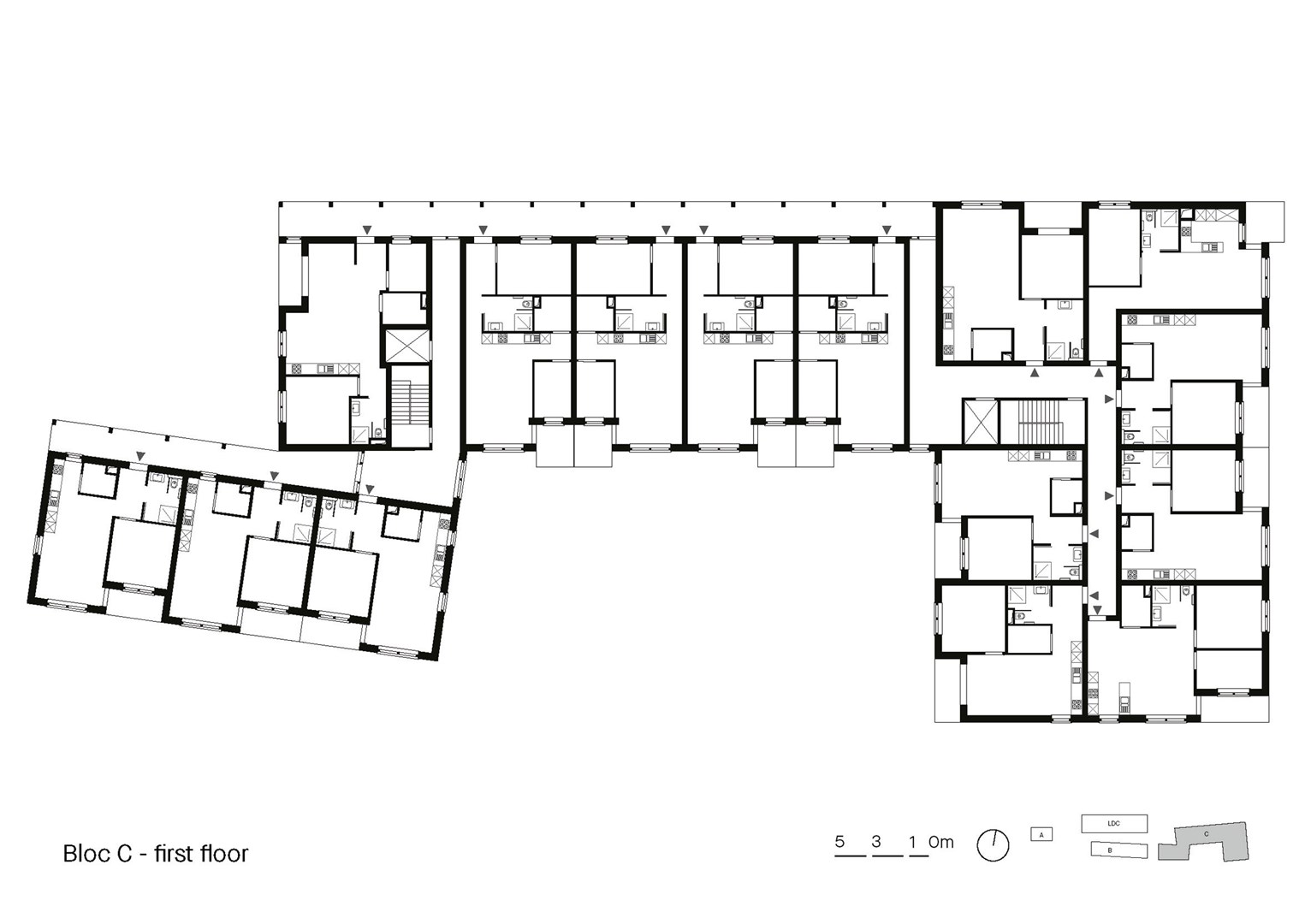
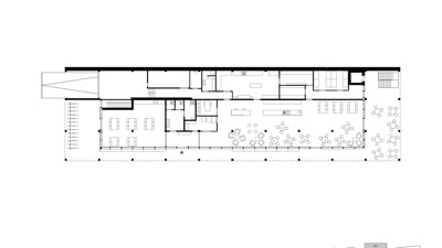
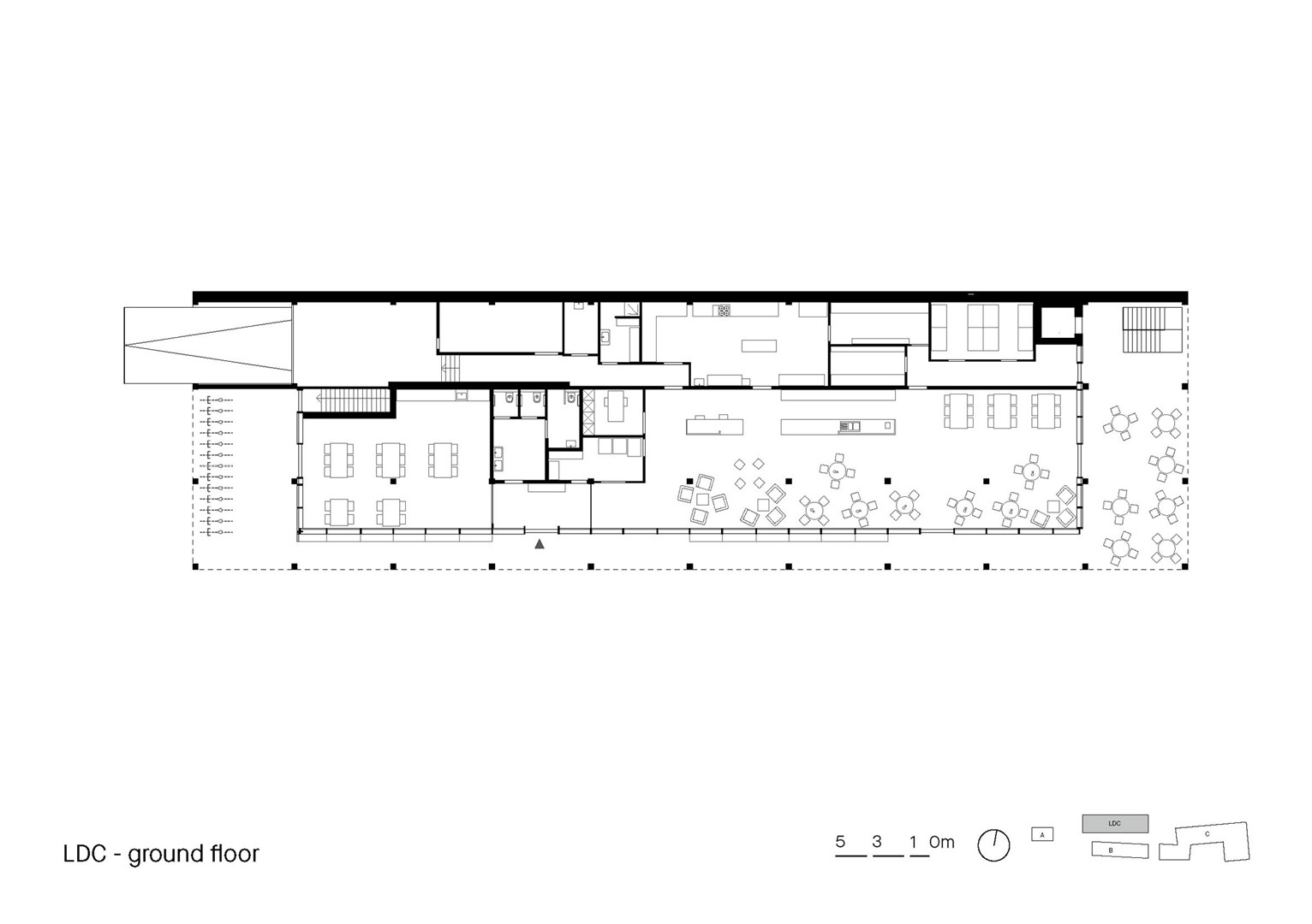
Architectenbureaus archipelago en NU architectuuratelier realiseerden met ‘Broydenborg’ een cluster van bakstenen en betonnen woonblokken voor begeleid wonen in Antwerpen. Het project, gelegen op de site van een voormalige zagerij in Hoboken, omvat 60 woningen, drie zuilengalerijen en een glazen buurthuis. Naast het creëren van woonruimte hebben archipelago en NU architectuuratelier ook ingezet op het vergroten van bruikbare, groene open ruimte met een netwerk van paden en pleinen.

De open ruimte tussen de gebouwen is ontworpen als een ‘parktuin’ – collectieve ontmoetingsplekken voor bewoners en een openbare doorgang voor de buurt. “Het project introduceert een openbare route die door het bouwblok slingert en aansluit op diverse buitenruimtes,” legt archipelago uit. “Deze route verbindt een caféterras onder de nieuwe zuilengalerij met het centrale pleintje en verschillende groene zones.”

Overdekte looproutes

De woonblokken zijn ontworpen met een heldere, rationele structuur en robuuste materialen. Ze hebben maximaal vier verdiepingen, blijven onder de hoogte van de omliggende bebouwing en zijn uitgevoerd in een rechtlijnige vormgeving met gevels in gele baksteen. Om verbindingen met de omgeving te versterken, is elk blok voorzien van sierbetonnen gevels. Op de begane grond bevinden zich overdekte looproutes en op de hogere niveaus een toegankelijk dek dat de appartementen met elkaar verbindt.

Het lagere volume van het buurthuis sluit qua vormgeving naadloos aan bij de woonblokken. Het is voorzien van glazen wanden, ingebouwde banken en een grote overhangende houten luifel, ondersteund door slanke betonnen kolommen.

Spontane ontmoetingen

Naast deze centrale ruimte zijn in de woonblokken ook een haar- en nagelsalon, een wasserette en een multifunctionele gemeenschappelijke ruimte geïntegreerd. “Het ontwerp zorgt ervoor dat bewoners, zelfs tijdens korte uitstapjes, verbonden blijven met hun leefomgeving en een gedeeld gemeenschapsgevoel ervaren,” aldus archipelago.

“Dankzij de overdekte buitenruimtes langs de zuilengalerij, de gevelbanken en de volledig glazen begane grond is het buurthuis een toegankelijk en uitnodigend gebouw,” voegt het bureau toe. “De openbare route die langs het gebouw loopt, stimuleert spontane ontmoetingen en biedt bewoners het eenvoudige plezier van het zien van voorbijgangers.”

Bron archipelago

  • Deel dit artikel

Onze partners