Plusoffice ontwerpt passiefbouw e-bib De Lettertuin
De nieuwe bibliotheek in St-Pieters-Woluwe die plusoffice ontwierp, is een dubbele E-bib: laag Energetisch en hoog Ecologisch. Meer dan enkel een instituut om boeken te bewaren, is de nieuwe bibliotheek een stimulerende ontmoetingsplek, waar alle gebruikers in volledige openheid in contact komen met diverse media.
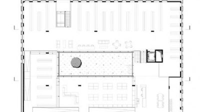
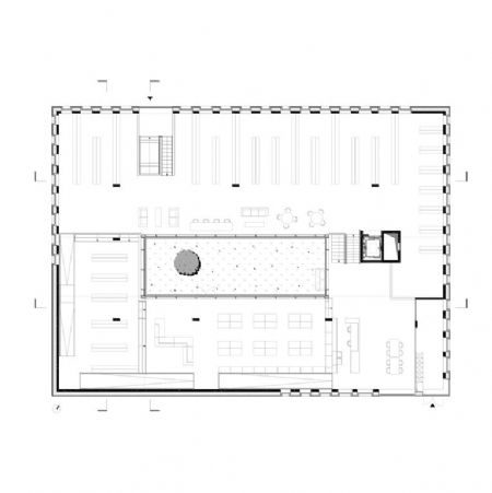
De nieuwe bibliotheek in St-Pieters-Woluwe die plusoffice ontwierp, is een dubbele E-bib: laag Energetisch en hoog Ecologisch. Meer dan enkel een instituut om boeken te bewaren, is de nieuwe bibliotheek een stimulerende ontmoetingsplek, waar alle gebruikers in volledige openheid in contact komen met diverse media – zowel nieuwe als oude. Bovendien wordt dit publieke gebouw van 1200m² als passiefbouw ontworpen, wat heel specifieke oplossingen vergt - anders dan de veel bekendere passieftechnieken voor gezinswoningen. Het hart van het gebouw wordt gevormd door een groene “open lucht” leespatio die alle afdelingen visueel met elkaar verbindt. Die leestuin regelt daglichttoetreding en warmtewinst op een gecontroleerde manier zodat de buitenschil met het grid van kleinere ramen vrij blijft om de optimale afstanden tussen boekenrekken te organiseren. Bij de aanvang van 2013 ontving dit ontwerp de Brusselse Prijs voor voorbeeldgebouwen. Het project komt tot stand door een samenwerking tussen de Gemeente St-Pieters-Woluwe en de Vlaamse Gemeenschaps Commissie.
.jpg)
“Het is onze ambitie om een bibliotheek te ontwerpen die niet enkel een instituut is om boeken te bewaren, maar net zo zeer een ontmoetingsplek, waar alle gebruikers in alle openheid met media – nieuw en oud – in contact komen. De bibliotheek wordt niet alleen een ruimte om te lezen en boeken te bewaren, maar wordt ook een uitnodigend publiek centrum met meerdere (multi-)mediale verantwoordelijkheden.
De nieuwe site van de bibliotheek op de campus van het Koninklijk Atheneum Sint-Pieters-Woluwe, gelegen aan de Grote Prijzenlaan en vlakbij het Mater Dei-Instituut is een unieke positie tussen beide scholen die de educatieve link en inhoudelijke werking van de bibliotheek als kennisplatform vereenvoudigt.
.jpg)
Omdat de huidige bibliotheek in tijdelijke barakken is gehuisvest ergens in een binnengebied, krijgt het nieuwe project een prominente straatgevel, een gevel die optimaal benut wordt. De nieuwe bibliotheek ligt dan ook zo dicht mogelijk aan de straatzijde, vlak naast een bushalte en de hoofdtoegang naar de schoolcampus. Zo tracht ze laagdrempelig en zichtbaar te zijn in het woonweefsel van deze groene gemeente. Het voorplein versterkt deze openheid als een nieuwe ontmoetingsplek voor de gebruikers van de bib.
De positionering van het nieuwe gebouw en de aanleg van de omgeving behoudt zoveel mogelijk het bestaande uitzicht van de aanwezige flora en fauna van de scholencampus. De bibliotheek wordt zo ingepland dat aan de zuidzijde een maximum aan bomen bewaard blijven. De bomenrij wordt ingeschakeld voor de beschaduwing van het nieuwe volume.
.jpg)
Het gebouw krijgt een gevelbekleding van koper-aluminium legering. Ze toont haar gezicht als publiek gebouw, anders dan die van de omliggende woningen en schoolgebouwen. Tussen de vele bomenpartijen door krijgt het gebouw zo toch een bijzondere aantrekkingskracht, wat door de speling van reflectie van het zonlicht nog extra in de verf wordt gezet.
Alhoewel het volume eerder laag blijft aan de voorzijde, is er binnenin heel wat ruimte. De verschillende afdelingen werden geschakeld in een spiraal rond een open lucht lettertuin. Het is een bijzondere plek die licht, lucht en groen introduceert in het hart van het gebouw. Een bezoek aan de bib is een aaneenschakeling van verschillende plekken die geleidelijk aan ontdekt kunnen worden: het voorplein, de bibliotheektuin met wadi, gazon en prachtige bomen, en als sluitstuk de lettertuin.
.jpg)
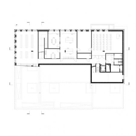
Naast de ruimtes voor het opstellen van de diverse collecties, heeft de bibliotheek ook een voordrachtzaal, die ook afzonderlijk kan gebruikt worden. Het vormt een wezenlijk onderdeel van de programmatie om de collectie te ontsluiten, via het gesproken woord, causerieën, debatten en andere voordrachten.
Dit publieke gebouw wordt als passiefbouw ontworpen, wat heel specifieke oplossingen vergt. Dat begint bij het hart van het gebouw als een open leestuin. De leestuin regelt de daglichttoetreding en warmtewinst op een gecontroleerde manier zodat de buitenschil met een grid van kleinere ramen ideaal is om hiertussen de boekenrekken te plaatsen.
.jpg)
Vanuit gebouwtechnisch oogpunt wordt dit project verwezenlijkt met een minimum aan energieverslindende installaties, een houtbouw/betonconstructie en passieve energiebronnen (zonnepanelen, warmtepomp). We zijn er dan ook trots op dat dit gebouw voldoet aan de passiefstandaard door een juiste toepassing van de trias-energetica: beperkt energieverbruik, gebruik van duurzame energiebronnen en een (kost)efficiënte invulling van de resterende energievraag.
De doelstelling is een bijna energie-neutraal gebouw te bouwen waarbij het energieverbruik in belangrijke mate wordt ingevuld met energie uit hernieuwbare bronnen op de site of in de onmiddellijke omgeving. Door toepassing van bovenstaande maatregelen, aangevuld met energieopwekking door middel van zonnecellen, voorziet het gebouw zelf in 46% van zijn totale energieverbruik. Dit komt neer op 3 keer het geraamde verbruik voor verwarming of het verbruik voor verwarming en koeling (aansturing van de warmtepomp, de eigenlijke warmte komt van de bodem), hulpenergie voor ventilatie en elektrische apparaten.
De gemeente heeft bovendien de ambitie om het deel van het energieverbruik dat niet ter plekke opgewekt wordt, aan te kopen bij een duurzame stroomleverancier opdat zo 100% van het energieverbruik hernieuwbaar zou zijn.
.jpg)
.jpg)
.jpg)
.jpg)
“Het is onze ambitie om een bibliotheek te ontwerpen die niet enkel een instituut is om boeken te bewaren, maar net zo zeer een ontmoetingsplek, waar alle gebruikers in alle openheid met media – nieuw en oud – in contact komen. De bibliotheek wordt niet alleen een ruimte om te lezen en boeken te bewaren, maar wordt ook een uitnodigend publiek centrum met meerdere (multi-)mediale verantwoordelijkheden.
De nieuwe site van de bibliotheek op de campus van het Koninklijk Atheneum Sint-Pieters-Woluwe, gelegen aan de Grote Prijzenlaan en vlakbij het Mater Dei-Instituut is een unieke positie tussen beide scholen die de educatieve link en inhoudelijke werking van de bibliotheek als kennisplatform vereenvoudigt.
.jpg)
Omdat de huidige bibliotheek in tijdelijke barakken is gehuisvest ergens in een binnengebied, krijgt het nieuwe project een prominente straatgevel, een gevel die optimaal benut wordt. De nieuwe bibliotheek ligt dan ook zo dicht mogelijk aan de straatzijde, vlak naast een bushalte en de hoofdtoegang naar de schoolcampus. Zo tracht ze laagdrempelig en zichtbaar te zijn in het woonweefsel van deze groene gemeente. Het voorplein versterkt deze openheid als een nieuwe ontmoetingsplek voor de gebruikers van de bib.
De positionering van het nieuwe gebouw en de aanleg van de omgeving behoudt zoveel mogelijk het bestaande uitzicht van de aanwezige flora en fauna van de scholencampus. De bibliotheek wordt zo ingepland dat aan de zuidzijde een maximum aan bomen bewaard blijven. De bomenrij wordt ingeschakeld voor de beschaduwing van het nieuwe volume.
.jpg)
Het gebouw krijgt een gevelbekleding van koper-aluminium legering. Ze toont haar gezicht als publiek gebouw, anders dan die van de omliggende woningen en schoolgebouwen. Tussen de vele bomenpartijen door krijgt het gebouw zo toch een bijzondere aantrekkingskracht, wat door de speling van reflectie van het zonlicht nog extra in de verf wordt gezet.
Alhoewel het volume eerder laag blijft aan de voorzijde, is er binnenin heel wat ruimte. De verschillende afdelingen werden geschakeld in een spiraal rond een open lucht lettertuin. Het is een bijzondere plek die licht, lucht en groen introduceert in het hart van het gebouw. Een bezoek aan de bib is een aaneenschakeling van verschillende plekken die geleidelijk aan ontdekt kunnen worden: het voorplein, de bibliotheektuin met wadi, gazon en prachtige bomen, en als sluitstuk de lettertuin.
.jpg)
Naast de ruimtes voor het opstellen van de diverse collecties, heeft de bibliotheek ook een voordrachtzaal, die ook afzonderlijk kan gebruikt worden. Het vormt een wezenlijk onderdeel van de programmatie om de collectie te ontsluiten, via het gesproken woord, causerieën, debatten en andere voordrachten.
Dit publieke gebouw wordt als passiefbouw ontworpen, wat heel specifieke oplossingen vergt. Dat begint bij het hart van het gebouw als een open leestuin. De leestuin regelt de daglichttoetreding en warmtewinst op een gecontroleerde manier zodat de buitenschil met een grid van kleinere ramen ideaal is om hiertussen de boekenrekken te plaatsen.
.jpg)
Vanuit gebouwtechnisch oogpunt wordt dit project verwezenlijkt met een minimum aan energieverslindende installaties, een houtbouw/betonconstructie en passieve energiebronnen (zonnepanelen, warmtepomp). We zijn er dan ook trots op dat dit gebouw voldoet aan de passiefstandaard door een juiste toepassing van de trias-energetica: beperkt energieverbruik, gebruik van duurzame energiebronnen en een (kost)efficiënte invulling van de resterende energievraag.
De doelstelling is een bijna energie-neutraal gebouw te bouwen waarbij het energieverbruik in belangrijke mate wordt ingevuld met energie uit hernieuwbare bronnen op de site of in de onmiddellijke omgeving. Door toepassing van bovenstaande maatregelen, aangevuld met energieopwekking door middel van zonnecellen, voorziet het gebouw zelf in 46% van zijn totale energieverbruik. Dit komt neer op 3 keer het geraamde verbruik voor verwarming of het verbruik voor verwarming en koeling (aansturing van de warmtepomp, de eigenlijke warmte komt van de bodem), hulpenergie voor ventilatie en elektrische apparaten.
De gemeente heeft bovendien de ambitie om het deel van het energieverbruik dat niet ter plekke opgewekt wordt, aan te kopen bij een duurzame stroomleverancier opdat zo 100% van het energieverbruik hernieuwbaar zou zijn.
.jpg)
.jpg)
.jpg)