PLUSOFFICE renoveerde voormalig koetshuis met oog op toekomstig gebruik als kleinschalig woonzorgcentrum
- 10 mei 2024
- Laatste update: 30 januari 2025
-
© Dennis De Smet
© Dennis De Smet
-
© Dennis De Smet
© Dennis De Smet
-
© Dennis De Smet
© Dennis De Smet
-
© Dennis De Smet
© Dennis De Smet
-
© Dennis De Smet
© Dennis De Smet
-
© Dennis De Smet
© Dennis De Smet
-
© Dennis De Smet
© Dennis De Smet
-
© Dennis De Smet
© Dennis De Smet
-
© Dennis De Smet
© Dennis De Smet
-
© Dennis De Smet
© Dennis De Smet
-
© Dennis De Smet
© Dennis De Smet
-
© Dennis De Smet
© Dennis De Smet
-
© Dennis De Smet
© Dennis De Smet
-
© Dennis De Smet
© Dennis De Smet
-
© PLUSOFFICE
© PLUSOFFICE
-
© PLUSOFFICE
© PLUSOFFICE
-
© PLUSOFFICE
© PLUSOFFICE
-
© PLUSOFFICE
© PLUSOFFICE
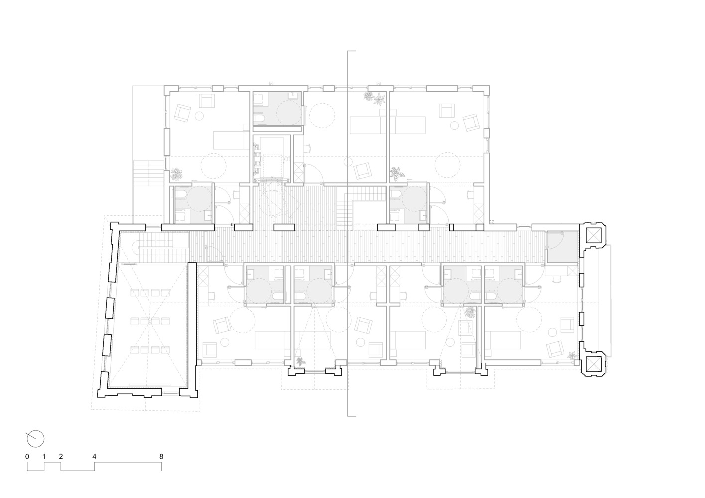
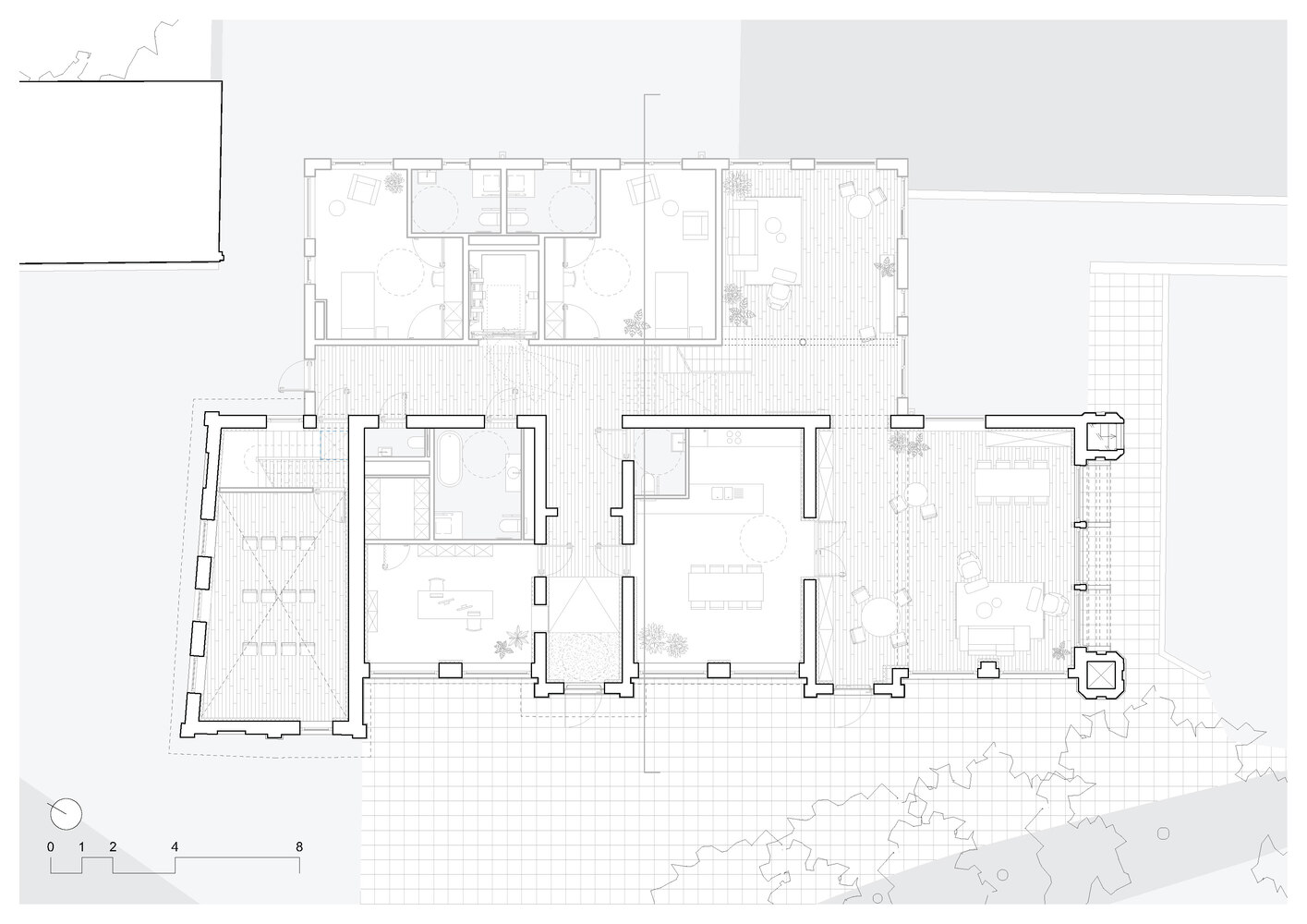
In het dorp Sint-Ulriks-Kapelle in het hart van het Pajottenland ligt een voormalig kasteeldomein waar de VZW De Verlosser en de zusters huizen. Het parkdomein is beschermd erfgoed en omvat naast het landhuis ook koetshuizen, een boerderij, aalmoezenierswoning,... Om ook in de toekomst kwaliteitsvolle ouderenzorg te kunnen aanbieden, heeft het Brusselse ontwerpbureau PLUSOFFICE een masterplan gemaakt dat het kasteel- en beschermde parkdomein versterkt en de krijtlijnen uitzet voor de verdere uitbouw van een woonzorgcentrum met 150 bedden.
Als onderdeel van dit masterplan renoveerde PLUSOFFICE "Gaudium". Dit voormalige koetshuis werd gebruikt als novicenresidentie. De historische gevels zijn gerestaureerd, de bijgebouwen vervangen en het ontwerp is gebaseerd op een bijna energieneutraal technologieconcept. De heringerichte residentie zal plaats bieden aan negen bewoners, die elk een volledig uitgeruste verzorgingskamer hebben en enkele speciale woonruimtes delen.
Van woongemeenschap tot woonzorgcentrum
Het project is zo bedacht dat het eerst kan dienen als woongemeenschap voor de zusters, inclusief een eigen huiskapel, en later zonder grote aanpassingen kan dienen als kleinschalig woonzorgcentrum. Door de directe koppeling met de bestaande woonzorggemeenschap, met het kasteelpark en de moestuin kan de buitenruimte ook actief gebruikt worden als onderdeel van het zorgaanbod.
Eigentijdse raamopeningen
De ingreep van PLUSOFFICE herwaardeert het oorspronkelijke hoofdvolume, vernieuwt de dakvorm en plaatst een "tweeling zuster" als uitbreiding naast het oorspronkelijke gebouw. De nieuwe dakvorm sluit naadloos aan op het historische gebouw en is gemaakt van kleidakpannen in harmonie met de bestaande bakstenen gevel. De nieuwe aanbouw neemt dit materiaalgebruik over en breidt het uit met eigentijdse raamopeningen. De ballustrades voor deze ramen zijn figuratief gedetailleerd, geïnspireerd op de fijne houten uitsparingen van het hoofdgebouw.
Artikels
Projecten
Dossiers
Architectura nieuwsbrief
Meteen op de hoogte van het laatste architectuurnieuws?
De Architectura-nieuwsbrief biedt een boeiende mix van actualiteit, projectbeschrijvingen, opiniestukken, productinnovaties, info over evenementen, maar video's, podcasts en zoveel meer.
Schrijf je nu in en ontvang onze wekelijkse nieuwsbrieven in jouw mailbox.
AbonnerenMeest recent
-
Nieuwe afvoeroplossingen voor uiteenlopende toepassingen en belastingen
-
Coalitie Duurzaam Bouwen: drie organisaties bundelen krachten voor snellere transitie
-
Slim wonen in 2026: technologie als structureel ontwerpelement
-
Rondschuifdeuren als blikvangers in station Gare de Mons
-
Montgomery Parc: van overheidsgebouw naar klimaatadaptieve werkplek
-
Compagnie O realiseert met KUUB Nieuw Zuid een hybride school en sporthal rond atrium en learning street
-
Stramien tekent nieuw onthaalgebouw voor Provinciaal Vormingscentrum Malle
-
BRON: een nieuwe plek voor onderzoek, collectie en kennisdeling (Robbrecht en Daem & Olivier Salens Architecten)
-
META en Aché Terra winnen ontwerpwedstrijd voor sociaal woonproject Wilgenhof in Willebroek
-
PANELGESPREK. De architect als landschapsmaker (Futurebuild – Brussels Expo, 28 januari)