Poot architectuur tilt PIUS X-instituut Antwerpen zowel letterlijk als figuurlijk naar hoger niveau

  • image
  • image
  • image
  • image
  • image
  • image
  • image
  • image
  • image
  • image
  • image
  • image
  • image
  • image
  • image
  • image
  • image
  • image
  • image
  • image
  • image
  • image

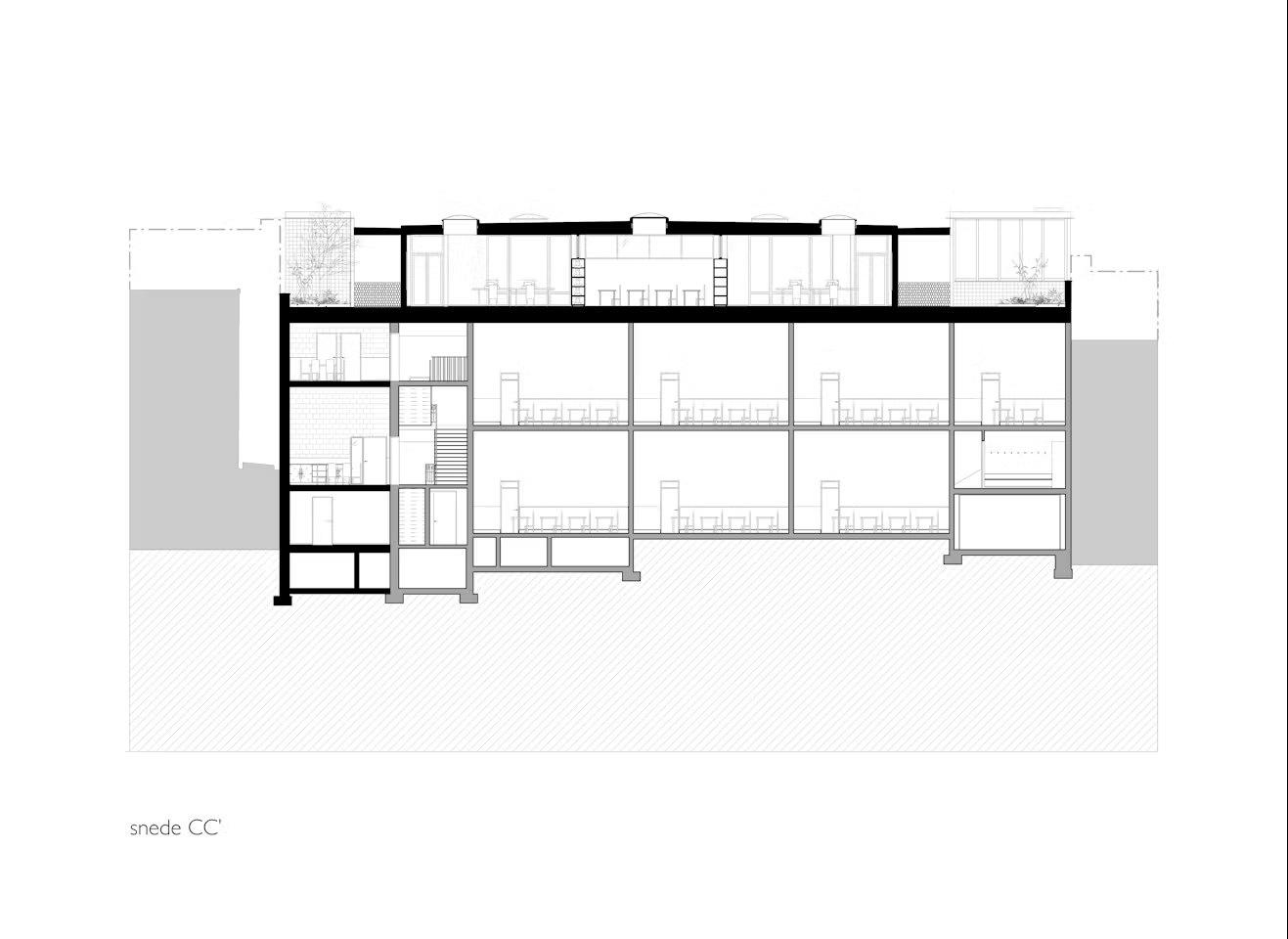
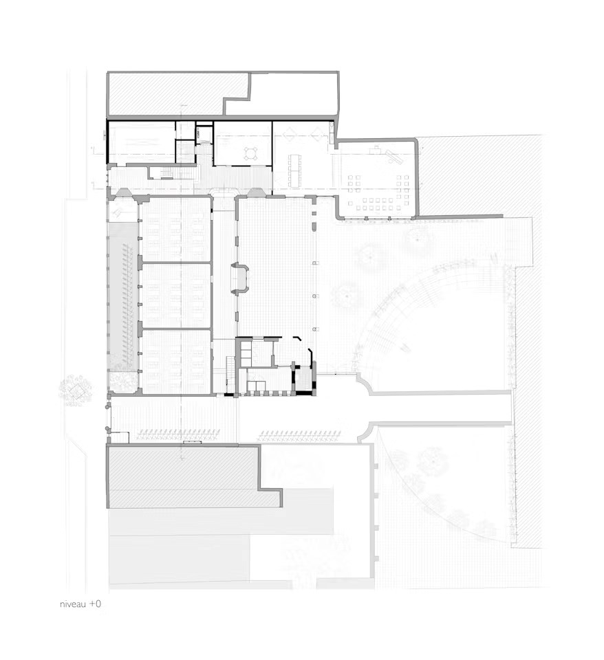
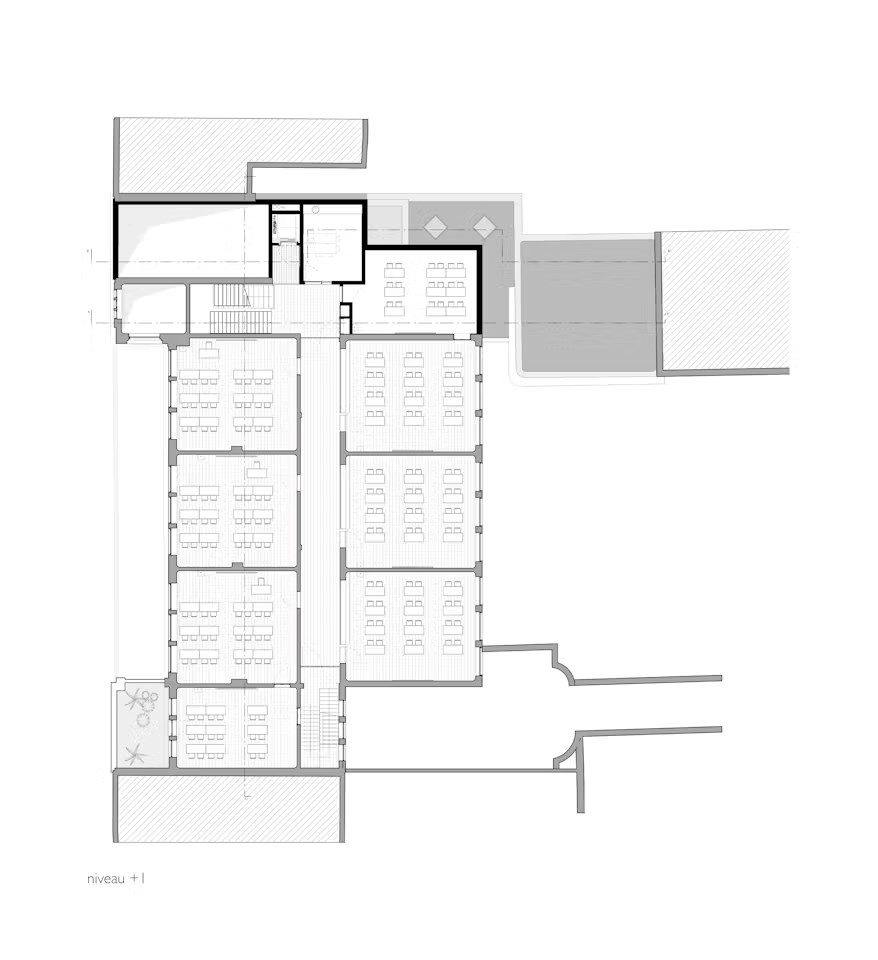
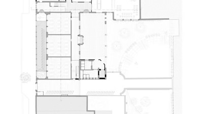
Het PIUS X-instituut in Antwerpen heeft een ingrijpende transformatie ondergaan. Poot architectuur heeft niet alleen het bestaande schoolgebouw voor de derde graad uitgebreid, maar ook gerenoveerd. De opvallendste ingreep is de toevoeging van een derde bouwlaag, onder de vorm van een sculpturale optopping. Daarnaast werden ook de speelplaats en het lerarenhuis herbekeken, waardoor de hele site een coherente vernieuwing onderging.

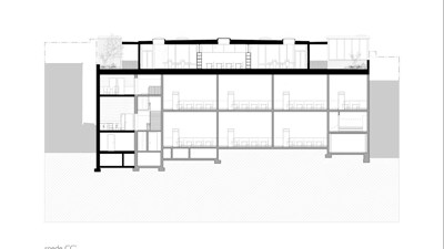
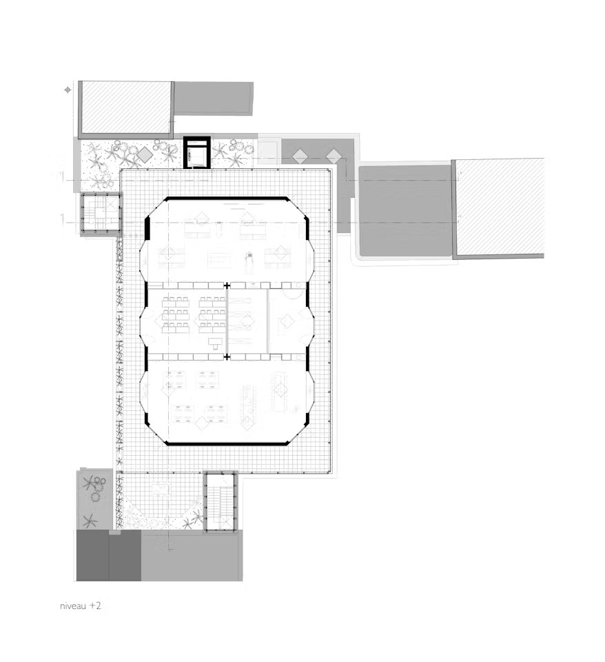
De optopping van het gebouw is vormgegeven als een groot dakpaviljoen met zes nieuwe klaslokalen. De circulatie bevindt zich aan de buitenzijde, waardoor de footprint minimaal blijft en de overgebleven ruimte kan worden ingezet als bijkomende buitenruimte. Dit compact en efficiënt bouwprincipe zorgt niet alleen voor een duurzaam ontwerp, maar voegt ook extra groen toe aan de stedelijke omgeving.

Innovatief trappenlandschap

Een belangrijk architecturaal kenmerk van de uitbreiding is de brede luifel, die verschillende functies vervult. Naast bescherming tegen de weersomstandigheden dient deze ook als polyvalente ruimte: een uitbreiding van de klaslokalen, een overdekte speelruimte of zelfs een informele ontmoetingsplek. De optopping wordt gekenmerkt door een licht en elegant volume, dat zich subtiel integreert in de bestaande architectuur en wordt omringd door een groene daktuin.

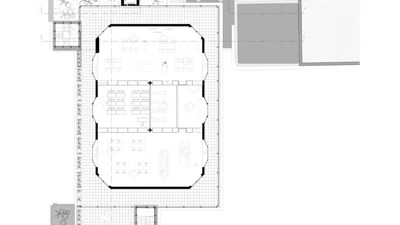
De speelplaats werd volledig heraangelegd, met een innovatief trappenlandschap dat dienst kan doen als amfitheater of tribune voor de leerlingen. Dit ontwerp houdt rekening met het niveauverschil op de site en creëert een multifunctionele buitenruimte. Bovendien werd bij de heraanleg rekening gehouden met de historische context: het achterliggende oude klooster en de beschermde brug vormen een dialoog met het nieuwe landschapsontwerp.

Openluchtschool

De nieuwe bovenverdieping is volledig gericht op flexibiliteit en openheid. De zes klaslokalen, voornamelijk bestemd voor de vakken mode en plastische opvoeding, zijn zo ontworpen dat ze eenvoudig gecombineerd kunnen worden dankzij verplaatsbare wanden. De buitenpasserelle met bloembakken fungeert niet enkel als circulatieruimte, maar versterkt ook het concept van een openluchtschool, waarbij verluchting en buitenruimtes een centrale rol spelen.

Voor de constructie koos Poot architectuur voor een lichte structuur uit stalen kolommen en CLT-wanden, om de bestaande draagstructuur niet te overbelasten. Dakkoepels zorgen voor extra daglichtinval, terwijl de luifel strategisch ontworpen is om in de zomer schaduw te bieden en in de winter toch voldoende licht binnen te laten. De erkers in de gevels fungeren niet alleen als architecturaal accent, maar ook als vitrines voor de creaties van de modeleerlingen.

Harmonieus geheel

Naast de uitbreiding werd ook het bestaande schoolgebouw gerenoveerd met respect voor de oorspronkelijke architectuur. De ontwerpers herstelden het gebouw naar zijn authentieke staat en verbeterden de akoestiek. Verlaagde plafonds werden verwijderd en er werd een ventilatiesysteem met raamroosters toegevoegd. Authentieke elementen zoals de originele tegelvloer bleven behouden, terwijl de zuidgerichte gevel werd voorzien van zonwering.

Ten slotte werd ook het lerarenhuis volledig vernieuwd. Dit voormalige rijhuis herbergt nu de directiebureaus en vergaderruimtes, en werd fysiek verbonden met het schoolgebouw. Toch bleef de zandsteenkleurige baksteen behouden, en werden de raamdetails subtiel aangepast om een visuele link te leggen met de schoolgevel. Dankzij deze ingrepen wist Poot architectuur een harmonieus geheel te creëren waarin oud en nieuw elkaar versterken, zonder in concurrentie te treden.

Bron Poot architectuur

  • Deel dit artikel

Onze partners