Scharphoutsite Lissewege wordt sfeervol park met circulair ontmoetingscentrum (Dertien12 & Studio Basta)

  • image
  • image
  • image
  • image
  • image
  • image
  • image
  • image
  • image
  • image
  • image

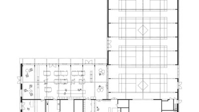
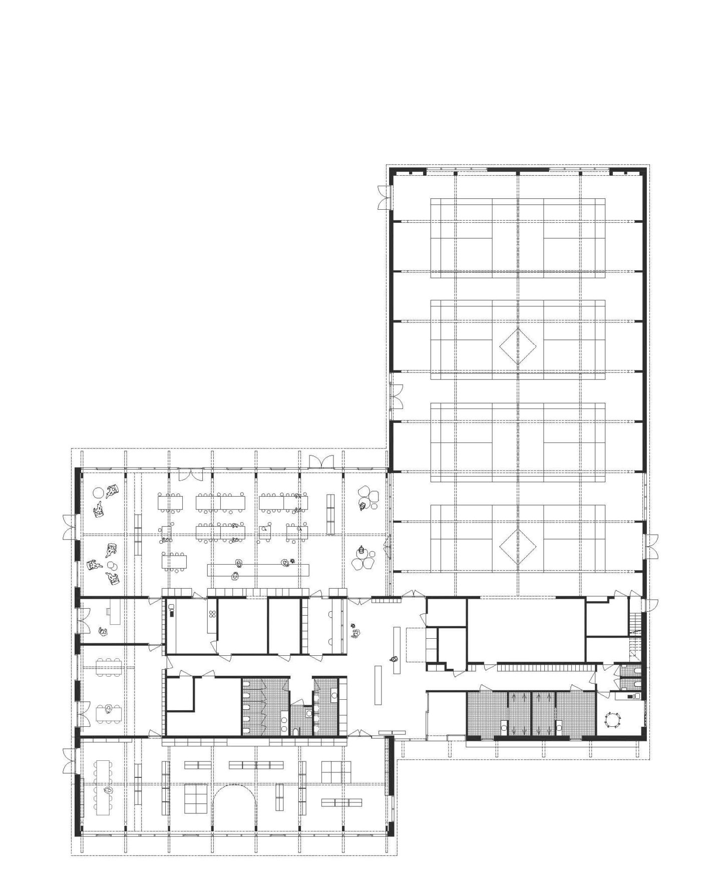
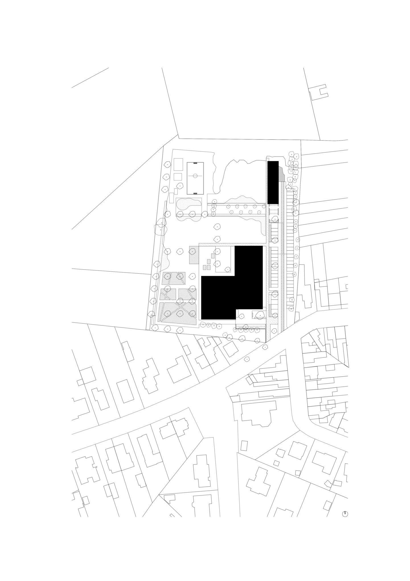
Op de Scharphoutsite in Lissewege bouwt Stad Brugge naar het ontwerp van Architectuuratelier Dertien12 een circulair ontmoetingscentrum met inkomhal en onthaalbalie, ruimtes voor een hedendaagse bibliotheek, polyvalente sporthal met kleedkamers, lokaal dienstencentrum met ingerichte keuken, vergaderruimtes en jeugdlokalen. Daarnaast wordt ook de omgevingsaanleg gerealiseerd als park met sfeervolle verlichting, wandelpaden en zitbanken. Er is ruimte voorzien voor een groene parking voor 50 voertuigen, een overdekte fietsenstalling, een ruim terras met petanqueveld, speelplein en skatepark. Het landschapsontwerp is gemaakt door Studio Basta.

In co-creatie met de Stad Brugge, Möbius Business Redesign, C2C ExpoLAB, Howest en de bewoners van Lissewege zet Architectuuratelier Dertien12 de schouders onder de bouw van een circulair ontmoetingscentrum met omgevingsaanleg op de Scharphoutsite. Het project omvat een bibliotheek, sporthal, lokaal dienstencentrum en jeugdlokalen.

De ambitie van de stad Brugge om in de toekomst haar patrimonium met een circulaire inslag te benaderen triggerde het ontwerpbureau. Circulariteit behelst in de ogen van Architectuuratelier Dertien12 niet enkel het bouwen, maar de totale maatschappij: “Het is een positieve levens­houding die zowel de maatschappelijke- als de bouwprojecten van de toekomst fenomenaal zal dooraderen.

Gezonde impact

Hoe kan een circulair pilootproject de ziel van de plek vatten, maar ook tegelijk de planetaire noodkreten beantwoor­den, met de logica van een duurzame (bouw)cultuur die faciliteert en inspireert? Hoe kan dit pilootproject ons helpen in het leren samenleven in de rijkdom van diversiteit, zowel op menselijk als technologisch vlak?

Architectuuratelier Dertien12 wil met de Scharphoutsite een bouwproject realiseren met een gezonde impact op de toekomst van de stad Brugge, maar waarvan de impact op de site zelf quasi nihil is. Deze prikkelende tegenstelling namen de architecten mee in het ontwerpproces, net als het sociale aspect van dit ontmoetingscentrum. Want een goed pilootproject in circulariteit is voor het architectenbureau iets dat wetenschappelijk onderzocht, bewezen, ontwikkeld en gesteund wordt, maar evenzeer iets waar je blij van wordt:  “Een plek die je oplaadt, raakt en verbindt. Een plek waar goed voor gezorgd wordt, die inclusiviteit educeert en die verzorgt. Een plek die ook goed voor zichzelf kan zorgen. Een plek waar geleefd wordt. Een intense bron van vreugde, binnen een maatschappelijk zingevende context, bevrijd van wat er niet toe doet.

Ingecalculeerde fragiliteit

De ontwerpers van de Scharphousite zijn overtuigd dat een duurzaam gebouw flexibel moet zijn in de tijd dat ze er staat. Met een stevig karkas, die in de toekomst wijzigende noden of wensen kan opvangen. Maar ook willen ze een bepaalde fragiliteit in hun ontwerp calculeren: ze willen haar ook terug kunnen ontmantelen zonder de aarde te belasten, en waarbij de materialen hun duurzaamheid en kwaliteit behouden, klaar voor een tweede leven.

Om een gebouw te kunnen realiseren dat ooit kan worden afgebroken zonder restafval, wordt er gewerkt met leemblokken. Tijdens verschillende workshops gingen Architectuuratelier Dertien12 samen met heel wat toekomstige gebruikers het zand van de Scharphoutsite persen tot leemstenen voor de bouw van dit circulair project. Judoka's, KSA'ers, kinderen van de school...: tal van mensen engageerden zich om mee te bouwen aan hun toekomstige omgeving. Vanaf het voorjaar van 2026 zullen ze kunnen genieten van het eindresultaat.

Bron Architectuuratelier Dertien12 & Vandenbussche

  • Deel dit artikel

Onze partners