Sociaal huisvestingsproject Rustenhove verbindt compacte ouderenwoningen met collectieve tuin (platform architectuur)

  • image
  • image
  • image
  • image
  • image
  • image
  • image
  • image
  • image
  • image
  • image
  • image

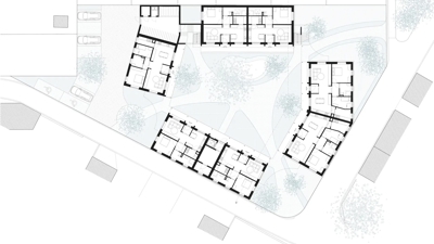
Ten westen van de Torrepoortlaan in Ieper realiseerde platform architectuur het sociale woonproject Rustenhove, in samenwerking met Sileghem & Partners (stabiliteit), KR engineering (technieken) en Bureau Cnockaert (infrastructuur). In opdracht van sociale huisvestingsmaatschappij Ons Onderdak verving het ontwerpteam zeven verouderde rijwoningen door twaalf nieuwe woningen voor ouderen. Niet met een breuk, maar met een verfijnde voortzetting van het bestaande weefsel: vier volumes van telkens twee bouwlagen, gegroepeerd rond een collectieve binnentuin, verbonden via een verhoogde galerij die zowel visuele als functionele samenhang biedt.

Het project bracht niet enkel nieuwe woningen, maar ook een herdefiniëring van de publieke ruimte binnen het bouwblok. Door de gebouwen langs de perceelgrenzen te plaatsen, ontstond centraal ruimte voor een open binnenhof. Deze groene ruimte vormt het hart van het geheel: een zachte plek voor ontmoeting, rust en sociale verbinding. Het project toont hoe verdichting en buitenruimte elkaar niet hoeven uit te sluiten, maar net kunnen versterken.

Tuinwijkprincipe als leidraad

Rustenhove is geen toevallige inplanting, maar een zorgvuldig antwoord op de kwaliteiten van de omliggende Torrepoortwijk. Deze sociale tuinwijk wordt gekenmerkt door brede straten, afgewisselde bebouwing en een uitgesproken groen karakter. Platform architectuur liet zich leiden door dit bestaande DNA. Geen nieuwe vormentaal, maar een aangepaste interpretatie van het gekende model van rij- en halfopen woningen, horizontaal opgesplitst tot een milde, collectieve woonvorm.

Door het bestaande ritme te manipuleren en opnieuw te rangschikken, werd een ensemble gecreëerd dat tegelijk verwant is aan de context en toch zijn eigen stempel drukt. De ontwerpers kozen voor een lage bouwhoogte, afgestemd op de schaal van de omgeving, en vermeden het bebouwen van de hoeken van het perceel. Daardoor kreeg elke woning drie gevels, wat bijdraagt aan lichtinval, oriëntatie en contact met de buitenwereld.

Architectuur die ruimte maakt voor leven

De verhoogde galerij is meer dan een ontsluitingsstructuur: ze verbindt de woningen met elkaar en biedt bewoners een bijkomend verblijfsspoor, een plek waar toevallige ontmoetingen mogelijk worden. Ze begeleidt de overgang tussen het private en het collectieve domein en geeft tegelijk een lichte architecturale articulatie aan het geheel, zonder opdringerig te zijn.

Centraal ligt het hof, een open ruimte zonder opsmuk, maar met grote betekenis. Zitelementen, doorkijken en beplanting maken het hof tot een plek waar ontmoeting vanzelfsprekend wordt. Niet als verplichting, maar als mogelijkheid. De collectieve ruimte is zodanig vormgegeven dat ze zowel actief als contemplatief gebruikt kan worden. Ze vormt een vanzelfsprekende buffer tussen de publieke straat en de private woning, en maakt tegelijk het geheel herkenbaar en eigen.

Een woonvorm voor de toekomst

De woningen zijn ontworpen voor ouderen die zelfstandig willen blijven wonen, maar wel in een omgeving die nabijheid en verbondenheid faciliteert. Geen institutionele setting, maar een menselijke schaal. Dankzij de nabijheid van voorzieningen, een doordachte oriëntatie en een overzichtelijke opbouw, krijgen bewoners een thuis die comfort koppelt aan autonomie. Drie gevels per woning zorgen voor kwalitatieve lichttoetreding en uitzicht op zowel het hof als de omliggende wijk.

Door het aanbieden van compacte, aangepaste woningen wordt ook de woonmobiliteit versterkt: oudere bewoners laten een vaak te ruime gezinswoning achter, waardoor deze vrijkomt voor nieuwe bewoners. In die zin draagt Rustenhove bij aan de aanpak van het ruimtelijke én energetische vraagstuk dat Vlaanderen vandaag bezighoudt. Compact bouwen, slim inbreiden en levenslang wonen worden hier tastbare realiteit.

Van ontwerp naar gebruik

Rustenhove werd opgeleverd in 2024, na een ontwerp- en bouwproces van vijf jaar. Toch eindigde het project voor platform architectuur niet bij de oplevering. De architecten keerden terug naar de plek, ditmaal niet met plannen of plannenrollen, maar met tijd en aandacht. Ze spraken met bewoners en merkten hoe het project in gebruik is genomen – hoe het leeft, werkt en evolueert.

Die terugkeer bevestigde dat architectuur meer is dan vorm: het is een ruimtelijk kader dat relaties mogelijk maakt. Rustenhove toont hoe zorgvuldig ontworpen woonvormen – met aandacht voor schaal, context, collectiviteit en gebruik – een verschil kunnen maken in het dagelijkse leven van mensen. Niet door te imponeren, maar door zich te verankeren. Niet door een groot gebaar, maar door fijnmazige verwevenheid.

Bron platform architectuur

  • Deel dit artikel

Onze partners