Sociale woningbouw meets passiefbouw
Collectief Noord architecten schuwt de pastiche niet. Ze zetten de archetypische herenboerdij in als ‘nieuwe korrel’ voor de sociale woningen te Pijpelheide in Booischot. Negen van de zevenenzestig lage-energiewoningen worden passief, op basis van energieonderzoek van Cenergie. Een kijk op het project Pijpelheide.
Collectief Noord architecten schuwt de pastiche niet. Ze zetten de archetypische herenboerdij in als ‘nieuwe korrel’ voor de sociale woningen te Pijpelheide in Booischot. Negen van de zevenenzestig lage-energiewoningen worden passief, op basis van energieonderzoek van Cenergie. Een kijk op het project Pijpelheide.
Collectief Noord combineert een vertrouwd landschapselement, de hereboerderij, met de functie van sociale woning, en legt zo een nieuw type vast. Het heeft nog het meest weg van de Phalangstère van Fourier, waarin hij het type van paleis aanpast naar een complex van sociale woningen en zoveel mogelijk meerwaardes genereert voor haar bewoners. Maar waarom kiest Collectief Noord voor ‘de herenboerderij’?
“Grondgebonden sociale woningen in het Vlaamse landschap vervagen snel tot verschaalde villawijken of een verkleinde versie van een stadswijk met rijhuizen. Misschien is een meer gepaste typologie die van de herenboerderij. Grote stempels van een tiental woningen ingeplant rond een open groenzone. Pannen, baksteen, houten beplanking, gevelleien en luiken...de beeldtaal van het Vlaamse landschap wordt ingezet om de volumetrie te abstraheren,” aldus het architectenbureau.


Eén van de vier types die voor karaktervol en speels profiel zorgen
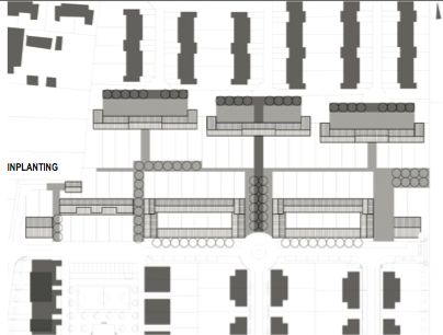
De woningen worden dus geïntegreerd in een ruimer landschap van sociale huur- en koopwoningen. Er is daarom gekozen voor een aangepaste bouwvorm waarbij de woningen gegroepeerd worden tot rijwoningen. Zo zullen acht ‘boerderijen’ worden gebouwd. Tussen de entiteiten is er een combinatie van kleine privétuintjes en een collectieve publieke tuin.

Inplanting met de acht eenheden, rechts boven staat de 'passieve boerderij'
Passiefbouwboerderij
Maar ook vanuit energetisch standpunt is het project vernieuwend. Cenergie nam het energie-onderzoek van de wijk op zich. Van de zevenenzestig lage-energie woningen werden er negen passief uitgevoerd. Deze zijn een pilootproject inzake passiefbouw combineren met sociale huisvesting. Tijdens de ontwerpfase werd duidelijk dat het bouwen van sociale passiefwoningen verschilt van een gemiddelde passiefwoning. Zo leidden de eerste berekeningen tot disproportionele isolatiediktes. Omdat sociale woningen algemeen kleiner zijn dan een gemiddelde woning, zijn de warmtewinsten per m2 groter.

4C, onderaan, werd passief uitgevoerd
Door de toepassing van verschillende energetische concepten in identieke gebouwen, kunnen kostprijs, energieprestatie en reële verbruiken van deze energieconcepten vergeleken worden. Omdat elke entiteit uit een groep van meerdere woningen bestaat, kunnen gebruikersafhankelijke parameters gedeeltelijk geëlimineerd worden.

Bij de materiaalkeuzes wordt belang gehecht aan de herkomst en algemene duurzaamheid. Daarnaast zullen alle verbruiken van zowel water, elektriciteit en gas per woning gemonitord worden. Dit laat toe afwijkende verbruiken te detecteren. De warmteproductie van de woningen is collectief uitgevoerd met een condenserende gasketel, aangevuld met een collectieve zonneboiler. De warmte wordt verdeeld via satelietboilers in de woningen. Door bewoners kleine manipulaties toe te laten in de regeling, krijgen ze een sterk verbeterd comfortgevoel.

Bron: www.cenergie.be
Collectief Noord combineert een vertrouwd landschapselement, de hereboerderij, met de functie van sociale woning, en legt zo een nieuw type vast. Het heeft nog het meest weg van de Phalangstère van Fourier, waarin hij het type van paleis aanpast naar een complex van sociale woningen en zoveel mogelijk meerwaardes genereert voor haar bewoners. Maar waarom kiest Collectief Noord voor ‘de herenboerderij’?
“Grondgebonden sociale woningen in het Vlaamse landschap vervagen snel tot verschaalde villawijken of een verkleinde versie van een stadswijk met rijhuizen. Misschien is een meer gepaste typologie die van de herenboerderij. Grote stempels van een tiental woningen ingeplant rond een open groenzone. Pannen, baksteen, houten beplanking, gevelleien en luiken...de beeldtaal van het Vlaamse landschap wordt ingezet om de volumetrie te abstraheren,” aldus het architectenbureau.


Eén van de vier types die voor karaktervol en speels profiel zorgen
De woningen worden dus geïntegreerd in een ruimer landschap van sociale huur- en koopwoningen. Er is daarom gekozen voor een aangepaste bouwvorm waarbij de woningen gegroepeerd worden tot rijwoningen. Zo zullen acht ‘boerderijen’ worden gebouwd. Tussen de entiteiten is er een combinatie van kleine privétuintjes en een collectieve publieke tuin.

Inplanting met de acht eenheden, rechts boven staat de 'passieve boerderij'
Passiefbouwboerderij
Maar ook vanuit energetisch standpunt is het project vernieuwend. Cenergie nam het energie-onderzoek van de wijk op zich. Van de zevenenzestig lage-energie woningen werden er negen passief uitgevoerd. Deze zijn een pilootproject inzake passiefbouw combineren met sociale huisvesting. Tijdens de ontwerpfase werd duidelijk dat het bouwen van sociale passiefwoningen verschilt van een gemiddelde passiefwoning. Zo leidden de eerste berekeningen tot disproportionele isolatiediktes. Omdat sociale woningen algemeen kleiner zijn dan een gemiddelde woning, zijn de warmtewinsten per m2 groter.

4C, onderaan, werd passief uitgevoerd
Door de toepassing van verschillende energetische concepten in identieke gebouwen, kunnen kostprijs, energieprestatie en reële verbruiken van deze energieconcepten vergeleken worden. Omdat elke entiteit uit een groep van meerdere woningen bestaat, kunnen gebruikersafhankelijke parameters gedeeltelijk geëlimineerd worden.

Houten uitbouw aan de gevel
Bij de materiaalkeuzes wordt belang gehecht aan de herkomst en algemene duurzaamheid. Daarnaast zullen alle verbruiken van zowel water, elektriciteit en gas per woning gemonitord worden. Dit laat toe afwijkende verbruiken te detecteren. De warmteproductie van de woningen is collectief uitgevoerd met een condenserende gasketel, aangevuld met een collectieve zonneboiler. De warmte wordt verdeeld via satelietboilers in de woningen. Door bewoners kleine manipulaties toe te laten in de regeling, krijgen ze een sterk verbeterd comfortgevoel.

De gevel werd afgewerkt met duurzame materialen
Bron: www.cenergie.be