Stedelijk wonen, werken en winkelen in één genereus bouwblok (FVWW architecten)
Op het kruispunt tussen de gemeentes Berchem en Mortsel, middenin een industriële site, realiseerde architectenbureau FVWW een wooncomplex met grootstedelijke ambities. Het Zilverkwartier, geflankeerd door de Agfa Gevaert-site en lage woningbouw, gaat harmonieus op in zijn eclectische omgeving, zonder aan identiteit te moeten inboeten. Het alzijdige woonblok met zijn collectieve tuin, supermarkt en herkenbare identiteit faciliteert ontmoeting, uitwisseling en ontwikkeling. Wouter Willems (FVWW): “Het Zilverkwartier reikt de hand naar zijn huidige en toekomstige omgeving en gebruikers.”
Eclectische wijk in transitie
In 2017 klopte projectontwikkelaar RPD bij FVWW aan met de vraag om op een voormalig stuk grond van Agfa Gevaert een supermarkt en 81 wooneenheden te bouwen. “De aanwezigheid van deze industriële site is bepalend voor het ontwerp”, legt architect Frederic Vandoninck (FVWW) uit. “Simultaan met ons ontwerpproces werkte het Nederlandse studiebureau Palmbout Urban Landscape samen met architectenbureau De Smet Vermeulen aan een masterplan voor de volledige Agfa Gevaert-site die zowel op grondgebied Mortsel als Antwerpen ligt.” Binnen dit masterplan vormt het Zilverkwartier de eerste stap in de herontwikkeling van het hele gebied.
Op basis van hun eerste ontwerptekeningen maakten FVWW en Palmbout een stedenbouwkundig model. Dit leidde tot een alzijdig bouwblok, een volume met woonadressen aan de vier zijden. “De reden dat we voor dit type bouwblok kiezen is omdat we willen anticiperen op de toekomstige ontwikkelingen rondom het Zilverkwartier”, verduidelijkt Wouter Willems (FVWW). De activiteiten van Agfa Gevaert worden immers afgebouwd, in de komende jaren zal alsmaar meer industriële infrastructuur transformeren naar woonfuncties. FVWW stond tijdens het ontwerpproces in nauw contact met grote buur Agfa Gevaert, zowel voor technische als logistieke ondersteuning. Johan Verheyen, manager Bouw & Facilitair beheer bij Agfa Gevaert, blikt met plezier terug op de samenwerking en is blij met het eindresultaat:
"FVWW is er in geslaagd om aan stadsplanning te doen op een uitdagende plek: in de schaduw van een grote industriële site en naast oude eengezinswoningen. Het ontwerp maakt een geslaagde overgang van de kleinschalige bebouwing naar de grote volumes aan de overliggende zijde. Het naar binnen gekeerde ontwerp met een grote binnentuin bovenop de winkel, creëert een sfeer van rust voor bewoners en bezoekers."
Veelheid aan woningtypes als motor voor sociale gelaagdheid
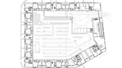
De supermarkt neemt zo’n 3.500m² in beslag en de wooneenheden 10.000m². In totaal bedacht FVWW een twintigtal woningtypes. Aan de zuidkant heb je de kleinere woontypes met telkens een schuin georiënteerde loggia waardoor je vanop het terras een frontaal en zijdelings zicht krijgt. Op het tweede verdiep heb je doorzonwoningen met een stukje private tuin, die grenst aan de collectieve tuin. Op de hoek zitten duplexwoningen over twee lagen. Boven de ingang van de supermarkt bevinden zich woningen met een galerij-ontsluiting. In de toren zitten er vier typologieën, een doorzonwoning in het midden, hoekwoningen met drie oriëntaties en op de bovenste verdiepen nog vier duplexpenthouses. De kleinste units zijn 60m² en de grootste 130m². Wouter Willems: “De twintig verschillende woontypologieën binnen het Zilverkwartier zorgen ervoor dat het project heel wat sociale gelaagdheid toelaat.”
Alzijdig bouwblok
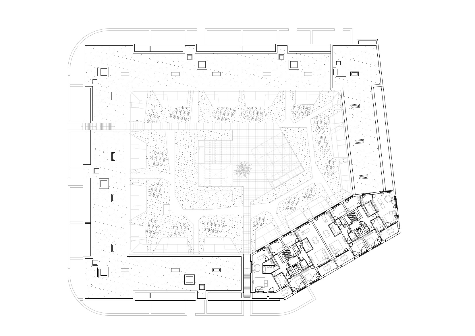
De basis van het ontwerp is een alzijdig bouwblok met adressen aan alle zijden en een geïntegreerde supermarkt als doos binnenin het blok. Willems: “Dit is belangrijk om connectie te maken met de toekomstige ontwikkelingen op de site waarbij de industriële activiteit van Agfa Gevaert op termijn verdwijnt en plaatsmaakt voor ander functies zoals wonen. De gevels van het Zilverkwartier zijn een uitnodiging naar toekomstige projecten op de site.” De omgeving rond het Zilverkwartier kent een grote verscheidenheid aan typologieën. Op de hoek aan de overkant heb je het Agfa Gevaert-gebouw van negen bouwlagen, opgetrokken ten tijde van expo ’58. Het heeft twee enorme blinde gevels en een modernistisch paviljoen op het dak.
"Ontwikkelingen op de Agfa Gevaert-site moeten aansluiting kunnen vinden op het alzijdige bouwblok. De open gevels, de publieke toegangen tot de daktuin en de groene en autovrije zones van het Zilverkwartier zijn in die zin een uitnodiging naar huidige en toekomstige buren."
In schril contrast staan de kleinere buren aan de zuidkant, variërend van woningen van maar één tot anderhalve bouwlaag tot kleine appartementsgebouwen van vijf bouwlagen. “Om aansluiting te vinden met de zeer verschillende types van bebouwing, hebben we een volume gemaakt dat rondom variërende hoogtes heeft”, legt Wouter Willems uit. “Op de hoek telt het negen bouwlagen zodat het dialogeert met het even hoge Agfa Gevaert-gebouw aan de overkant. Vermits we daar voldoende resterende publieke ruimte in de vorm van een park kunnen voorzien, is zo’n hoogte te verantwoorden.”
Aan de kant waar de ingang van de supermarkt is, heeft het gebouw vier bouwlagen om aan te sluiten bij de historisch gegroeide hoogte aan de zuidkant van het project. Willems: “Waar we aan de straatzijdes van het gebouw werken met eerder vlakke gevels, passen we aan de verkeersluwe kant een verschaling met een zekere ritmiek toe. De teruggetrokken bouwlagen creëren aan de achterkant een autoloze woonstraat. “Doordat we voor een alzijdig bouwblok hebben gekozen, wordt de werking van de supermarkt volledig geïnternaliseerd. De supermarkt is in feite een doos die geen daglicht nodig heeft. Maar blinde gevels willen we kost wat kost vermijden. We ontwikkelen een bouwblok in een stedelijk weefsel. Om daarmee connectie te kunnen maken, moet je alle gevels activeren.”
Het resultaat is een gebouw zonder achtergevels waarbij de volledige logistieke afhandeling van de supermarkt intern het bouwblok gebeurt. Het is een woonomgeving, dus naar veiligheid toe is het belangrijk dat er zo weinig mogelijk logistieke manoeuvres aan de buitenkant plaatsvinden. Willems: “Het ontwerp is eigenlijk best eenvoudig, je hebt een dikke gevel die rondom een supermarkt is opgetrokken. We vergelijken het graag met Middeleeuwse kerken waarrond woningen en handelspanden werden gebouwd.”
De circulatie in de woongedeeltes en die van de supermarkt verlopen quasi gescheiden. De toegang tot de woningen is individueel georganiseerd aan de vier zijden van het gebouw en staat dus los van de supermarkt. Voor de supermarkt voorziet FVWW een aparte royale entree langs de Oogststraat, met directe toegang tot een fietsenstalling. Dit is eveneens de toegang tot de ondergrondse garage voor de klanten, de logistieke in- en uitgang voor vrachtwagens én de toegang tot de parking van de bewoners.
"Door de logistieke werking van de supermarkt transparant te maken, creëren we verbintenis tussen bewoners, klanten en personeel. Het zorgt voor wederzijdse erkenning en generositeit."
Activerende gevels als uitnodiging voor huidige en toekomstige buren
Net als alle projecten van FVWW kent het Zilverkwartier een sterke belevingsfactor. “Een wandeling”, noemt Wouter Willems het. “We steken veel tijd in het nadenken over hoe een gebouw zich prijsgeeft. Hier gebeurt dat geleidelijk, je beleeft de overgang tussen de verschillende gevels heel subtiel.” Voor de uitstraling van het gebouw haalde FVWW inspiratie bij de omliggende bebouwing, zowel de Agfa Gevaert-gebouwen als de woningen wat verderop. Willems: “We hebben gekozen voor een redelijk strenge architectuurtaal met een regelmatige ritmiek in de gevels, waardoor het geheel aansluit bij zijn omgeving. De beleving van de gevel is erg belangrijk.”
Als materialen koos FVWW voor wit metselwerk en benzeen-groen geglazuurde bakstenen. Vandoninck: “De groen-witte belijning kenmerkt de gevel en maakt de connectie met de herenhuizen wat verderop in de straat.” Het creëert een gevoel van schaalvergroting. Bijkomend lijkt het gebouw minder massief en krijgt het een eigen identiteit. Je ziet de benzeen-groen geglazuurde bakstenen op de tuinmuren, de deurportalen, de publieke toegangen. Ze zorgen voor continuïteit en uniformiteit in een gelaagde gevelcompositie waar hier en daar een schaalsprong in zit. Willems: “In het geglazuurde metselwerk zit een groot contrast tussen het diepgroene en het witte. Maar als de zon rakelings op de gevel valt, verdwijnen die kleuren. Het wordt echt een gladde spiegel.”
Diversiteit en uniformiteit leiden tot identiteit
In het uniforme geheel van het bouwblok geven de architecten aan elke wooneenheid een aparte identiteit. Zo heeft elk woningtype een andere brievenbus. De gevelperspectieven worden hier en daar doorbroken, wat een zeker ritme teweegbrengt. Het maakt dat het nieuwe bouwblok verteerbaar wordt en makkelijker aanvaard door zijn omgeving. Het gebouw verwatert als het ware in zijn omgeving. Willems: “De collectieve tuin, de verschillende entrees en brievenbussen, de kenmerkende belijning in de gevel… Het Zilverkwartier heeft heel wat eigenschappen die ervoor zorgen dat bewoners er zich makkelijk mee kunnen identificeren.”
"Diversiteit in volumetrie en materialiteit, dat is de grote troef van dit project. Het is een massief gegeven dat aanleiding geeft tot een stad, maar het stelt zich tegelijkertijd bescheiden op."
Collectieve daktuin, de ultieme ontmoetingsplek
De woningen die zich op niveau van de collectieve tuin bevinden, beschikken over een privaat terras dat gemeenschappelijk is geïntegreerd. Plantenbakken en subtiele materiaalverschillen zorgen voor de overgang tussen privaat en collectief. Alle kernen hebben een directe aansluiting met de tuin. In de toren gaat iedereen door dezelfde deur om naar de tuin te gaan. Frederic Vandoninck: “Alle bewoners hebben een directe toegang tot de collectieve tuin, het hart van het project. Tegelijkertijd zijn er ook twee connecties met de publieke ruimte. Dit vonden we belangrijk, het verhoogt de interactie tussen de verschillende bewoners én omwonenden.”
Om de tuin te realiseren werd er een grondlaag aangelegd van wel een meter dik. Dit maakt dat er grotere gewassen als struiken en bomen kunnen groeien. De tuin bevat ook twee grote serres. De ene serre dient als ontmoetingsplek om bijvoorbeeld samen te eten, de andere om te tuinieren. Vandoninck: “Het spontane aperitiefmoment dat de bewoners maandelijks organiseren, is voor ons het mooiste compliment.” De tuin en de verkeersluwe zones rond het Zilverkwartier zijn belangrijk om tegemoet te komen aan de wens in het masterplan om de doorwaadbaarheid te garanderen. Ook in de groene ruimte tussen het Zilverkwartier en de aanpalende bewoning heeft FVWW serres met een publiek karakter voorzien, om ook daar de kans op ontmoeting te vergroten. De serres worden door buurthuis Posthof beheerd en passen binnen hun filosofie om lokale en duurzame voedselproductie aan te bieden. Buurtbewoners zijn welkom om de moestuinen te gebruiken.
"FVWW is er in geslaagd een ontwerp te realiseren dat het groen zeer dicht bij de bewoners brengt en de gewenste hoge woonkwaliteit op een bijzonder creatieve manier invult. Hét voorbeeld bij uitstek is de centrale daktuin, een op het eerste zicht verborgen oase die voor een belangrijke meerwaarde zorgt en maakt dat het project zich verder onderscheidt."
Restwarmte als circulaire troef
Het warmtenet vormde een grote uitdaging waar FVWW heeft kunnen pionieren. Heel het residentiële gedeelte wordt verwarmd via de restwarmte uit het productieproces van aanpalende grote buur Agfa Gevaert. Wouter Willems: “De ontwikkeling van het warmtenet was een complex traject met veel betrokken factoren. Maar het is uiteindelijk gelukt en het mooie is dat de kostprijs niet hoger ligt dan de klassieke alternatieven.
"In plaats van het klassieke scenario waarbij elke bewoner zijn unit verwarmt met een eigen gasketeltje, hebben we een duurzaam verhaal met gerecupereerde restwarmte kunnen realiseren."
Naar een meer collectieve manier van wonen
“We zijn blij dat we met dit project kunnen bijdragen aan een maatschappelijke evolutie”, zegt Wouter Willems. Met dit project toont FVWW dat architectuur kansen kan maken voor huidige en toekomstige generaties. Het faciliteert mogelijkheden tot ontmoeting, ontwikkeling, uitwisseling. Het Zilverkwartier is kenmerkend voor de visie van de architecten, architectuur maken die niet dominant is en de hand reikt naar haar huidige en toekomstige omgeving. Willems: “Het Zilverkwartier bewijst dat een supermarkt niet per se in de periferie moet liggen, maar ook perfect geïntegreerd kan worden in een stedelijk weefsel waar wonen en werken harmonieus samengaan.”
"We moeten meer collectief gaan wonen, functies durven mixen en verbindingen maken met de publieke ruimte. Het Zilverkwartier heeft het allemaal."
 
			 
                             
                             
                             
                             
                             
                             
                             
                             
                             
                             
                             
                             
                             
                             
                             
                             
                             
                             
                             
                             
                             
										 
										 
										 
										 
										 
										