Tijdloze woning in een stukje natuur

  • image
  • image
  • image
  • image
  • image

Plano Architecten ontwierp voor een gezin in Heusden, Destelbergen een nieuwe woning. In hun ontwerpen staat de mens centraal. Het belangrijkste vertrekpunt is altijd diegene die uiteindelijk in de woning zal moeten wonen. Daarnaast hoeft een woning niet heel strak te zijn, maar moet deze eerder veel aankunnen en mag het wel wat ruwer. Deze werkwijze vinden we ook terug in deze woning.

Bij dit project werd niet alleen nagedacht over het huis, maar werd ook de tuin in het ontwerp opgenomen. Op deze manier is het niet zomaar een huis, maar staat het in een wilde tuin zodat het een mysterieuzere uitstraling krijgt. Het huis wordt gedragen door een trappenpartij en door de sokkel in een ander materiaal dan de gevel te steken, krijgt het gebouw een voet.

 

Tijdloosheid

Om een tijdloze uitstraling te verkrijgen, werkt Plano Architecten met linken naar het verleden, maar proberen ze toch een link te leggen met hedendaagse architectuur. Het huis heeft een industriële look dankzij het gebruik van staal, een luifel en penanten. De kroonlijst is ook een belangrijk onderdeel. Deze bestaat uit een materiaal dat veel gebruikt werd in het Interbellum.

 

Eenvoud

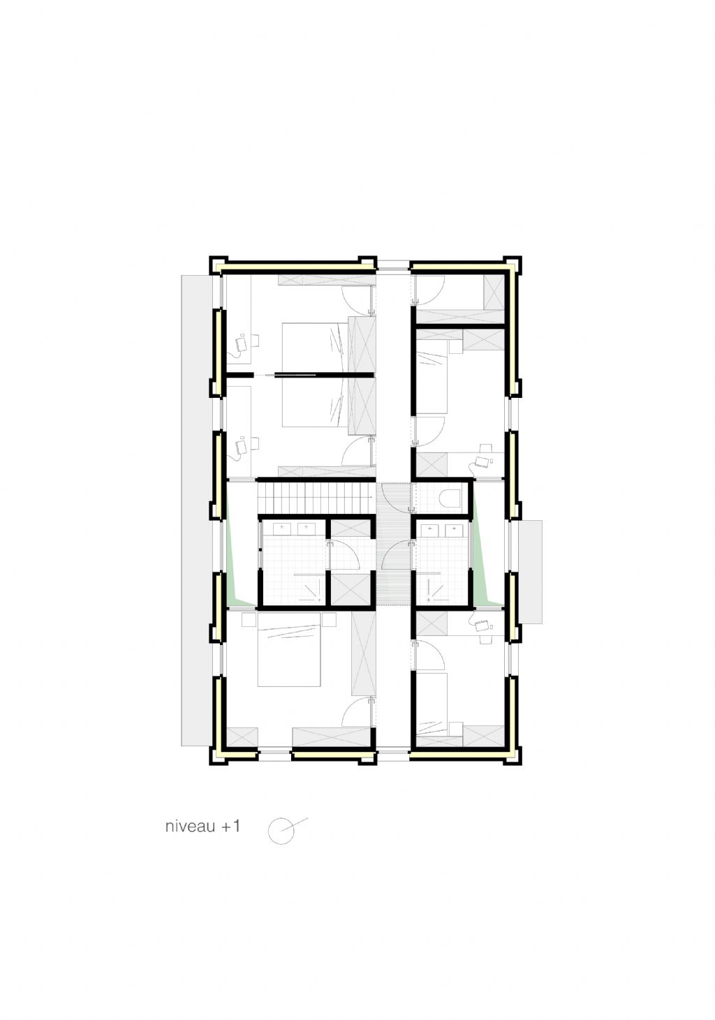
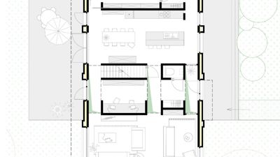
Het is belangrijk dat de woning verschillende schalen en belevingen aankan. Het moet een voldoende grote woning zijn voor een gezin met vier kinderen, maar mag niet het gevoel geven overdadig te zijn wanneer de kinderen er niet zijn. De woning heeft daarom een eenvoudig volume. Het is een grote doorlopende ruimte zonder muren tot aan de wand. Op die manier kijken de bewoners nooit op een dode muur. Door de ramen op regelmatige basis altijd te laten terugkomen, creëren ze zichtassen.

In het grote volume plaatsen de ontwerpers een kleiner volume dat door de twee verdiepingen loopt waarin alle circulatie en technieken inzitten. Binnen het open plan zijn er hoekjes waar de bewoners even tot rust kunnen komen.

  • Deel dit artikel

Onze partners