TM URA ALTSTADT ontwerpt cultuur- en jeugdsite Sint-Andries met open agora en groene doorsteek

  • image
  • image
  • image
  • image
  • image
  • image
  • image
  • image
  • image
  • image
  • image
  • image

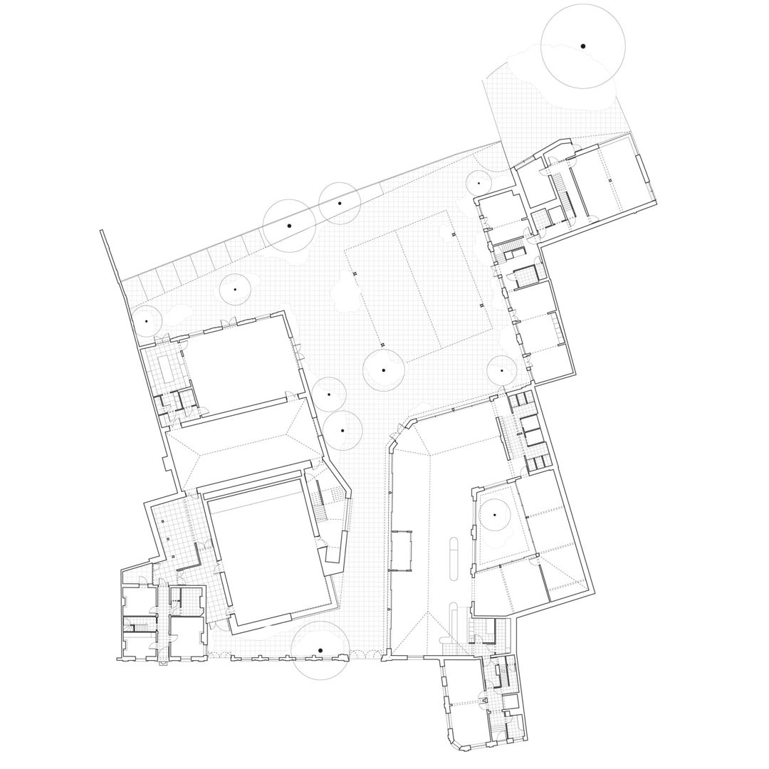
Begin maart zijn in het centrum van Antwerpen de werken gestart aan de cultuur- en jeugdsite Sint-Andries, een project van TM URA ALTSTADT (URA Yves Malysse Kiki Verbeeck & ALTSTADT office for architecture) in opdracht van AG Vespa. De ingreep combineert renovatie, restauratie en nieuwbouw en moet de historische CoSTA-site transformeren tot een hedendaags, gedeeld huis voor cultuur en jeugd in de wijk. Het ontwerpteam wordt vervolledigd door Bureau Bouwtechniek, Kollektif landscape, Tech 3, Bollinger+Grohmann en Daidalos Peutz.

Na een periode van sluiting wordt de meer dan 3.100 vierkante meter grote site opnieuw geactiveerd met een breed programma waarin stedelijke diensten, verenigingen en buurtbewoners samenkomen. Tegen 2028 moet de vernieuwde site uitgroeien tot een centrale ontmoetingsplek, met werk- en leesplekken, ateliers, een bibliotheek, een radiostudio en diverse presentatieruimtes, georganiseerd rond gedeeld gebruik en samenwerking.

Een gelaagde site herordend

De ontwerpers vertrekken van een complex en historisch gegroeid geheel van gebouwen, variërend van waardevol erfgoed tot latere toevoegingen en tijdelijke structuren. In plaats van een uniforme ingreep kiezen ze voor een selectieve aanpak: behouden wat betekenisvol is, verwijderen wat overbodig is en aanvullen met nieuwe volumes die het geheel herstructureren zonder het karakter te homogeniseren.

Die strategie vertaalt zich in het behoud en de renovatie van onder meer de grote en kleine hangar, de voormalige turnzaal, de oude paardenstallen en de woningen aan de Sint-Andriesplaats. Tegelijk verdwijnen versnipperde bijgebouwen en maken ze plaats voor twee nieuwe volumes die zich naast het bestaande patrimonium positioneren en samen een leesbaar en samenhangend geheel vormen.

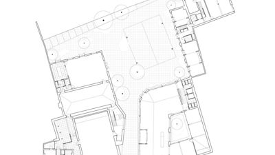
Een agora als ruimtelijk en sociaal hart

Centraal in het ontwerp staat een grote multifunctionele ruimte die volgens het agora-principe is opgevat. Hier vloeien functies zoals bibliotheek, foyer, verenigingenhub, webpunt en ateliers samen in één gedeelde ruimte, die informeel gebruik stimuleert en kruisbestuiving tussen verschillende gebruikers mogelijk maakt.

Deze binnenruimte krijgt een pendant in de buitenruimte, waar een groene, publieke plek ontstaat die eveneens als ontmoetingsruimte fungeert. Samen vormen ze het kloppend hart van de site, waar informatie, cultuur, dienstverlening en ontmoeting elkaar versterken en waar verschillende doelgroepen elkaar vanzelfsprekend kruisen.

Doorsteek als ruggengraat van het project

Een nieuwe publieke passage vormt de ruimtelijke ruggengraat van het project en verbindt de Sint-Andriesplaats met de Prekersstraat. Deze doorsteek organiseert niet alleen de circulatie, maar geeft ook elke functie een duidelijk adres langs een herkenbare as, waardoor de leesbaarheid van het voorheen versnipperde geheel sterk verbetert.

Overdag wordt deze route een open verbinding doorheen het bouwblok, terwijl ze ’s avonds afsluitbaar is. De ingreep maakt van het binnengebied geen afgesloten enclave meer, maar een actieve schakel in het stedelijk weefsel, met een duidelijke relatie tot de omliggende buurt en publieke ruimte.

Ruimte voor jeugd, cultuur en talentontwikkeling

Het programma zet sterk in op jeugdwerking, met specifieke ‘nestruimtes’ waar jongeren zich veilig en thuis kunnen voelen. De site functioneert tegelijk als een open leeromgeving, met aandacht voor competentieontwikkeling, leesplezier en digitale geletterdheid, en een aanbod dat varieert van laagdrempelige ondersteuning tot workshops en opleidingen.

Daarnaast wordt de site uitgebouwd als creatie- en presentatieplek met polyvalente zalen voor muziek, theater en buurtactiviteiten. Zo wordt ze een belangrijke schakel binnen het Antwerpse podiumlandschap, met ruimte voor zowel amateurkunst als kleinschalige producties en participatieve trajecten die de betrokkenheid van de buurt versterken.

Nieuwbouw met technische precisie

De twee nieuwe gebouwen voegen niet alleen ruimte toe, maar introduceren ook specifieke technische oplossingen, zoals het ‘box-in-box’-principe voor de akoestische isolatie van muziekzalen. Vrijstaande structuren binnen de gebouwschil zorgen ervoor dat geluid gecontroleerd blijft zonder de omgeving te belasten.

Op het vlak van duurzaamheid kiest het project resoluut voor een fossielvrije werking, met geothermische warmtepompen voor verwarming en passieve koeling, zonnepanelen en energiezuinige installaties. Ook de bestaande gebouwen worden grondig geïsoleerd en aangepast aan hedendaagse normen, zonder hun erfgoedwaarde aan te tasten.

Een onthard en klimaatbestendig binnengebied

Het volledig verharde binnengebied maakt plaats voor een uitgesproken groen landschap, waarin minstens de helft van de oppervlakte wordt onthard. Strategisch geplaatste bomen en plantvakken zorgen voor schaduw en verkoeling, terwijl het spel tussen verharde en onverharde zones een gevarieerd en levendig beeld oplevert.

Waterbeheer wordt integraal meegenomen via open voegen tussen de bestrating en infiltratie in de bodem. De robuuste, onderhoudsarme groenaanleg draagt bij aan een klimaatbestendige inrichting en maakt van het binnengebied een aangename verblijfsruimte voor gebruikers en buurtbewoners.

Architectuur als kader voor gedeeld gebruik

De architectuur van TM URA ALTSTADT zet sterk in op transparantie, permeabiliteit en informele ruimtegebruik. Nieuwe en bestaande volumes worden niet hiërarchisch geordend, maar vormen samen een flexibel kader waarin verschillende activiteiten naast en door elkaar kunnen plaatsvinden.

Door functies te laten overlappen en ruimtes te delen, ontstaat een gebouw dat niet alleen efficiënt is in gebruik, maar ook sociale interactie stimuleert. Het project vertaalt zo een programmatische ambitie – samenwerking en gedeeld gebruik – naar een ruimtelijke logica die ontmoeting vanzelfsprekend maakt.

Een lange geschiedenis, een nieuwe toekomst

De site, die al sinds de 18de eeuw in gebruik is en decennialang dienstdeed als onder meer reinigingsdienst en cultureel centrum, krijgt met deze ingreep een nieuwe toekomst zonder haar gelaagde geschiedenis uit te wissen. De combinatie van restauratie en hedendaagse toevoegingen maakt die continuïteit expliciet leesbaar.

Met de start van de werken begint een transformatie die niet alleen architecturaal, maar ook sociaal en stedelijk van betekenis wil zijn. De cultuur- en jeugdsite Sint-Andries wordt zo opnieuw een ‘living’ voor de buurt: een open huis waar verleden en toekomst, erfgoed en experiment, samenkomen in een gedeelde ruimte voor de stad.

Bron AG Vespa & TM URA ALTSTADT

  • Deel dit artikel

Onze partners