Tony Fretton ontwerpt stadhuis Deinze
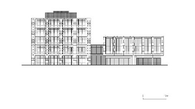
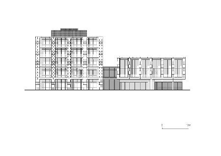
Tony Fretton Architects heeft het ontwerp gemaakt van het nieuwe stadhuis van Deinze. Het gebouw huisvest de kantoren van alle afdelingen van de gemeente en een grote raadszaal. Het vijf verdiepingen tellende gemeentegebouw wordt vlakbij het centrum van Deinze gerealiseerd aan de rivier de Leie en aan de rand van het Kaandelpark. De raadzaal wordt in een apart gedeelte van het gebouw gehuisvest. In dit gedeelte bevindt zich tevens de publieke entree. De openbare ruimte rond het pand wordt ingericht door architecte Marie-José van Hee in samenwerking met Robbrecht & Daem. De bouw van het stadhuis start begin 2013.
Tony Fretton Architects heeft het ontwerp gemaakt van het nieuwe stadhuis van Deinze. Het gebouw huisvest de kantoren van alle afdelingen van de gemeente en een grote raadszaal. Het vijf verdiepingen tellende gemeentegebouw wordt vlakbij het centrum van Deinze gerealiseerd aan de rivier de Leie en aan de rand van het Kaandelpark. De raadzaal wordt in een apart gedeelte van het gebouw gehuisvest. In dit gedeelte bevindt zich tevens de publieke entree. De openbare ruimte rond het pand wordt ingericht door architecte Marie-José van Hee in samenwerking met Robbrecht & Daem. De bouw van het stadhuis start begin 2013.


Bron: Architectenweb.nl


Bron: Architectenweb.nl