Transformatie brutalistische Cinzano-fabriek tot sociaal woonproject Belgrade in volle gang (&bogdan)
In de Brusselse wijk Wiels/Senne vorderen de werken aan het project Belgrade, een ontwerp van architectenbureau &bogdan. Het project maakt deel uit van een breder revitaliseringsprogramma in de buurt en zet in op de renovatie en herbestemming van een oude Cinzano-fabriek. Sinds de jaren zeventig springt het brutalisme van het gebouw in het oog tussen zijn omgeving, als een stoere, eigenzinnige aanwezigheid in het stadsbeeld. Vandaag krijgt het pand een nieuwe toekomst als sociale huisvesting, zonder zijn oorspronkelijke karakter te verliezen.
Het ontwerpteam grijpt de verbouwing aan als een kans om het gebouw opnieuw te verankeren in zijn context en tegelijk zijn eigenzinnige identiteit te respecteren. "We voegen toe of nemen weg waar nodig, maar blijven trouw aan de kernwaarden van het oorspronkelijke ontwerp," zegt architect en zaakvoerder Oana Bogdan. Kleine en grotere ingrepen zorgen ervoor dat het gebouw opener, lichter en toegankelijker wordt, zonder te vervallen in cosmetische verfraaiing.
Robuuste ziel
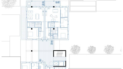
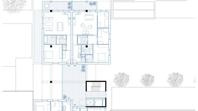
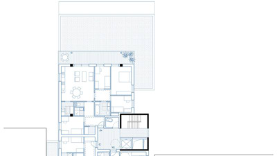
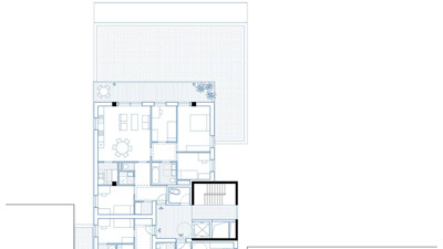
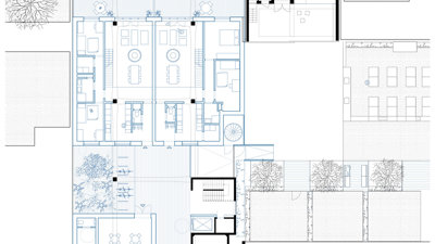
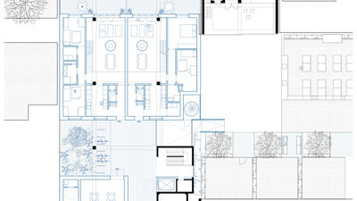
Centraal in de ingreep staat de creatie van een grote, overdekte patio midden in het bouwvolume, een slimme zet die zowel praktisch als sociaal van belang is. Deze 'Cinzano patio' brengt natuurlijk licht diep in het gebouw en zorgt tegelijk voor een nieuwe ordening van de woningen rond een gedeelde, beschutte buitenruimte. Hier kunnen bewoners hun fiets parkeren, een praatje slaan of kinderen laten spelen, zelfs bij regenachtig weer – een luxueus collectief bezit midden in de stad. De patio vormt bovendien een vloeiende overgang naar de gemeenschappelijke tuin op het naastgelegen perceel.
Een belangrijk uitgangspunt in het project is het respect voor de bestaande structuur, die het gebouw zijn robuuste ziel geeft. De betonnen ruwbouw, oorspronkelijk ontworpen om meer dan een eeuw mee te gaan, blijft volledig behouden en vormt het onverwoestbare geraamte van de nieuwe woonplek. Volgens Oana Bogdan weerspiegelt dit een bewuste duurzame visie: "We willen dat het hoofdstuk dat wij vandaag schrijven de toekomstige ontwikkelingen van dit gebouw niet in de weg staat." De nieuwe ingrepen zijn daarom doordacht, lichtvoetig en reversibel.
Intelligent herschrijven
Ondanks de nodige aanpassingen blijft de geest van het originele fabrieksgebouw tastbaar aanwezig in elke vezel van het project. Nieuwe volumes worden zorgvuldig ingeplant zonder het robuuste karakter van de structuur te verzwakken, en kleine schakelingen in het plan versterken het gebruikscomfort zonder het gebouw te domesticeren. In het ontwerp schuilt een subtiele balans tussen erfgoedwaarde en hedendaagse woonkwaliteit, tussen de rauwheid van beton en de zachtheid van nieuwe ontmoetingsplekken.
Belgrade is zo meer dan een voorbeeldige renovatie: het project maakt op overtuigende wijze duidelijk dat toekomstbestendige stadsontwikkeling niet draait om tabula rasa, maar om het intelligent herschrijven van wat er al is. Door te kiezen voor subtiliteit, respect en verbeeldingskracht bewijst &bogdan dat zelfs een brutale erfgenaam uit de jaren zeventig vandaag de motor kan worden voor een nieuw stedelijk verhaal.
 
			 
                             
                             
                             
                             
                             
                             
                             
                             
                             
                             
                             
                             
                             
                             
                             
                             
                             
										 
										 
										