Tuinwijk Diksmuide: sociaal en gestapeld wonen met doordachte oplossingen voor fiets en auto (Polygoon Architectuur)

  • image
  • image
  • image
  • image
  • image
  • image
  • image
  • image
  • image
  • image
  • image
  • image
  • image
  • image
  • image
  • image
  • image
  • image
  • image
  • image
  • image
  • image
  • image
  • image
  • image
  • image
  • image
  • image
  • image

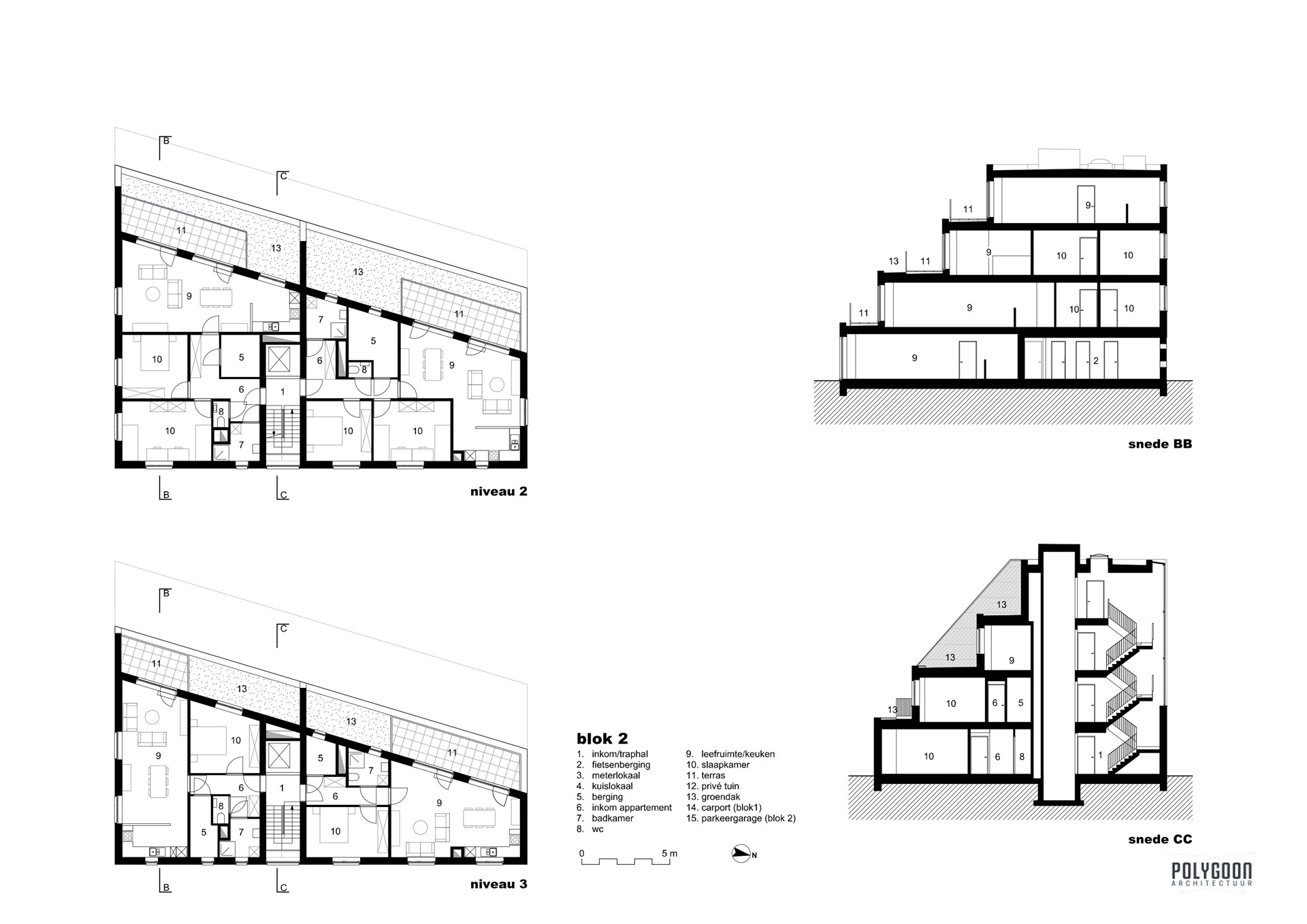
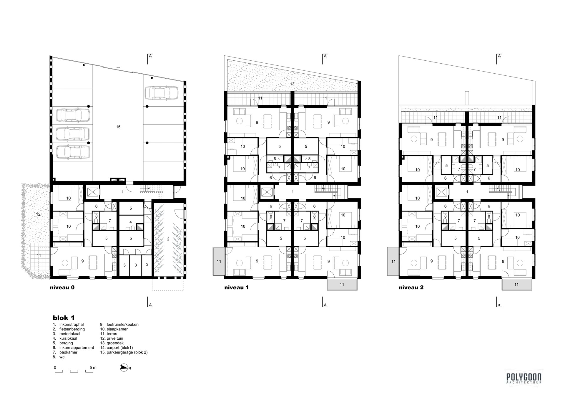
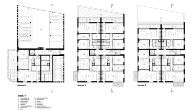
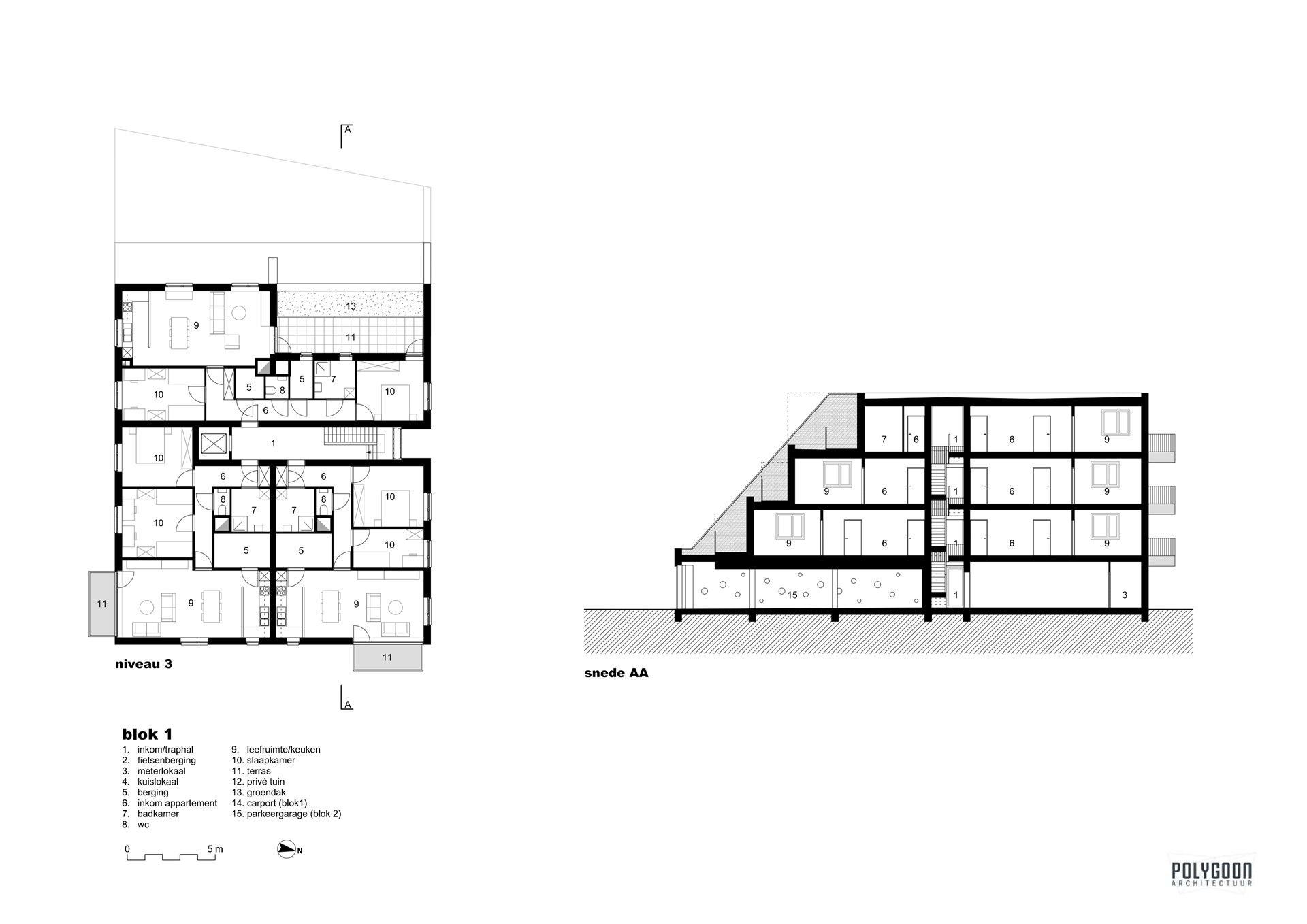
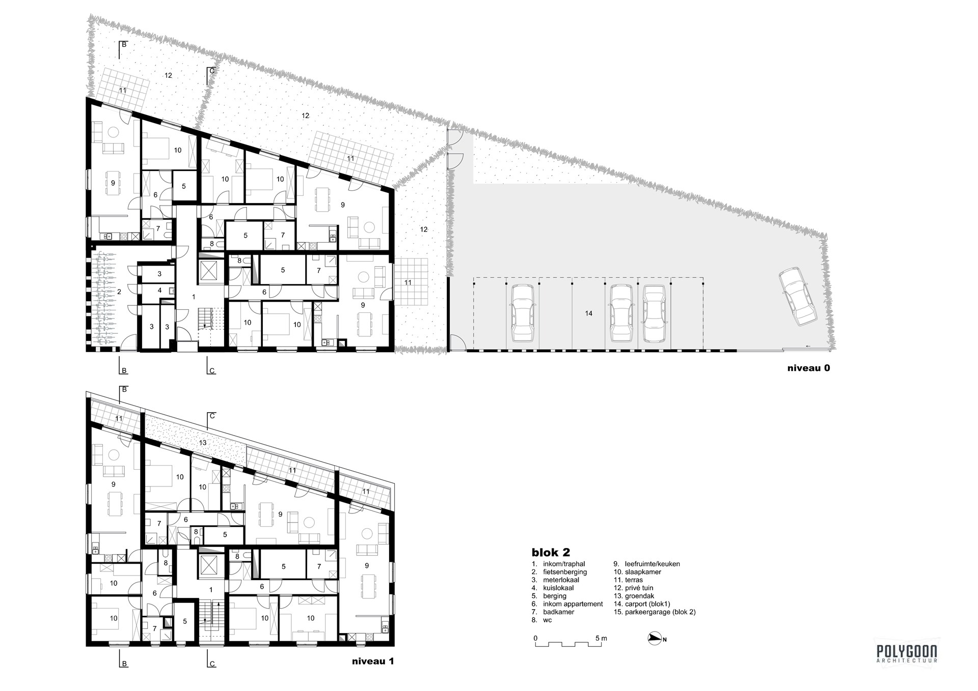
Gelegen vlakbij het centrum van Diksmuide beklemtonen twee stoere blokken de toegang naar het verkavelingsproject ‘Tuinwijk’, volgens de lokale overheid het laatste inbreidingproject in de stad, op een groot onbebouwd terrein grenzend aan een bestaande groene tuinwijk. De nieuwe verkaveling bestaat uit een traditioneel ensemble van (half)open en gesloten bebouwing: woningen met twee bouwlagen en zij- en voortuintjes waarin de wagen wordt geparkeerd. De eerste gebouwde woningen in de wijk verraden alvast een straatbeeld dat gedomineerd zal worden door wagens, carports en garagepoorten, uitgesmeerd langs de nieuwe straten. De twee sociale woningbouwvolumes van Polygoon Architectuur, met in totaal 22 appartementen, gemeenschappelijke fietsbergingen, parkeergarage en carport, gaan radicaal anders om met de vraag naar huisvesting.

De appartementen worden immers zeer compact gestapeld. Hierdoor kan er open ruimte vrijgemaakt worden tussenin de bebouwing, die publiek domein wordt, ondanks het relatief kleine perceel. Dit stedelijk pleintje aan de westzijde van de verkaveling, vervolledigt twee andere publieke zones gelegen in het midden en het oostelijk deel van de wijk.

 

Uitgekiende raamcomposities

Elke woongelegenheid strekt zich uit over meerdere gevels met mooie zichten en heeft een ruime, zonnige, private buitenruimte. Hoewel vele appartementen dezelfde indeling hebben, zijn de uitgekiende raamcomposities niet repetitief. Zo is niet alleen elk appartement anders, maar zijn de gevels ook vrijer, minder gedisciplineerd en geen letterlijke interpretatie van de binnenindeling.

Detail: het gevelmetselwerk volgt de contouren van de gevels; een halfsteens verband bij de gevels met platte daken en een klezorenverband waar de dakrand schuin afloopt. Beide inkompartijen doorsnijden de volumes en worden benadrukt met duifblauw schrijnwerk, waardoorheen de trappenhal zichtbaar wordt die in dezelfde materialen is uitgevoerd als de balkons met balustrades. Binnenin geven roodbruine accenten in combinatie met houten afwerkingen warmte aan de leefruimtes.

 

Integratie van fiets en auto

De bakstenen volumes rusten op een betonnen plint, waarachter de fietsenbergingen en parkeerplaatsen zijn gelegen. Een belangrijk aspect in het ontwerp is de integratie van de fiets en de auto in het gebouw. Hoe kunnen we zo doordacht mogelijk de auto uit het straatbeeld onttrekken, zonder een dode plek te creëren?

Ronde openingen in het prefabbeton wekken de nieuwsgierigheid op van voorbijgangers, en maken een interactie tussen hen en de bewoners mogelijk. Er ontstaat een dynamiek en levendigheid tussen het private en het publieke. Het is een interessante zoektocht naar hoe we kunnen voldoen aan de parkeerbehoefte én auto’s op een originele manier uit het straatbeeld kunnen krijgen, zonder dat het een uitgegraven put of afgesloten ruimte is. Geen blinde muren, maar een permeabele grens tussen publiek en privaat.

Bron Polygoon Architectuur

  • Deel dit artikel

Onze partners