Contactformulier

ABSCIS ARCHITECTEN

Van oude schoolsite tot collectief woonproject: Abscis Architecten, plusoffice architects en LAND landschapsarchitecten hertekenen Mudakkers in Lommel

  • image
  • image
  • image
  • image
  • image
  • image
  • image
  • image
  • image
  • image
  • image
  • image
  • image
  • image
  • image
  • image
  • image

Abscis Architecten, plusoffice architects en LAND landschapsarchitecten hebben de handen in elkaar geslagen voor het stadsvernieuwingsproject Mudakkers in Lommel. Het project  - in opdracht van projectontwikkelaars Kolmont en DCA - omvat de reconversie van een voormalige schoolsite in het centrum van Lommel naar een collectief woonproject met één- en meergezinswoningen, publiek- en buurtgerichte voorzieningen, een nieuw buurtpark en een publieke ondergrondse parking. Het PPS-project beoogt het centrum van het voormalige dorp te versterken en te transformeren naar een kwalitatieve leefomgeving met de densiteit en voorzieningen van de stad, maar ook met de nodige open ruimte die zuurstof geeft aan het centrum. Arcade staat in voor de studies stabiliteit en technieken.

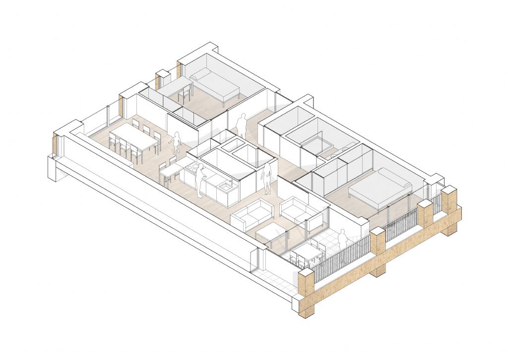
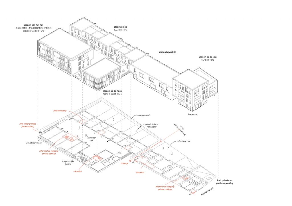
Het PPS-project Mudakkers is een combinatie van wonen en diensten in een groene omgeving. Het project bundelt een ruim zorgaanbod, een kinderopvang, 60 woningen en een nieuw buurtpark boven een publieke ondergrondse parking voor 250 wagens, middenin het centrum.

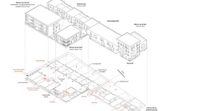
Qua morfologie worden naargelang de ruimtelijke context 2 zones onderscheiden: het ‘stadsblok’, dat qua schaal dichter aanleunt bij de stadskern en de grote omliggende schoolcomplexen, en de ‘cluster’, die de overgang maakt naar de kleinschaliger bebouwing van de stadsrand.

Zone ‘stadsblok’ is opgevat als een aaneengesloten bouwvolume, versneden in entiteiten op schaal van het binnengebied, dankzij een variatie in bouwhoogtes en dwarse doorgangen op het gelijkvloerse niveau. Een doorlopende bebouwing van 2 tot 3 bouwlagen vormt de basis van het stadsblok en de omsluiting van het collectieve binnenhof, waar alle toegangen tot de woningen zich bevinden. Aan de Mudakkers vormt een ‘optopping’ met 2 extra bouwlagen met penthouses een hoekaccent op de kop van het bouwblok. 

De gebouwen in zone ‘cluster’ vormen de overgang tussen de stedelijke bebouwing aan de Kerkstraat en de vrijstaande woningen in de Prins Alexanderstraat. Twee verschillende gebouwtypes – de rijtjeshuizen en de compacte woongebouwen – staan gegroepeerd rond een centraal collectief terras. Naar de Kloosterstraat toe sluit het rijtje aan op het kinderdagverblijf en eindigt zo in een forser kopgebouw.


Gezonde, duurzame leefomgeving

Het is een kernversterkend project, met een gevarieerde mix van woningtypes, dienstverlenende (zorg-)functies en buurtgerichte voorzieningen zoals een kindercrèche en huisartsenpraktijk, georganiseerd rond een nieuw publiek park en boven een publieke ondergrondse stadsparking voor 250 wagens. De publieke ruimte op de site is volledig autovrij en ontworpen als 1 continu park of groene wandeling doorheen het bouwblok, met speel-, rust- en ontmoetingsplekken voor zowel de bewoners, de aanpalende scholen, de buurt en de bezoekers van het stadscentrum. Een gezonde en duurzame leefomgeving staat voorop. Onder het motto ‘kansen zonder verplichtingen’ creëert het project ook synergiën en mogelijkheden tot gedeeld ruimtegebruik met de scholen. Zo vormen het park en de aangrenzende speelplaatsen in feite één grote, open speelruimte en krijgen de scholen via het park een veilige, verkeersvrije toegang, terwijl de ondergrondse parking -met toegangen naast de speelplaatsen- de scholen ook vlot bereikbaar houdt met de auto.
 

Participatie

Het PPS-project omvat de reconversie van een binnenstedelijke site en een gemengd publiek-privaat bouwprogramma, waarbij veel partijen betrokken zijn: Stad Lommel, opdrachtgevers, bouwpartners, toekomstige bewoners en exploitanten, buren, de aanpalende scholen... De participatie van al deze ‘stakeholders’ in het ontwerp- en bouwproces vormt een belangrijke uitdaging en de sleutel tot een succesvol en breed gedragen stadsvernieuwingsproject.

Bron Abscis Architecten

  • Deel dit artikel

Onze partners