Vectorworks Architectuur & Interieur
Zo'n 500.000 professionals in meer dan 80 landen gebruiken dagelijks Vectorworks om hun ideeën vorm te geven. Dankzij de gespecialiseerde brancheversies zoals Vectorworks Architectuur & Interieur zijn Vectorworks-gebruikers verzekerd van een optimale efficiëntie. Het combineert de gebruiksvriendelijkheid en grafische kracht van Vectorworks met efficiënte BIM- en architectuurgereedschappen en uitgebreide professionele bibliotheken.
Zo'n 500.000 professionals in meer dan 80 landen gebruiken dagelijks Vectorworks om hun ideeën vorm te geven. Dankzij de gespecialiseerde brancheversies zoals Vectorworks Architectuur & Interieur zijn Vectorworks-gebruikers verzekerd van een optimale efficiëntie. Het combineert de gebruiksvriendelijkheid en grafische kracht van Vectorworks met efficiënte BIM- en architectuurgereedschappen en uitgebreide professionele bibliotheken.

Ontwerp van A tot Z
Van wedstrijdontwerpen tot nauwkeurige uitvoeringsplannen, van nieuwbouw tot verbouwing, van het eerste 2D-schetsontwerp tot de definitieve as-built in 3D: Vectorworks beschikt over een uitgebreid arsenaal aan mogelijkheden. Het is een all-in-one pakket waarin je 2D, 3D en BIM met elkaar kunt combineren.

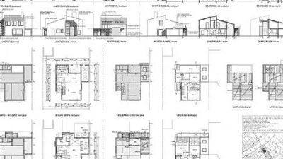
2D, 3D of beiden
Digitale tekentafel of virtueel gebouwmodel: Vectorworks kan het allebei, en ook tegelijkertijd. Intelligente bouwonderdelen zoals vloeren, daken, ramen of trappen plaats je onmiddellijk in de tekening. Verder kan je gebruik maken van een uitgebreide bibliotheek met meer dan tienduizend objecten - designermeubels, sanitair, kwalitatieve boomafbeeldingen en voertuigen, zowel in 2D als 3D.

BIM
Met BIM (Building Information Modeling) kan je veel tijd winnen. In Vectorworks kies je zelf in welke mate je de BIM-methode toepast. Met BIM-tools zoals muren, daken, ramen of trappen teken je in Vectorworks je hele project in 3D. Van dat model leid je de aanzichten, doorsneden, plannen en perspectieven af. Wijzig je het model, dan worden de verschillende zichten automatisch bijgewerkt. Vectorworks berekent bovendien je wand- en vloeroppervlaktes, plintlengtes, betonvolumes of het aantal lichtarmaturen en presenteert het resultaat in lijsten.

Probleemloos uitwisselen
Met Vectorworks deel je vlot informatie, dankzij de talrijke uitwisselingsformaten zoals DXF, DWG, 3DS en SAT, de vele grafische formaten zoals PDF, JPG, TIF en EPS. Je BIM-model wissel je dan weer uit via IFC, want Vectorworks is volledig IFC-gecertificeerd.

Modelleren en visualiseren
Vrije en organische vormen kan je snel en eenvoudig modelleren dankzij de krachtige modelleermotor Parasolid. Zo kan je moeiteloos en zonder beperkingen met vlakken, volumes en NURBS werken en elke denkbare geometrie vormgeven.

Ook bewegende presentaties - zoals een vlucht over je project – behoren tot de mogelijkheden met Vectorworks. Of koppel je software aan CINEMA 4D - de professionele 3D-animatiesoftware - voor high-end visuals om de klant een realistisch beeld voor te schotelen.

Een demoversie kunt u hier aanvragen.
Ontwerp van A tot Z
Van wedstrijdontwerpen tot nauwkeurige uitvoeringsplannen, van nieuwbouw tot verbouwing, van het eerste 2D-schetsontwerp tot de definitieve as-built in 3D: Vectorworks beschikt over een uitgebreid arsenaal aan mogelijkheden. Het is een all-in-one pakket waarin je 2D, 3D en BIM met elkaar kunt combineren.
2D, 3D of beiden
Digitale tekentafel of virtueel gebouwmodel: Vectorworks kan het allebei, en ook tegelijkertijd. Intelligente bouwonderdelen zoals vloeren, daken, ramen of trappen plaats je onmiddellijk in de tekening. Verder kan je gebruik maken van een uitgebreide bibliotheek met meer dan tienduizend objecten - designermeubels, sanitair, kwalitatieve boomafbeeldingen en voertuigen, zowel in 2D als 3D.
BIM
Met BIM (Building Information Modeling) kan je veel tijd winnen. In Vectorworks kies je zelf in welke mate je de BIM-methode toepast. Met BIM-tools zoals muren, daken, ramen of trappen teken je in Vectorworks je hele project in 3D. Van dat model leid je de aanzichten, doorsneden, plannen en perspectieven af. Wijzig je het model, dan worden de verschillende zichten automatisch bijgewerkt. Vectorworks berekent bovendien je wand- en vloeroppervlaktes, plintlengtes, betonvolumes of het aantal lichtarmaturen en presenteert het resultaat in lijsten.
Probleemloos uitwisselen
Met Vectorworks deel je vlot informatie, dankzij de talrijke uitwisselingsformaten zoals DXF, DWG, 3DS en SAT, de vele grafische formaten zoals PDF, JPG, TIF en EPS. Je BIM-model wissel je dan weer uit via IFC, want Vectorworks is volledig IFC-gecertificeerd.
Modelleren en visualiseren
Vrije en organische vormen kan je snel en eenvoudig modelleren dankzij de krachtige modelleermotor Parasolid. Zo kan je moeiteloos en zonder beperkingen met vlakken, volumes en NURBS werken en elke denkbare geometrie vormgeven.
Ook bewegende presentaties - zoals een vlucht over je project – behoren tot de mogelijkheden met Vectorworks. Of koppel je software aan CINEMA 4D - de professionele 3D-animatiesoftware - voor high-end visuals om de klant een realistisch beeld voor te schotelen.
Een demoversie kunt u hier aanvragen.