Contactformulier

Xella

Verloederd rijhuis wordt stijlvolle, ruimtelijke woonst

In 2006 kocht selfmade man Kristof Geraerts haast per ongeluk een onbewoonbaar verklaard rijhuis op een steenworp van het station van Leuven en het dorpsplein van Kessel-Lo. Drie jaar en een aanzienlijke hoeveelheid sloop- en verbouwingswerken later nam hij zijn intrek in een ruimtelijke woonst met een tijdloze uitstraling en een markante gevel, bestaande uit zwarte leien en een unieke, langwerpige glazen erker. 

'Always look on the bright side of life' moet Kristof gedacht hebben toen na zijn allereerste deelname aan een openbare huizenverkoop bleek dat het meteen prijs was. “Ik was nog nooit in Kessel-Lo geweest, maar voor ik het goed en wel besefte had ik er wel een huis gekocht,” kijkt hij er met een brede glimlach op terug. “Ik ben eigenlijk ingenieur-architect van opleiding. Hoewel ik er niet mijn beroep van heb gemaakt, had ik wel ambitie om een verouderde woning te kopen en te renoveren naar eigen smaak. Ik heb eerst binnen de Leuvense ring gezocht, maar dat was zelfs toen al niet meer te betalen. Uiteindelijk kwam ik dan uit bij een onbewoonbaar verklaard huis aan de achterkant van het station. Op de eerste zitdag deed ik – onervaren als ik was – het eerste en enige bod, en dus had ik het. Hoewel het huis bij nader inzien toch heel wat mankementen vertoonde, had ik op zich wel zin om eraan te beginnen. En uiteindelijk is het toch wel behoorlijk goed uitgedraaid, denk ik.”

Blanco blad

Dat Kristofs woonproject behoorlijk goed is uitgedraaid, is een understatement van jewelste. Uit een smal, verwaarloosd pand puurde hij op twee jaar tijd een ruim en sfeervol ogende woonst die baadt in het licht en de gezelligheid. Toch had hij bij aanvang niet meteen een totaalrenovatie voor ogen: “Ik dacht het bestaande huis eerst grotendeels te behouden, zeker omdat er een mooi dak met originele gebinten opstond. Een nieuwe badkamer, een nieuwe keuken en een nieuwe achterbouw leken me voldoende. Helaas kon geen enkele architect me een concept bieden dat me volledig aansprak. Toen Klaarchitectuur de woning kwam bekijken, was hun verdict duidelijk: quasi alles afbreken en opnieuw beginnen. Na er een nachtje over te hebben geslapen, heb ik besloten om hen te volgen en met een blanco blad te beginnen. Ze hebben dan op basis van mijn specifieke wensen – veel lichtinval, contact met de straat, maximaal ruimtegevoel, tijdloze inrichting, ... – een ontwerp opgesteld, dat we nadien samen verfijnd hebben tot wat het nu is.”

Zo veel mogelijk zelf doen

Eens het ontwerp vastgelegd was, ging Kristof samen met zijn vader aan de slag. Uiteindelijk zou enkel de voorgevel blijven staan en werd de rest van het voormalige huis met de hand afgebroken. “Naarmate we de woning verder ontmantelden, bleek hoe slecht ze er echt aan toe was. De gewelfde kelder maakte plaats voor een nieuwe betonnen vloerplaat, en van daaruit zijn we de woning volledig opnieuw beginnen opbouwen. Met behulp van YTONG-blokken zijn er nieuwe zijmuren geplaatst, wat voor de akoestische isolatie een enorme meerwaarde betekent. De ruwbouw- en de dak- en gevelwerken zijn uitgevoerd door een externe aannemer, maar voor de rest heb ik zowat alles zelf gedaan (elektriciteit, verwarming, sanitair, interieur, ...). Zo heb ik heel wat kunnen besparen en heb ik met een relatief beperkt budget toch een integrale renovatie kunnen bekostigen. Een mooi voorbeeld zijn de op maat gemaakte inbouwkasten in de koker op het gelijkvloers, de keuken en de slaapkamers. Had ik ze moeten aankopen, dan had ik makkelijk tweeënhalf keer meer betaald, en dat paste helaas niet binnen het budget. Ik heb dan maar opgezocht hoe ze gefabriceerd worden en heb ze vervolgens integraal nagemaakt. Mijn doe-het-zelfattitude heeft dus wel degelijk zijn vruchten afgeworpen.”

Ruimte maximaliseren

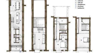
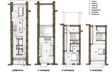
Nadat de ruwbouwwerken hadden plaatsgevonden, kon Kristof overgaan tot de eigenlijke herinrichting van zijn woning. De voornaamste aandachtspunten hierbij waren het optimaal benutten van de beperkte bouwbreedte (slechts 3,6 meter binnenruimte op het gelijkvloers) en het maximaliseren van het ruimtegevoel. “Openheid en ruimte waren voor mij erg belangrijke aspecten. Heel wat rijhuizen voelen enorm klein aan, en dat wilde ik absoluut vermijden. Achteraan hebben we de woning daarom eerst en vooral nog een drietal meter uitgebreid. Daarnaast hebben we het gelijkvloerse niveau een stuk verlaagd door de uitgebroken kelder slechts gedeeltelijk op te vullen, zodat we bovenaan een extra niveau konden creëren. Onder het motto 'alle ruimte is nuttige ruimte' hebben we op het gelijkvloers (centraal aan de voorkant van de woning) ook een gesloten koker geïntegreerd waarin we onder meer een berging, een toilet, een douche en een vestiaire hebben verwerkt. Het groeperen van deze functies bespaart me heel wat plaats en beschermt bovendien mijn privacy. De koker vormt immers een ideale buffer tussen mijn leefgedeelte op het gelijkvloers en de transparante inkompartij aan de straatkant.”

Modern, maar niet koel

Voorts koos Kristof ervoor om zo weinig mogelijk binnenmuren te gebruiken, zodat de leefruimte op het gelijkvloers (open keuken + eettafel) en het halfopen eerste niveau (zit- en tv-hoek met gashaard in loftstijl) steeds met elkaar in contact staan. Het interieur is modern en strak, maar tegelijk ook warm. “Ik wilde geen huis met koele materialen dat na een aantal jaar al gedateerd zou zijn,” legt Kristof uit. “Het mocht een beetje tijdloos zijn, en dus heb ik het vrij sober gehouden: witte muren en kasten, afgewisseld met beige kleuren (vloer gelijkvloers), eikenhoutaccenten (vloer op verdiepingen, eettafel, trap) en donkerblauw gelakt schrijnwerk.”

De goed zichtbare eikenhouten trap in het centrum van de woning vormt in dat opzicht een structurerend esthetisch element. Hij leidt naar een tweede verdieping met slaapkamer, badkamer en toilet en een nagenoeg identieke derde verdieping waar in een later stadium eventueel nog twee aparte slaapkamers en een extra badkamer kunnen worden ingericht. Grote, strategisch gepositioneerde raampartijen aan voor- en achterkant zorgen ervoor dat het invallend daglicht overal tot diep in de woning kan doordringen. Uiteraard is er ook kunstmatige verlichting (TL-lampen met een warme geelwitte gloed en spotjes), al is die grotendeels verwerkt achter het meubilair of in de plafonds.

Grote glazen erker

Hoewel het oorspronkelijk de bedoeling was om de oude gevel van het huis te bewaren, werd ook de buitenkant van Kristofs woning in een nieuw kleedje gestoken. De gevel ziet er – op zijn zachtst gezegd – niet bepaald alledaags uit en springt dan ook meteen in het oog. Hij is volledig ingepakt met zwarte leien in steenstripverband en valt in die zin al behoorlijk op in het klassieke stedelijke straatbeeld. Desalniettemin is dé voornaamste eyecatcher uiteraard de langwerpige glazen erker, die beginnend vanaf de eerste verdieping ongeveer een meter boven de straat uitzweeft. “Ik wilde contact houden met de straat en het verderop gelegen dorpsplein. Deze erker leek ons een uitstekende manier om dit te verwezenlijken. Qua onderhoud is het niet altijd even praktisch, maar anderzijds ben ik er natuurlijk wel fier op dat mijn woning iets unieks heeft. En uniek is het echt wel, want ik heb maar één leverancier bereid gevonden om de erker in deze afmetingen te maken. Hij is opgebouwd uit zonwerend veiligheidsglas dat maar liefst zes centimeter dik is. In combinatie met de zwarte leien zorgt de erker voor een fijne visuele meerwaarde, en dat zonder al te schreeuwerig over te komen.”

Tuininrichting

Tot slot onderging ook de lange, smalle tuin achter de woning een grondige facelift. Het terras vormt met zijn doordacht gekozen, lichtbeige vloertegels een mooi verlengde van de leefruimte op het gelijkvloers. Een goed gedoseerde hoeveelheid beplanting zorgt voor een deugddoend stukje groen in de dichtbebouwde omgeving. “Over de inrichting van de tuin heb ik nochtans lang mijn hoofd gebroken,” vertelt Kristof. “Het perceel loopt immers een beetje schuin, en dus was het de vraag of ik in mijn tuinopbouw de perceelsgrenzen zou volgen of de lijn van het huis zou doortrekken. Na lang nadenken heb ik dan toch voor optie 2 gekozen, en die beslissing heb ik me niet beklaagd. De zichtas die aan de voordeur van de woning begint, reikt nu tot aan de achterste boom in de tuin. Dit geeft vooral bij het aansteken van mijn tuinverlichting een erg leuk effect.”

Een bijkomend vraagstuk was het niveau van de tuin, die – door de aanwezigheid van een gewelfde kelder onder het huis – maar liefst een anderhalve meter lager lag dan het eigenlijke woongedeelte. “We wilden tuin en woning toch met elkaar verbinden, zodat het één geheel zou lijken. Enerzijds hebben we het woonniveau een beetje verlaagd door de kelder na afbraak niet volledig op te vullen, anderzijds hebben we de tuin vooraan verhoogd en hebben we hem van daaruit via een drietal vlakke niveaus en een aantal tussenliggende trapjes geleidelijk naar beneden laten lopen. De inrichting van de tuin vormde het sluitstuk van mijn renovatieproject, en is in die zin toch ook een beetje de kers op de taart. Ik ben er ook na vijf jaar alleszins nog steeds erg blij mee.”

Noot: Dit artikel verscheen eerder in Beter Bouwen en Verbouwen.

  • Deel dit artikel

Onze partners