VIEW: wonen boven productie aan toegangspoort tot de hoofdstad (&bogdan en WITH20)
Aan de Vilvoordsesteenweg, op de noordelijke toegangspoort van Brussel, werken &bogdan en WITH20 aan VIEW: een geïntegreerd woon- en werkproject dat letterlijk land creëert waar er geen meer is. Samen met opdrachtgever Vanderstraeten en partners Studio Thomas Willemse (landschap), DUSS (duurzaamheid), Qern (technieken) en M-gineers (structuur en akoestiek) zetten de architectenbureaus een ambitieus traject op. Het project, goed voor 11.000 m², bundelt wonen, productie en handel in één verticaal stadsblok — een model voor een toekomst waarin functies niet langer om grond concurreren, maar die juist delen.
VIEW bevindt zich op een kruispunt van werelden: tussen het groene domein van Laken en de harde industriële as langs kanaal en steenweg. Die ligging vraagt om een architectuur die bemiddelt in plaats van scheidt. &bogdan en WITH20 ontwerpen daarom een gebouw dat zich laat lezen als een stedelijk weefsel — een samenhang van volumes, sferen en ritmes die industrie, wonen en natuur met elkaar verweven. De architectuur wordt zo een drager van verzoening: een brug tussen logistiek en leven, tussen grootstedelijke schaal en menselijke maat.
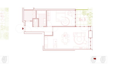
Een stedelijk weefsel aan de stadspoort
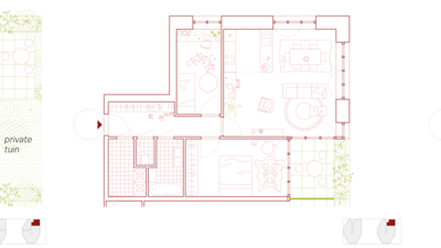
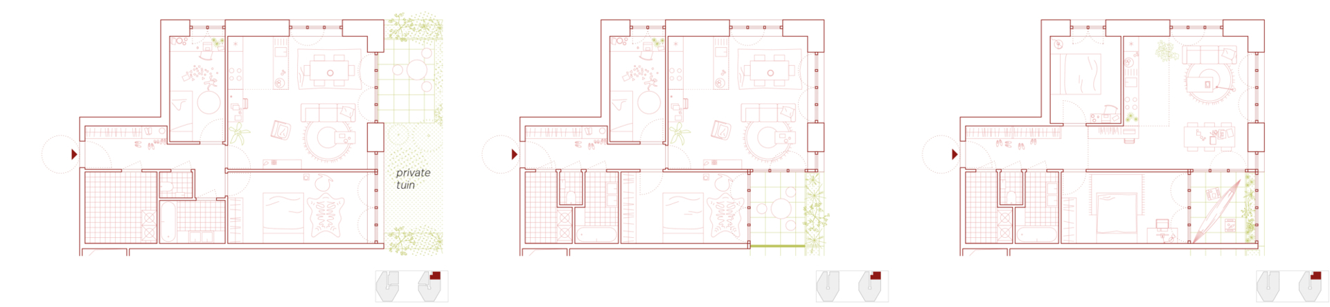
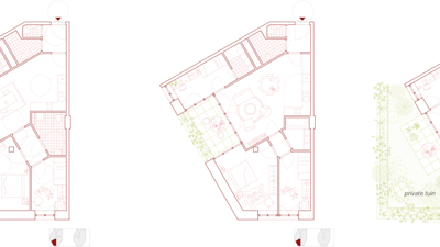
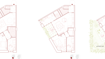
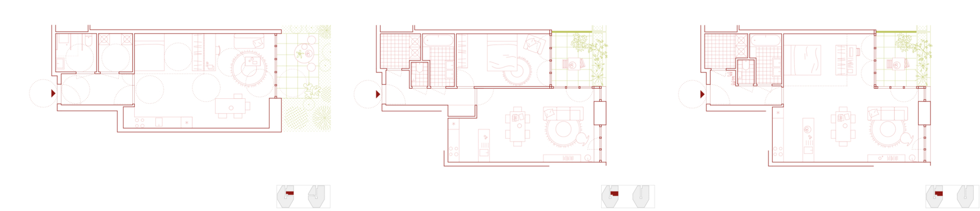
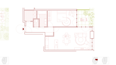
De volumewerking van VIEW zoekt bewust het midden tussen het industriële en het huiselijke. Twee duidelijke woonvolumes staan op een actieve, productieve sokkel en kijken uit over een collectieve daktuin. Die gelaagde opbouw zorgt voor een leesbaar geheel dat zowel stedelijke densiteit als leefkwaliteit biedt. De transparante plint en de open luifels laten activiteit toe zonder de straatwand te verzwaren, terwijl de bovenliggende woningen profiteren van licht, lucht en uitzicht.
Het ontwerp sluit nauw aan bij het Van Praet-masterplan, dat de zone wil transformeren tot een herkenbare en levendige stadsentree. VIEW versterkt die ambitie door een helder silhouet en een uitnodigende publieke ruimte te introduceren. De luifel rond de plint, het kleurgebruik en de materiaalkeuze sluiten aan bij de geplande bebouwing in de omgeving, waardoor het project zich inschrijft in een groter stedelijk verhaal en het gezicht vormt van een vernieuwd stadsdeel.
Groen, floricultuur en gedeelde duurzaamheid
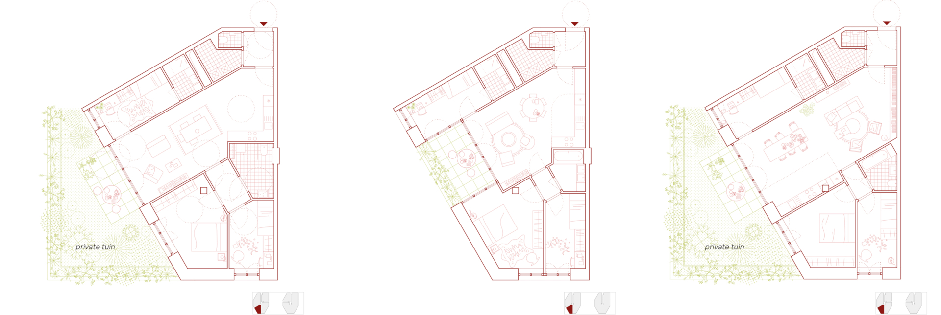
De daktuin, serres en planters op en rond de woonvolumes verwijzen subtiel naar Euroveiling, de historische motor van de Belgische sierteelt die op dezelfde site actief blijft. Wat ooit louter productie was, krijgt zo een publieke, groene dimensie. De beplanting en wintertuinen brengen het florale DNA van de plek letterlijk terug in de stad. Bewoners, werknemers en bezoekers delen niet alleen het uitzicht en de buitenruimte, maar ook een dagelijks contact met natuur — een tastbare vorm van gedeelde stedelijkheid die ecologie koppelt aan sociale cohesie.
Die verweving van functies is niet alleen ruimtelijk, maar ook sociaal en ecologisch. De architectuur herinterpreteert oude typologieën van ateliers met bovenliggende woonruimtes, waarin productie en leven dicht bij elkaar stonden. Zo ontstaan korte ketens, gemengde economieën en buurten waar activiteit en ontmoeting elkaar versterken. VIEW ademt de overtuiging dat stedelijke kwaliteit niet in scheiding, maar in verbinding schuilt.
Wonen boven werk: een toekomstgericht model
Met VIEW bouwen &bogdan en WITH20 voort op eerdere onderzoeken rond verdichting en functiemenging, zoals NovaCity I voor citydev.brussels en de studies over de intensivering van bedrijventerreinen in Tilburg. Waar die projecten vooral het principe van gedeeld ruimtegebruik onderzochten, vormt VIEW de concrete toepassing: een verticaal prototype van de inclusieve, duurzame stad. Het project toont hoe architectuur zelf een mechanisme kan zijn om de balans tussen wonen, werken en natuur te herstellen.
Door wonen letterlijk boven werken te stapelen, biedt VIEW een overtuigend antwoord op de grote stedelijke uitdagingen van vandaag — van grondschaarste tot klimaatadaptatie en sociale segregatie. De meerlagige opbouw nodigt uit tot samenwerking tussen sectoren en generaties, en bewijst dat intensiteit, diversiteit en collectiviteit geen tegenstelling vormen, maar elkaars voorwaarde zijn. VIEW schetst zo een toekomstbeeld waarin de stad niet verder uitbreidt, maar zichzelf slim verdicht — gelaagd, genereus en gedeeld.
 
			 
                             
                             
                             
                             
                             
                             
                             
                             
                             
                             
                             
										 
										