Waterzicht: coherent stedelijk eiland in contrastrijke suburbane context (Atelier Kempe Thill)

  • image
  • image
  • image
  • image
  • image
  • image
  • image
  • image
  • image
  • image
  • image
  • image
  • image
  • image
  • image
  • image
  • image
  • image
  • image
  • image
  • image

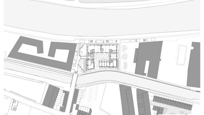
In het woonproject Waterzicht in Vilvoorde, ontworpen door Atelier Kempe Thill, komen door de bijzondere locatie en het programma verschillende uitdagingen naar voren. Het gebied, dat deel uitmaakt van een nieuw masterplan door stedenbouwkundig bureau BUUR, bevat een mix van industrie, woongebied, water en het grote landschapspark in 'Engelse stijl' 3 Fonteinen. De eisen voor de nieuwe ontwikkeling waren dan ook behoorlijk complex.

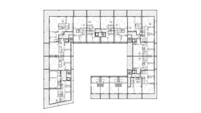
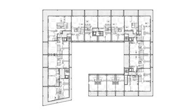
Het gebouw moest vijf verdiepingen hoog zijn, met een extra hoogte van drie verdiepingen op de noordelijke hoek. Aan de Zenne-kant was een maximale hoogte van vier verdiepingen gewenst, met een fragmentatie van het volume om visueel aan te sluiten op de bestaande gebouwen in de omgeving. Op de begane grond moest er ruimte zijn voor zowel levendige commerciële activiteiten aan de kanaalkant als woningen langs de Zenne.

 

Kalme elegantie

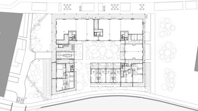
Het Waterzicht-gebouw herbergt op de begane grond horeca en winkels langs de kanaaloever, terwijl grote appartementen met diepe balkons een prachtig uitzicht hebben op het water en het park aan de overkant. Het gebouw is zo ontworpen dat het een verstandige zonoriëntatie heeft, met lagere hoogtes in de richting van het zuiden. Betaalbare appartementen en rijtjeshuizen bevinden zich loodrecht op het kanaal en langs de rivier de Zenne.

Binnen het gebouw is er een groene binnenplaats die uitkomt op de Zenne aan de zuidoostkant. De balkons aan de binnenkant zijn ondiep om de privacy van de appartementen te behouden en een te smalle buitenruimte te vermijden. Het gebouw straalt openheid en kalme elegantie uit, met gebruik van duurzame materialen zoals grijze kalksteen, bronstint aluminium ramen, glazen balustrades en prefab betonnen elementen.

 

Sterke identiteit

Het project Waterzicht is voor Atelier Kempe Thill een logische voortzetting van haar experimenten in woningbouwtypologieën. Het bureau zoekt naar een woningtypologie voor de eenentwintigste eeuw die stedelijk wonen met hoge dichtheid combineert met suburbane ruimtelijke kwaliteiten. Het project in Vilvoorde reageert op gevoelige wijze op haar context, behoudt consistentie en heeft een sterke identiteit binnen de diverse omgeving, waardoor het een nieuw stedelijk eiland vormt te midden van een gefragmenteerde periferie.

Bron Atelier Kempe Thill

  • Deel dit artikel

Onze partners