Contactformulier

VK architects+engineers, part of Sweco

Werken gestart aan Campus Mutsaard van LOW architecten

  • image
  • image
  • image
  • image
  • image
  • image
  • image
  • image

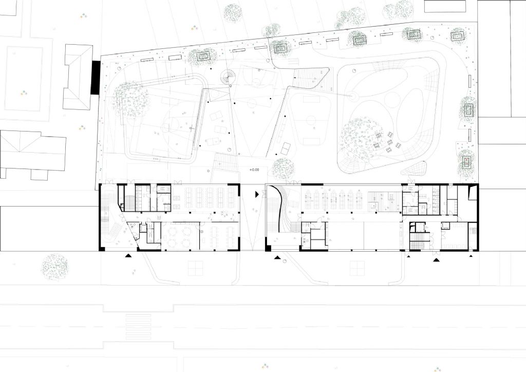
In Laken is MBG onlangs gestart met de bouw van Campus Mutsaard. Dit nieuwe Nederlandstalige scholencomplex ontworpen door LOW architecten i.s.m. VK Architects & Engineers en Bureau B+B, zal een basisschool, middelbare school, twee sportzalen en een kinderdagverblijf huisvesten. De ontwerpers zetten sterk in op architecturale ingrepen die de kwaliteit van het lesgeven en het schoolgebeuren verhogen. Zo is er veel aandacht besteed aan de buitenruimte die veel meer is dan een gewone speelplaats. Het project won in 2018 de ‘Be.Exemplary’-prijs

Campus Mutsaard zal met zijn 10.821 m2 onderdak bieden aan 456 leerlingen in het basisonderwijs, 288 leerlingen in het secundair onderwijs. Nog eens 72 kinderen kunnen er terecht in een kinderdagverblijf.

 

Doordachte herverdeling

LOW architecten vertrok bij het ontwerp van een doordachte herverdeling van het bestaande volume, met het oog op een goede integratie. “Zo wordt het volume dat we in de hoogte weglaten gerealiseerd in de achtertuinzone, onder de vorm van een verdiepte tuin waarrond zich de kleuterklassen bevinden. Die locatie zorgt voor een intieme, veilige en geborgen sfeer voor de kleutertjes”, klinkt het bij LOW architecten.

Daarnaast zijn de twee grote sportzalen onder het hoofdvolume gepositioneerd, om zo de druk op de site sterk te reduceren. Ook hierbij zet LOW architecten in op een doorlaatbaar en natuurlijk landschap in de tuinzone, wat op zijn beurt voordelen biedt aan de waterhuishouding, biodiversiteit, etc.
 

Kwaliteit verhogen

Er is sterk ingezet op architecturale ingrepen die de kwaliteit van het lesgeven en het schoolgebeuren verhogen.  Er zijn uitkragende volumes die klassen van terrassen voorzien om buiten les te kunnen geven.  Verbredingen in de gangen creëren ruimtes voor informeel overleg en studie.  Buiten wordt er letterlijk op verschillende niveaus gespeeld. “Het binnengebied is veel meer dan een gewone speelplaats. Door de bestaande hellingen te gebruiken en te versterken creëren we een landschap van speel-, sport- en groenzones.  Op het dak van de grote luifel installeren we een moestuin en in de kleuterkuil komt een waterval uit die de natuurlijke infiltratie van het regenwater illustreert”, aldus LOW architecten.

 

Beleving van de seizoenen

De speelplaatsen zijn bewust samengesteld uit een beperkt aantal materialen, om ruimte te bieden aan de creativiteit van de kinderen. Er wordt bijzondere aandacht besteed aan de groenaanleg.  Er is gekozen voor een drietal beplantingselementen: de haag, de fruitbomen en de grote solitairen.

Een haag van o.a. hazelaar brengt een natuurlijke buffer naar de tuinen ten oosten van de site. Deze hoge haag met zijn karakteristieke groeivorm wordt op een aantal plaatsen geflankeerd door groepen fruitbomen met een diversiteit in bloeiwijze. De beleving van de seizoenen wordt op deze manier versterkt. Goed overzicht op de speelp­laatsen is van groot belang. Toch is het ook be­langrijk je met een klein groepje terug te kunnen trekken om te praten, te lezen.... Dit wordt mo­gelijk gemaakt door in de heg die het terrein af­grenst, betonnen zitelementen te plaatsen. Door deze niches naar het centrum te richten, zijn ze allemaal te overzien. De drie speelgebieden van de kinderen worden elks gemarkeerd door een boom: een grote solitair met brede kroon, die beschutting biedt en schaduw biedt op zon­nige dagen.
 

Voor iedereen

De school zal er zijn voor iedereen. Er huist niet enkel een basisschool en een middelbare school in, maar ook een crèche.  Zo kunnen kinderen hun ganse schoolcarrière in de site doorlopen. Buiten de schooluren wordt het binnengebied opengesteld naar de buurt en worden de sportzalen verhuurd aan verenigingen en groepen. 


Tijdelijke verhuis

Naast de ruimtelijke uitdagingen zoals hierboven beschreven, was er ook de werking van  huidige school op de site die gegarandeerd moest worden.  Het oorspronkelijk idee om gefaseerd te bouwen werd in samenspraak met de Stad Brussel, de schooldirectie en de aannemer herbekeken.  “We vonden een geschikt terrein aan de overkant van de straat voor een tijdelijke school.  Zo kan de ganse nieuwbouw in één fase worden gerealiseerd en daalt de totale bouwtijd van vier naar twee jaar.  De overlast voor de buurt en de school wordt zo drastisch gereduceerd”, aldus LOW architecten. Campus Mutsaard zal in september 2023 de deuren openen.

Bron LOW architecten

  • Deel dit artikel

Onze partners